Oracle咖啡/真事设计工作室
Oracle Coffee / True Thing Design Studio
尊重与适应:这个项目最令人称道之处在于其对原有建筑的尊重与巧妙适应。设计师保留了建筑框架和原始布局,这不仅是对历史的回应,也为空间赋予了独特的个性和灵魂。这种“克制”的设计策略,避免了过度干预,使得新旧元素和谐共存。通过细致的空间调整,项目成功地将历史建筑转化为具有商业功能和品牌个性的咖啡馆,展现了设计在历史保护和功能演变之间的平衡能力,体现了设计师对场地文脉的深刻理解。
光影与时间:霓虹灯装置是这个项目中的一个亮点,它不仅具有视觉冲击力,还巧妙地延伸了设计中的“时间性”主题。这个装置不仅仅是一个装饰元素,更是一个引导性的标识,为空间增加了趣味性和互动性。光影的运用丰富了空间的层次,也强化了新旧之间的对话,营造出一种独特的氛围。光线在空间中的变化,与咖啡馆本身的运营时间相呼应,使得空间体验更加丰富,也增加了咖啡馆的吸引力。这种对光线的运用,为空间注入了活力和生命力。
家具与细节:家具设计是项目中的另一个关键元素,它体现了设计师对细节的关注。木制屋架的构造细节被巧妙地运用到桌椅的设计中,使得家具与建筑融为一体。不同高度和配置的座位,促进了空间中过去与未来的对话。这些家具不仅满足了功能需求,也成为了空间的视觉焦点和节奏脉搏,加剧了新旧之间的对比和统一。这种对材料、结构和细节的关注,体现了设计师对设计品质的极致追求,使得项目在整体上达到了高度的统一和协调。

© Yi-Hsien Lee and Associates YHLAA

© Yi-Hsien Lee and Associates YHLAA

© Yi-Hsien Lee and Associates YHLAA
建筑师提供的文字描述这家咖啡馆位于台湾最早的军人家属村之一的凤山黄埔新村,以克制为主要设计策略。建筑框架和原始住宅布局得以保留,而空间则经过精心调整,以适应品牌的身份和商业功能。在入口处,一个霓虹灯装置追踪了时间的轨迹,延伸了时间性的设计语言。这种动态灯光功能既是视觉锚,也是前前庭内的引导元件。
Text description provided by the architects. Located in Huangpu New Village, Fengshan—one of Taiwan's earliest military dependents' villages—this café embraces restraint as its primary design strategy. The architectural framework and original residential layout are preserved, while the space is sensitively adapted to accommodate both the brand's identity and commercial functionality. At the entrance, a neon installation traces the trajectory of time, extending the design language of temporality. This dynamic light feature serves as both a visual anchor and a guiding element within the former vestibule.

© Yi-Hsien Lee and Associates YHLAA

© Yi-Hsien Lee and Associates YHLAA

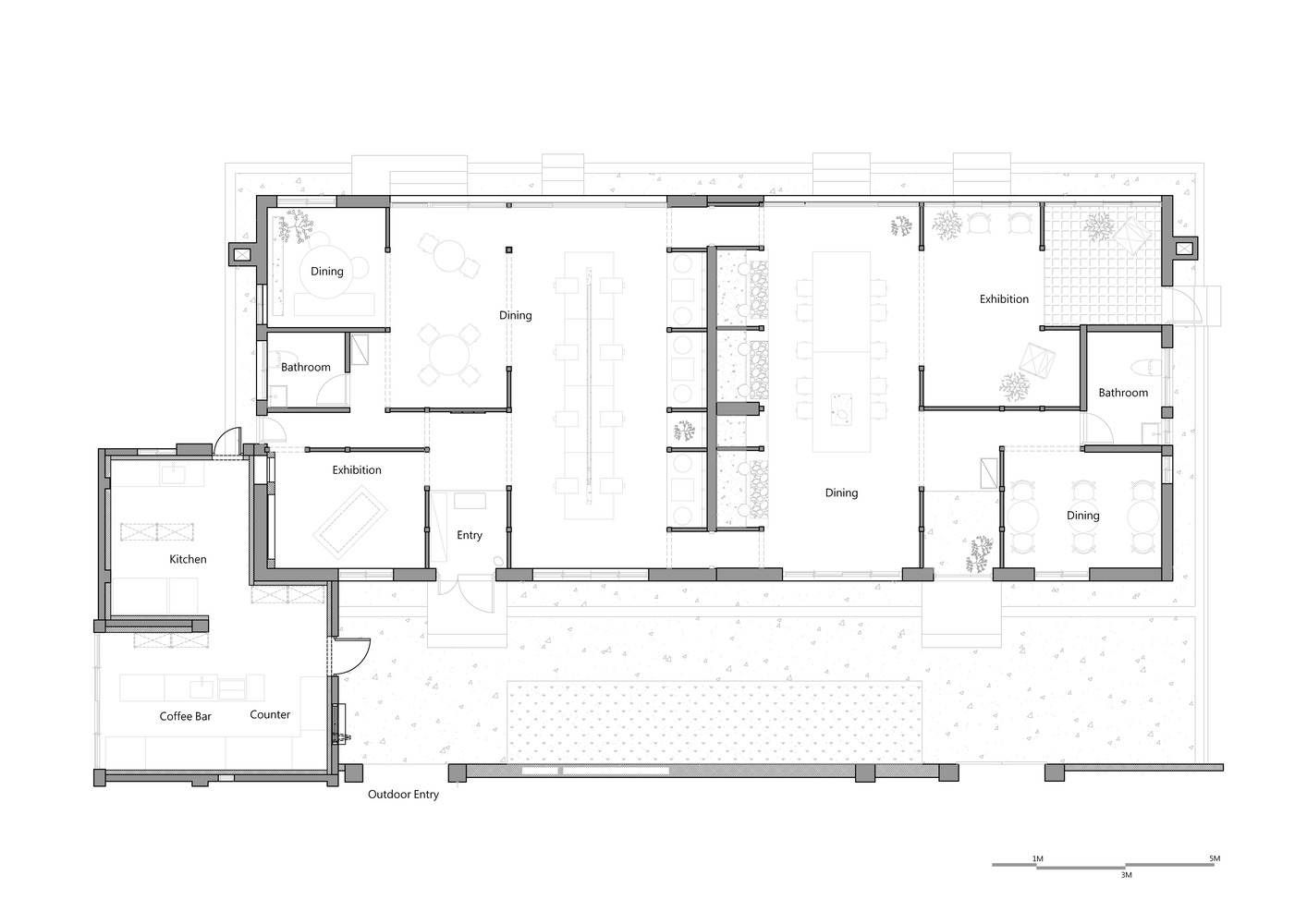
Floor Plan

© Yi-Hsien Lee and Associates YHLAA

© Yi-Hsien Lee and Associates YHLAA
为了保持现有隔墙和材料调色板的完整性,家具成为我们设计干预的重点。木制屋架的构造细节激发了桌椅的形式和细木工,而不同的座位高度和配置则促进了过去和未来之间的对话。这些元素作为空间的节奏脉搏,加剧了新旧之间的紧张关系,在历史保护和功能演变之间取得了微妙的平衡。
To maintain the integrity of the existing partitions and material palette, furniture becomes the focal point of our design intervention. The construction details of the wooden roof trusses inspire the form and joinery of tables and chairs, while varied seating heights and configurations foster a dialogue between past and future. Acting as the rhythmic pulse of the space, these elements heighten the tension between old and new—striking a delicate balance between historical preservation and functional evolution.

© Yi-Hsien Lee and Associates YHLAA

© Yi-Hsien Lee and Associates YHLAA

© Yi-Hsien Lee and Associates YHLAA

© Yi-Hsien Lee and Associates YHLAA

© Yi-Hsien Lee and Associates YHLAA