Ivens公寓/X工作室
Ivens Apartment / X Atelier
空间重塑与功能融合: Ivens公寓项目最引人注目的亮点在于对现有住宅体量的巧妙利用与重塑。设计师并未拘泥于传统的空间布局,而是通过“叠加空间”的手法,创造出非正式的区域,使空间在两个层面上得以充分利用。这种设计理念打破了空间固有的界限,增加了居住的灵活性和趣味性。同时,项目强调居住空间的多功能性,以满足创意客户的不同需求。这种设计策略体现了对使用者生活方式的深刻理解,以及对空间潜力的极致挖掘,将居住空间打造成一个充满活力和可能性的场所,充分体现了设计师的专业素养。
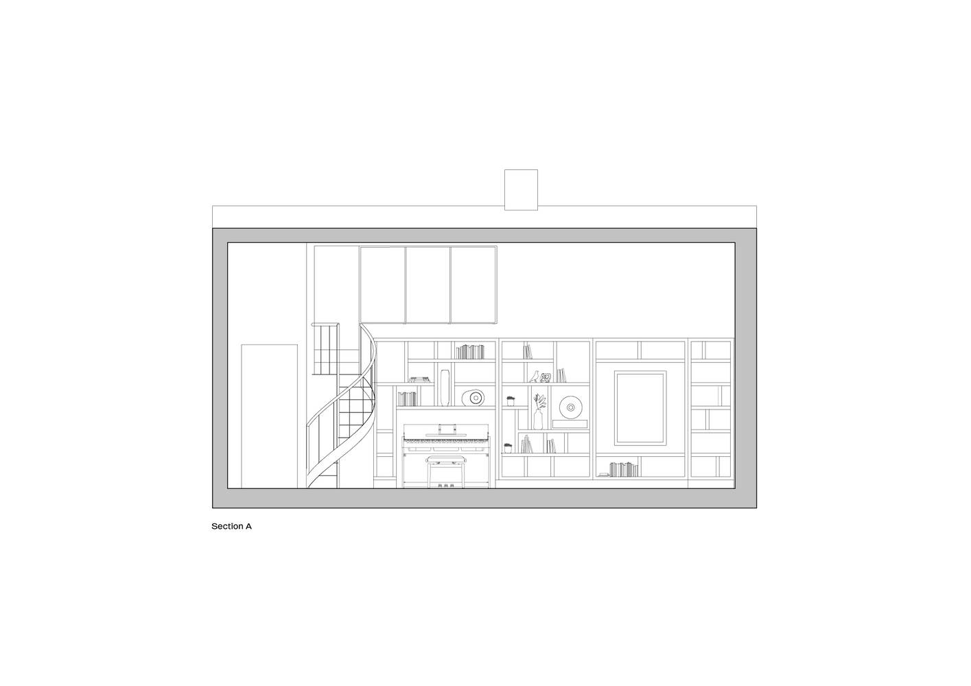
螺旋楼梯的雕塑美学: 项目中连接两层的螺旋楼梯无疑是空间中的视觉焦点。它不仅是功能性的连接,更是一件雕塑般的艺术品,为整个公寓增添了优雅与动感。螺旋楼梯的设计并非仅仅出于美学考量,它与一楼技术区域的高度降低相结合,实现了对二楼面积的优化,体现了设计师在功能与形式之间的巧妙平衡。这种设计手法体现了对空间细节的精细把握,以及对建筑语言的独特诠释。此外,儿童房的“秘密房间”设计,也为居住空间增添了趣味性和惊喜感,体现了设计师对不同年龄段使用者需求的关注,进一步丰富了空间体验。
色彩与材质的和谐统一: 从呈现的照片来看,Ivens公寓在色彩和材质的选择上非常注重整体的和谐统一。整体色调以简洁明快的现代风格为主,辅以少量的色彩点缀,营造出轻松愉悦的氛围。同时,对不同材质的运用,例如木材、金属等,增加了空间的质感和层次感。光线的运用也恰到好处,通过自然光和人工照明的结合,突出了空间的特点,营造出舒适宜人的居住环境。这种对细节的精细把握,以及对色彩、材质和光线的熟练运用,共同构成了Ivens公寓的精髓,展现了设计师对现代居住美学的深刻理解和卓越的实践能力。

© emontenegro / architectural photography

© emontenegro / architectural photography
建筑师提供的文字描述这套公寓的装修包括完全使用这套位于屋顶上的熟悉住宅体量。从这个意义上说,重叠的空间产生了非正式的区域,可以在两个层面上享受空间。
Text description provided by the architects. The renovation of this apartment consists in the total usage of this familiar residence volumetry, set on the rooftop. In this sense, overlapping spaces generate informal areas which allow the space to be enjoyed on two levels.

© emontenegro / architectural photography

© emontenegro / architectural photography
居住空间是公寓的主要空间,其开发是为了促进更大的用途多样性,以满足创意客户的不同需求和投入。
The living space, being the primary space of the apartment, was developed to promote greater versatility of uses corresponding to the different needs and inputs of a creative client.

© emontenegro / architectural photography

Section A

© emontenegro / architectural photography
螺旋楼梯是连接两层楼的雕塑元素。二楼面积的优化是一楼技术区域高度降低的结果。
The spiral staircase acts as a sculptural element that connects both floors. The optimization of the area in the second floor is the consequence of the reduction of the height in technical areas in the first.

© emontenegro / architectural photography

© emontenegro / architectural photography
色彩缤纷、俏皮有趣的儿童房位于一扇隐藏的壁橱门后面,就像一个秘密房间。
Colorful and playful, the kids room sets place behind a hidden closet door, as a secret room.