Moment精品店/Modum工作室
Moment Boutique Store / Modum Atelier
空间策略与历史文脉的对话:这个项目最引人注目的亮点在于其对狭窄空间的巧妙处理和对历史文脉的尊重。设计师将原本封闭的一楼空间改造为开放的室外走廊,不仅解决了空间局促的问题,还将内院与街道巧妙连接,营造出一种独特的“城市绿洲”体验。这种策略不仅提升了空间的通透性,更让建筑与周围的自然景观、历史环境融为一体。立面设计在保留传统建筑韵味的同时,融入现代元素,形成新旧对话,体现了设计对场地文脉的深刻理解。
“亭台楼阁”与“走廊”的设计理念:项目的精髓在于其室内空间设计对“亭台楼阁”和“走廊”概念的创新性运用。设计师将空间打造成一个既适合放松又适合社交的“客厅”氛围。木制亭子被巧妙地设计成茶室,悬空的楼梯和开放的结构赋予了空间轻盈感和艺术感,同时增强了空间层次。圆柱形元素的引入,不仅软化了空间的棱角,更巧妙地划分了功能区域,提升了空间的实用性和舒适度。流动的路径、微妙弯曲的天花板、不同类型的窗户和反光表面的运用,共同营造了一种充满故事感的购物体验。
光影与景观的巧妙融合:该设计另一大亮点在于其对光线和自然景观的巧妙运用。入口处的高大垂直窗户,不仅引入了自然光线,更与外部风景互动,透过窗户的树影为空间增添了深度和趣味性。服装展示区的设计也充分利用了光影变化,通过不同类型的窗户、镜子和反光表面的组合,为顾客提供了丰富的视觉体验,仿佛置身于一幅动态的风景画中。这种对光线和景观的巧妙处理,不仅提升了空间的审美价值,更营造出一种独特的品牌氛围,让每一位顾客都能感受到独特的魅力。

© Howie

© Howie
建筑师提供的文字描述Moment精品店位于南京十六里,周围环绕着历史悠久的建筑群,附近有著名的赣西公馆。整个区域具有统一的古代风格,这给商店的装修带来了几个挑战。位于二楼,空间狭窄,关键的设计挑战是在创造独特品牌标识的同时与历史环境融为一体。
Text description provided by the architects. Moment boutique store is located in Cinnalane, Nanjing, where surrounded by a historic architectural complex, with the famous Ganxi Mansion nearby. The entire area features a uniform ancient style, which brings several challenges to the store's renovation. Situated on the second floor, the space is narrow, and the key design challenge was to integrate with the historic environment while creating a unique brand identity.

© Howie

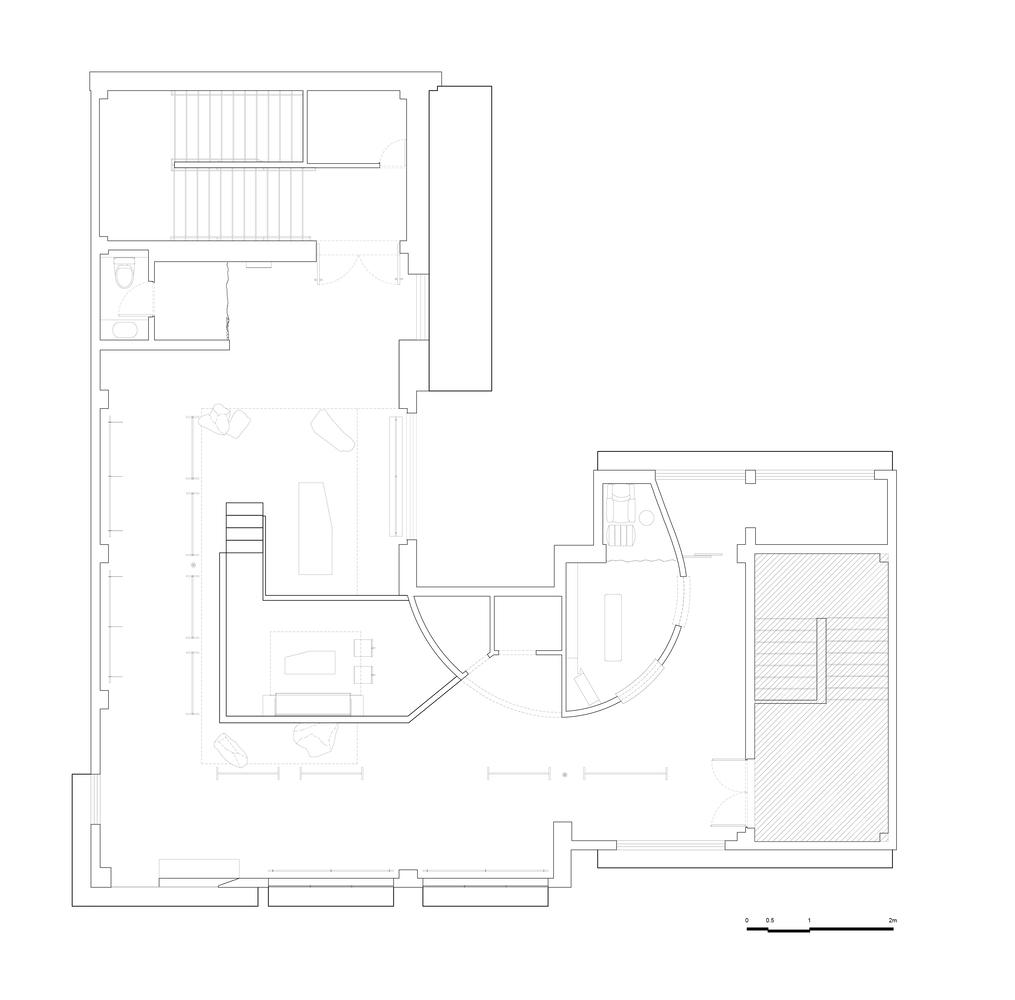
Plan

© Howie
为了解决一楼3.5米宽的狭窄空间问题,该设计将其改造成一条开放的室外走廊,将内院与街道连接起来。这使得人们可以看到高耸的枣树和周围的自然景观,创造出一种宁静的“天堂”体验,邀请路人驻足欣赏。立面设计以现代窗框和钢结构细节为特色,在保留传统建筑魅力的同时引入了一丝现代风格。通过修改窗户开口并添加落地窗,空间变得更加开放,视觉上也得到了扩展。
To solve the issue of the narrow 3.5-meter wide space on the first floor, the design transformed it into an open outdoor corridor, connecting the inner courtyard with the street. This allows the view of a towering jujube tree and the surrounding natural landscape, creating a tranquil "paradise" experience that invites passersby to stop and enjoy. The facade design features modern window frames and steel structure details, preserving the traditional architectural charm while introducing a touch of contemporary style. By modifying the window openings and adding floor-to-ceiling windows, the space is made more open and visually extended.

© Howie

Plan

© Howie

© Howie
室内设计延续了“亭台楼阁”和“走廊”的概念,创造了一个既适合放松又适合社交互动的“客厅”空间。一个木制亭子位于空间的角落,设计得像一个茶室,有一个开放的结构和一个悬空的楼梯,给空间一种轻盈和艺术的感觉。石基和木结构之间的对比增强了空间层次。添加了一个圆柱形元素来软化尖角,并将空间划分为试衣间和指甲服务区,从而提高了功能性。
The interior design continues the concept of "pavilions" and "corridors," creating a "living room" space suitable for both relaxation and social interaction. A wooden pavilion is positioned at the corner of the space, designed like a tea room with an open structure and a suspended staircase, giving the space a light and artistic feel. The contrast between the stone base and the wooden structure enhances the spatial layers. A cylindrical element was added to soften the sharp corners and divide the space into a fitting room and a nail service area, improving functionality.

© Howie

Section
对于服装展示,空间沿着一条流动的路径组织,天花板微妙地弯曲,创造了一个充满故事的走廊式体验。不同类型的窗户、镜子和反光表面为客户提供了更丰富的视觉体验,几乎就像他们正在欣赏一幅活生生的风景画。入口处高大的垂直窗户与外部风景相互作用,透过窗户播放的树影为空间增添了深度和趣味性。
For the clothing display, the space is organized along a flowing path with subtly curved ceilings, creating a corridor-like experience full of storytelling. Different types of windows, mirrors, and reflective surfaces provide customers with a richer visual experience, almost as if they are walking through a living landscape painting. The tall vertical windows at the entrance interact with the external scenery, and the play of tree shadows through the windows adds depth and interest to the space.

© Howie
总体而言,该设计结合了传统文化、自然景观和现代艺术,创造了一种身临其境的购物体验,让每位顾客都能感受到独特的氛围和品牌故事。
Overall, the design combines traditional culture, natural landscapes, and modern art, creating an immersive shopping experience where every customer can feel the unique atmosphere and brand story.

© Howie