Kaltura办公室/罗伊·大卫和建筑师
Kaltura Offices / Roy David and Architects
概念与设计的创新性:该项目最令人称道的亮点在于其对“运动”概念的深度解读与巧妙运用。设计师没有局限于传统的静态办公空间,而是将空间本身转化为一个动态的“播放”按钮,由人的移动来激活。这种互动性的设计理念,将观者融入到空间体验中,赋予了空间一种生命力。同时,设计师将公司的品牌标识融入到设计语言中,矩形、圆形和三角形分别代表了“一帧”、“协作区域”和“播放”按钮,这种具象化的设计手法使得空间更具辨识度和趣味性,也深化了品牌与空间的关联。
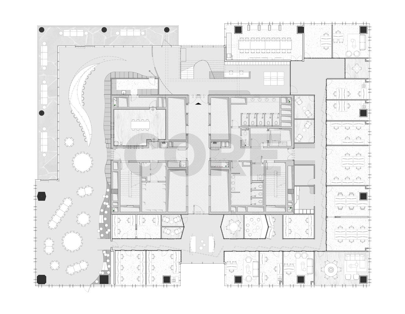
空间布局与材料运用的独特性:项目的空间布局体现了极高的专业水准。平面图显示了功能区域的清晰划分,矩形、圆形和三角形的几何形态贯穿始终,构成了一种富有节奏感的视觉语言。设计师对不同形状的巧妙组合和运用,打破了传统办公室的单调感,创造出一种充满活力和互动性的空间氛围。虽然缺乏材料的明确描述,但从图片来看,项目很可能采用了简约而现代的材料,与几何形态相呼应,营造出一种干净、通透的视觉效果,更加突出了空间的互动性和创新性。
细节处理与整体效果的和谐统一:从照片中可以看出,该项目在细节处理上也非常用心。空间的整体色调、家具的选择以及灯光的设计,都与“运动”的主题紧密相连。例如,开放式的空间布局鼓励员工之间的互动与协作,而精心设计的休息区则提供了放松和交流的场所。此外,灯光的设计也可能起到关键作用,通过光影的变化来强调空间的动感和节奏。总的来说,这是一个概念新颖、设计精巧、细节完善的办公空间,它不仅满足了办公的功能需求,更创造了一种独特的、激发灵感的环境,充分体现了建筑设计的精髓。

© Itay Benit Photography

© Itay Benit Photography
建筑师提供的文字描述这个空间的设计理念灵感来自“运动”这个词当观众观看视频时,他们希望它移动,但如果它不移动,会发生什么?在一个“播放”和下一个之间会发生什么?这是静止图像吗?一帧?如果运动只是由观众在空间中的存在引发的呢?
Text description provided by the architects. The design concept for the space is inspired by the word 'movement.' When viewers watch a video, they expect it to move, but what happens if it doesn't? What occurs between one 'PLAY' and the next? Is it a still image? A single frame? And what if movement is only triggered by the viewer's presence in the space?

© Itay Benit Photography

© Itay Benit Photography

© Itay Benit Photography
在这个实验性的室内,空间本身变成了一个“播放”按钮,由人的运动激活。当它们静止时,空间会暂停;当它们移动时,动作开始展开。
In this experimental interior, the space itself becomes a 'PLAY' button, activated by the movement of people. When they are still, the space pauses; when they move, the action begins to unfold.

© Itay Benit Photography

© Itay Benit Photography

© Itay Benit Photography
根据公司的品牌标识,我们开发了一种结构语言,其中个人由矩形表示,协作区域由圆形表示,中间的空间由三角形表示。这些形状分别对应于一帧、一个相机胶卷和标志性的“播放”按钮。
Drawing from the company's brand identity, we developed a structural language where the individual is represented by rectangular shapes, collaboration areas by circular forms, and the spaces in between by triangles. These shapes correspond to a single frame, a camera roll, and the iconic 'PLAY' button, respectively.

Floor Plan

© Itay Benit Photography