景观公寓/i29
Apartment With a View / i29
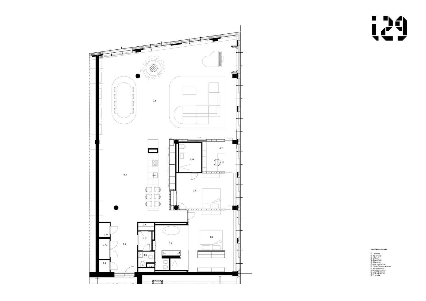
空间布局与功能分区:这个项目最令人印象深刻的莫过于其对空间布局的精准掌控。300平方米的公寓,通过定制设计的元素,巧妙地界定了不同的生活区域,同时保持了开放性和连贯性。开放式布局不仅提升了空间的通透感,也满足了居住者对现代生活方式的需求。设计师在开放与私密之间找到了完美的平衡点,例如,深色调的走廊与明亮起居空间的对比,既界定了空间,又增加了层次感。这种空间规划充分考虑了居住者的生活习惯和情感需求,将实用性与美观性完美结合。
材料质感与色彩运用:项目在材料选择和色彩搭配方面展现出卓越的品味。宽敞的木质表面和丰富的纹理营造出奢华而现代的氛围。设计师巧妙运用触感材料和柔和的色调,与城市景观形成对比,打造出一种宁静、舒适的居住体验。软装搭配上,柔和的中性色调和干净的线条,更是营造出一种低调的优雅。这种对材料和色彩的精心选择,不仅提升了公寓的视觉美感,也为居住者带来了触觉上的愉悦感,使整个空间更具温馨感,体现了对细节的极致追求,充分展现了设计师对材料和色彩的深刻理解和把握。
设计理念与细节处理: i29 标志性设计手法在本案中得到了淋漓尽致的展现,图形化的布局突出了不同区域的特色,增强了空间的独特性。每一个细节都经过精心考量,从定制厨房到开放式客厅,再到卧室和办公区,无不体现出设计的精细和对品质的追求。项目成功地将城市活力与宁静的居住环境融为一体。这种设计理念不仅体现在空间布局和材质选择上,也体现在对光线、通风等因素的考量上,从而打造出一种精致而宁静的生活氛围。它不仅仅是一个住所,更是一个可以放松身心,享受生活,感受城市和自然的绝佳场所。

© Ewout Huibers

© Ewout Huibers
建筑师提供的文字描述这间令人惊叹的公寓位于阿姆斯特丹充满活力的Zuidas商业区中心的19楼,享有城市天际线的壮丽景色。在这里,城市生活的活力与触觉材料的温暖和柔和的色调无缝融合,创造了一个宁静的高层休憩场所。
Text description provided by the architects. Situated on the 19th floor in the heart of Amsterdam's vibrant Zuidas business district, this stunning apartment offers breathtaking views of the city skyline. Here, the dynamic energy of urban life blends seamlessly with the warmth of tactile materials and a soft color palette, creating a serene high-rise retreat.

© Ewout Huibers

© Ewout Huibers
开放式布局经过精心策划,定制设计的元素定义了不同的生活区,同时保持了通风、连贯的流动。公寓占地300平方米,拥有宽敞的木制表面和丰富的纹理,散发出奢华、现代的感觉。进入后,一条以深色、优雅色调为标志的走廊与厨房和起居空间的明亮、开放氛围形成了鲜明的对比。内饰采用i29标志性设计,图形化布局突出了不同区域,增添了独特而精致的触感。
The open-plan layout is thoughtfully curated, with custom-designed elements defining distinct living areas while maintaining an airy, cohesive flow. Spanning 300m², the apartment features expansive wooden surfaces and rich textures that exude a luxurious, contemporary feel. Upon entering, a hallway marked by dark, elegant tones provides a striking contrast to the light, open atmosphere of the kitchen and living spaces beyond. The interior reveals the i29 signature approach, with a graphical play that highlights distinct areas and adds a unique, refined touch.

© Ewout Huibers

© Ewout Huibers
这是一个宁静的家,城市的活力逐渐消失,取而代之的是一种宁静的感觉。每一个细节都经过精心考虑,以营造一个平静而精致的环境,在城市能量和宁静的休憩之间达到完美的平衡。
This is a peaceful home where the vibrancy of the city fades away, replaced by a sense of tranquility. Every detail has been carefully considered to foster an environment of calm and sophistication, offering a perfect balance of urban energy and serene retreat.

© Ewout Huibers

© Ewout Huibers
宽敞的布局包括一个定制设计的厨房、一个大型开放式客厅、两间卧室、一个办公角、两间浴室和两个卫生间。每个房间都反映了公寓的精致美学,确保了风格和奢华的无缝衔接。从柔和的中性色调到干净现代的线条,每一个元素都营造出低调优雅的氛围。
The spacious layout includes a custom-designed kitchen, a large open living room, two bedrooms, an office nook, two bathrooms, and two toilets. Each room reflects the apartment's refined aesthetic, ensuring a seamless flow of style and luxury. From the soft, neutral color palette to the clean, modern lines, every element contributes to an atmosphere of understated elegance.

Floor Plan

© Ewout Huibers