Cravinhos公寓/Helena Meirelles arquitetura+罗德里戈·昆泰拉·梅西纳
Cravinhos Apartment / Helena Meirelles arquitetura + Rodrigo Quintella Messina
设计理念与空间布局:Cravinhos公寓项目最引人注目的地方在于其对“家”的定义。设计师通过对原有结构的处理,巧妙地将公寓转变为更具居住感的空间。核心在于保留和利用了四水桁架木屋顶的结构,强调了其手工工艺的价值。同时,通过创造新的基础设施核心,包括厨房、浴室等,重新定义了空间的使用和流线,并在保留原有结构的同时,引入了自然光和交叉通风,增加了空间的舒适性和居住体验。项目巧妙地利用了建筑的优势,使其与城市环境紧密结合,创造出独特的居住感受。
材料运用与细节处理:该项目的精髓体现在对材料的精心选择和细致处理上。设计师不仅保留了原有的木结构屋顶,还重新利用了部分粘土砖砌体,营造出一种质朴而温馨的氛围。木材的纹理与砖石的粗犷形成对比,增加了空间的层次感。在细节方面,例如木结构的雕刻接缝和拉杆,展现了手工工艺的精致,更体现了设计师对细节的极致追求。此外,金属结构的运用也为空间带来了现代感,并创造了灵活的夹层空间,满足了多种功能需求,提升了空间的实用性。
创新与可持续性:Cravinhos公寓项目在创新方面也体现了建筑师的独特视角。设计师不仅在原有建筑的基础上进行了改造和创新,还注重了可持续性。通过回收利用材料,减少了对新材料的需求,降低了对环境的影响。项目的整体设计也强调了与周围环境的融合,例如利用自然光和通风,减少对能源的依赖。这种创新和可持续性的结合,使得该项目在建筑设计领域具有一定的示范意义。此外,项目对现有空间的改造和利用,也体现了对建筑历史和文化价值的尊重。

© Federico Cairoli

© Federico Cairoli
建筑师提供的文字描述圣保罗最近重新发现了小型建筑的潜力。它们靠近街道和树冠,增强和强化了居民与城市之间的关系,使居住在其中的人比在公寓里感觉更自在。
Text description provided by the architects. There is a recent rediscovery of the potential of small buildings in São Paulo. Their proximity to the street and the tree canopy enhances and intensifies the relationship between residents and the city so that those who inhabit them feel more at home than in an apartment.

© Federico Cairoli
一个项目如何利用这种条件,即将公寓变成家?
How can a project take advantage of this condition, that is, turn an apartment into a home?

© Federico Cairoli

© Federico Cairoli
室内设计项目在装修过程中遇到意想不到的元素是很常见的。在Cravinhos大楼的顶层,我们遇到了一个四水桁架木屋顶,上面有雕刻的接缝和拉杆,这是一种只有手工才能达到的工艺水平。
It is typical for an interior design project to encounter unexpected elements during its renovation. On the top floor of the Cravinhos Building, we encountered a four-water-trussed wooden roof, with carved joints and tie rods, a level of craftsmanship that only handwork could achieve.

© Federico Cairoli

© Federico Cairoli
为了突出这次遭遇,灰泥被拆除,部分粘土砖砌体被重新使用,以建造一个新的基础设施核心,包括厨房、两间浴室、洗衣房和一个壁橱。为了确保自然光和交叉通风,整个公寓与公寓的周边和屋顶分开,围绕着这个元素旋转,在这个元素上还放置了一个金属结构,为工作空间创造了一个夹层。
To highlight this encounter, the stucco was demolished and part of the clay brick masonry was reused to build a new infrastructure core that includes the kitchen, two bathrooms, laundry, and a closet. Detached from the perimeter of the apartment and the roof, to ensure natural light and cross ventilation, the entire apartment revolves around this element, on which a metal structure was also placed to create a mezzanine for a workspace.

© Federico Cairoli

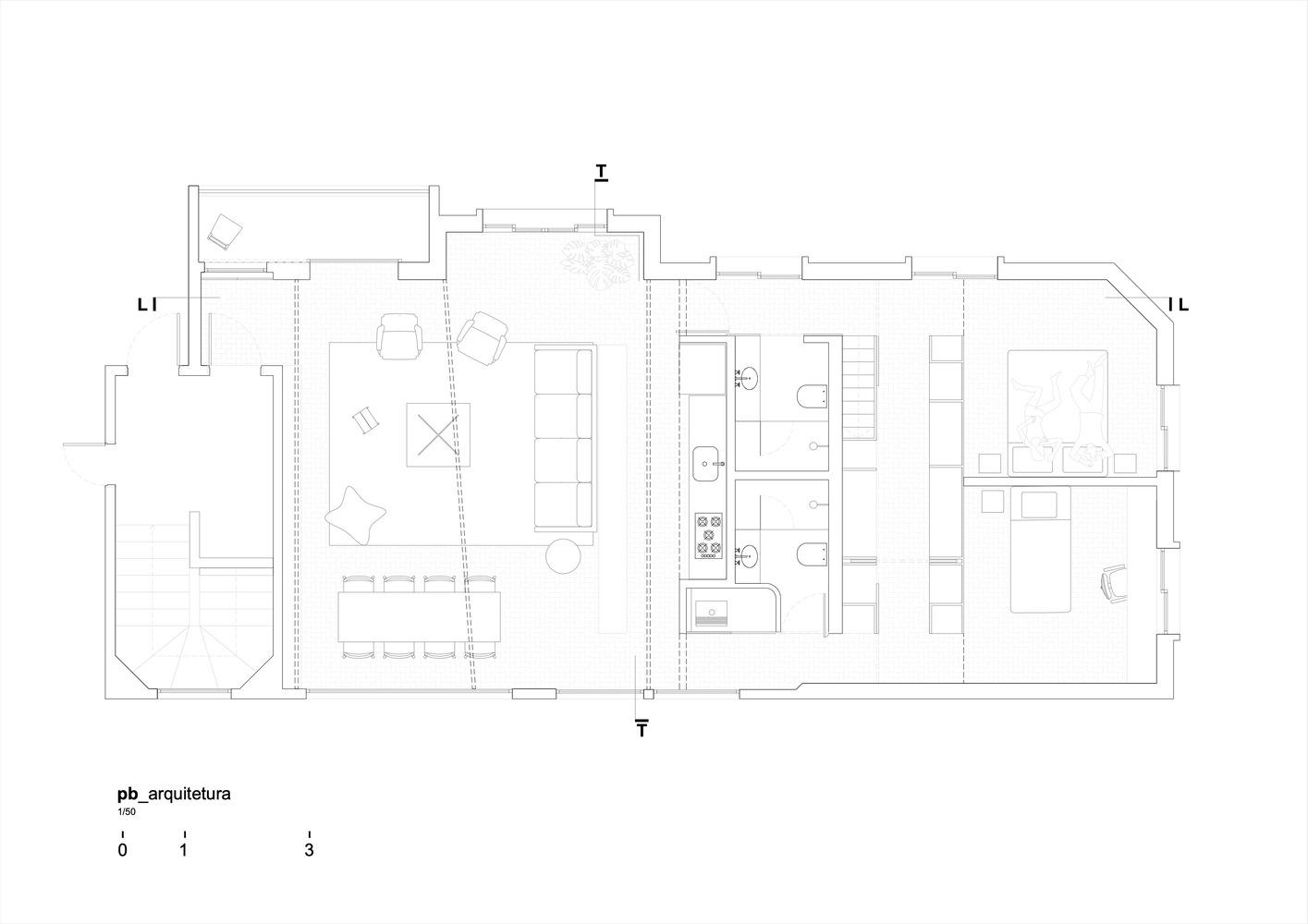
Ground floor plan

Cross section

© Federico Cairoli
想象证据并将公寓变成家,是该项目的前提。
Imagining the evidence and turning an apartment into a home, is the premise of the project.

© Federico Cairoli