塔图伊公寓/Passos Arquitetura
Tatuí Apartment / Passos Arquitetura
设计理念的创新与融合:“塔图伊公寓”项目最令人印象深刻之处在于其对设计理念的创新性融合。设计师巧妙地将日本建筑元素融入到圣保罗市中心的公寓设计中,创造出一种独特的居住体验。项目通过轻构图、原材料的运用以及自然纹理的强调,营造出一种质朴而优雅的氛围。特别是对“Tsuboniwa”(庭院花园)和“Shakkei”(借景)概念的灵活运用,将自然元素引入室内,打破了城市空间的局限,使居住者在繁华都市中也能感受到与自然的亲近。这种设计手法体现了设计师对居住环境的深刻理解和对文化融合的创新探索。
空间布局与光线运用的精妙:该项目在空间布局和光线运用上展现出极高的专业水准。开放式的社交区域设计,包括厨房、餐厅、客厅和电视区域,与公寓的花园直接相连,实现了室内外空间的无缝衔接。同时,旋转玻璃门的设计既能分隔空间,又能保证光线的流通,体现了设计师对空间灵活性和功能性的周全考虑。自然光的充分利用是该项目的另一大亮点,浅色调的墙面和橡木地板增强了室内的通透感,与花园的绿色形成了鲜明对比,使整个居住空间明亮、舒适。这种对光线和色彩的巧妙运用,营造出一种和谐、温馨的居住氛围。
细节处理与材料选择的匠心:项目的精髓体现在对细节的极致追求和材料的精心选择上。设计师不仅设计了公寓的整体木工,还包括沙发和餐桌等家具。沙发的设计旨在成为社交的中心,而餐桌则采用了源自日本细木工的结构,展现了对传统工艺的尊重。在材料的选择上,美国橡木地板、帕里卡的天然木细木工制品以及白色的墙面,共同营造出一种自然、质朴的质感。景观设计也起到了画龙点睛的作用,通过“借景”的手法,将阳台打造成一个花园,使室内外环境融为一体。这些细节处理和材料选择,都体现了设计师对品质的极致追求,以及对居住者生活体验的深刻理解。

© André Mortatti

© André Mortatti
建筑师提供的文字描述这个项目的主要挑战是为位于圣保罗市中心的空间带来一种家的感觉,在那里可以始终与自然接触。因此,选择了使用自然纹理和增强自然光照,与花园中的绿色形成对比的浅色占主导地位。该项目是一个应用日本建筑元素的实验:轻构图、原材料的使用和它们自己的自然纹理,以及tsuboniwa和shakkeiText description provided by the architects. The main challenge of this project was to bring to the space located in a central area of São Paulo a house feeling, where the contact with nature can be always present. For this reason, the use of natural textures and the enhancement of natural lighting were chosen and light colors that contrast with the green present in the gardens are predominant.The project performed as an experiment to apply elements of Japanese’s architecture: a light composition, use of raw materials and their own natural textures, as well astsuboniwa andshakkeias the landscape concept.

© André Mortatti
Tsuboniwa是8世纪以来日本建筑中常见的元素,但随着时间的推移,它变得现代化了。它可以被解读为庭院花园,种植封闭的建筑,在这种情况下,公寓,类似于冬季花园。这个元素被应用于公寓的社交区域,作为客厅、餐厅和厨房之间的视觉连接。
Tsuboniwais a common element in Japanese’s architecture since the 8thcentury, but over the time it got modernized. It can be read as a courtyard garden, planted enclosed a building, in this case, the apartment, something similar as a winter garden. This element was applied in the social area of the apartment, as a visual connection between the living room, the dining room and the kitchen.

© André Mortatti

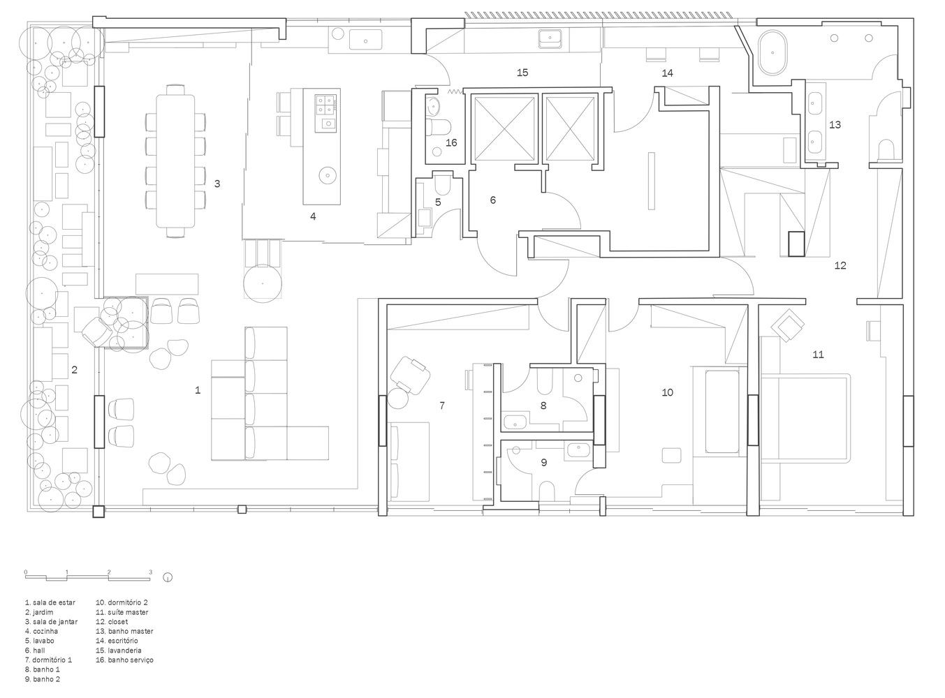
Plan

© André Mortatti
另一方面,当项目使用背景元素来构成建筑和景观时,Shakkei可以翻译为“借来的风景”。在阳台上,我们可以看到一个华丽的树梢,景观项目将其作为设计理念,在整个阳台上创造一个花园。它导致了内部和外部元素之间的安排,就像圣保罗完全城市化地区公寓内的一片广阔绿地。
On the other hand, Shakkei could be translated as “borrowed scenery”, when the project uses elements of the background to compose the architecture and the landscape. In the balcony, we can see the treetop of a flamboyant, and the landscape project took it as the design concept to create a garden through all the balcony. It results in an arrangement between interior and exterior elements, as a vast green area inside an apartment on a complete urbanized zone of São Paulo.

© André Mortatti

Sketch 01

© André Mortatti
随着公寓的翻新,社交区已成为居民的大生活空间。厨房、餐厅、客厅和电视都与公寓的花园相连。重要的是要说,如果有必要,厨房可以通过旋转玻璃门与其他环境隔离开来,这些玻璃门允许光线通过,但阻挡了房间里人的视线。
With the renovation of the apartment, the social area has become a large living space for the residents. Kitchen, dining room, living room and TV are joined and directly connected to the apartment's garden. It is important to say that, if necessary, the kitchen can be isolated from the other environments by the pivoting glass doors that allow the passage of light, but block the view of those in the room.

© André Mortatti
在社会领域,选择了美国橡木地板,与帕里卡的天然木细木工制品相协调。立面的原始墙壁被剥落并涂成白色,给环境带来了乡村的感觉。环境的颜色由景观的绿色和装饰的小亮点给出。
In the social area, the American oak wood floor was chosen, which harmonizes with the natural wood joinery of Paricá. The original walls of the facade were peeled and painted in white, bringing a rustic feel to the environment. The colors of the environment are given by the green of the landscaping and small highlights of the decoration.

© André Mortatti
除了设计公寓的整个木工外,办公室还设计了房间里的一些家具,如沙发和餐桌。关于沙发,我们可以说它的设计目的是成为环境整合和连接的中心。它具有多种功能,既可用于放松时刻,也可用于交谈和社交时刻。另一方面,这张桌子采用细木工结构,其安装件由配件制成,灵感来自日本细木工。它有一个简单轻便的设计,适应最多样化的环境类型。
In addition to the design of the entire carpentry of the apartment, the office also designed some of the furniture present in the room, such as the sofa and the dining table. About the sofa, we can say that it was designed to become the center of integration and connection of the environment. It has multiple functions and can be used both for moments of relaxation and for moments of conversation and socialization. The table, on the other hand, has a joinery structure with mounting made in fittings, inspired by Japanese joinery. It has a simple and light design, adapting to the most diverse types of environments.

© André Mortatti