阿米蒂街公寓/塞尔玛·阿克卡里+拉万·穆卡达斯
Amity Street Apartment / Selma Akkari + Rawan Muqaddas
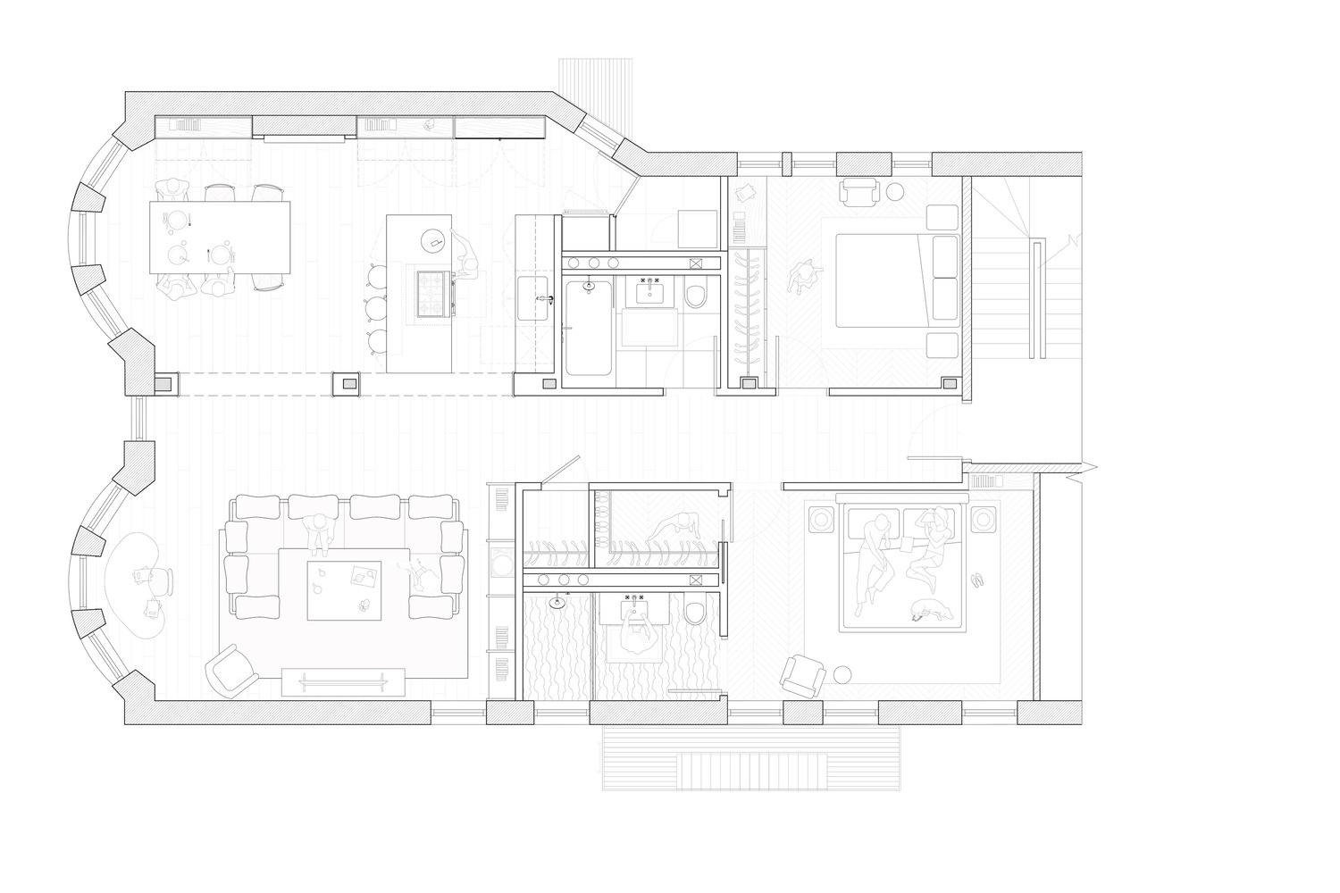
设计理念与空间布局:阿米蒂街公寓项目最引人注目之处在于其对“对立对话”设计理念的巧妙运用。设计师塞尔玛·阿克卡里和拉万·穆卡达斯将简约与温暖、低调与丰富完美融合。开放式厨房的设计是亮点,将厨房与生活空间融为一体,用大理石架子代替上层橱柜,既增加了视觉通透性,又提供了展示空间。卧室则被打造成宁静的休憩之所,设有集成架子、步入式衣柜和浴室,体现出对居住舒适度的极致追求。此外,项目还考虑了空间的可变性,设计了可增设第三间卧室的备选方案,展现了设计师对未来需求的预见性。
材料选择与色彩搭配:项目的精髓在于对材料的精心选择和色彩的和谐搭配。设计师通过铝制厨房与传统拱门、手工瓷砖与现代照明的对比,营造出独特的空间氛围。温暖的色调是整个项目的基调,橡木地板、奶油色墙壁、彩色木制书架的运用,使空间更具温馨感和层次感。这种对材料和色彩的细腻把控,不仅提升了公寓的品质感,也体现了设计师对美学的深刻理解。特别值得一提的是,厨房中紫绿色纹理的大理石架子,成为空间的视觉焦点,展现了设计师对细节的关注。
与历史建筑的对话与合作:阿米蒂街公寓项目另一个显著特点是尊重并利用了建筑的历史遗产。项目所在的1910年石头建筑赋予了项目独特的文化底蕴。设计师通过保留和突出历史元素,比如临街的凸窗,将建筑的过去与现代设计巧妙结合。此外,项目还与萨默塞特宫进行了合作,通过家具和软装的配置,将意大利和丹麦现代设计、巴洛克和原始风格巧妙融合,提升了空间的整体格调和居住体验。这种与历史建筑的对话以及与其他设计师的合作,使得项目更具深度和个性,也展现了设计师开放和包容的设计态度。

Courtesy of Selma Akkari

© Sean Davidson
建筑师提供的文字描述Amity Street是Selma Akkari与Rawan Muqaddas合作的一个以设计为导向的开发项目。布鲁克林公寓位于历史悠久的Cobble Hill区,坐落在一座建于1910年的石头建筑的四楼,俯瞰着Amity和Clinton拐角处一条安静的鹅卵石街道上郁郁葱葱的树林。这套迷人的公寓自60年代以来就没有人碰过,保持了二人决定在此基础上建立的个性。
Text description provided by the architects. Amity Street is a design-led development project by Selma Akkari in collaboration with Rawan Muqaddas. Located in the historic Cobble Hill district, the Brooklyn apartment sits on the 4th floor of a stone building built in 1910, overlooking a lush tree line on a quiet cobblestone street at the corner of Amity and Clinton. The charming apartment hadn’t been touched since the ‘60s, maintaining a sense of character that the duo decided to build on.

© Sean Davidson

Plan

© Sean Davidson
建筑设计师塞尔玛·阿克卡里(Selma Akkari)与拉万·穆卡达斯(Rawan Muqaddas)合作,此前一位开发商向他们提出了对该单元进行全面翻修的独特愿景。该计划旨在通过保持高端美学的可持续设计来提高房产的价值。纽约市市场竞争激烈,意味着需要足够的空间来满足新一波寻找房屋的Cobble Hill买家的需求——智能和创新的规划至关重要。
Architectural designer, Selma Akkari collaborated with Rawan Muqaddas after a developer approached them with a unique vision in mind for a complete gut renovation of the unit. The plan was to enhance the value of the property through a sustainable design lens that maintained a high-end aesthetic. The New York City market being quite competitive, meant the space needed to cater to a new wave of Cobble Hill buyers looking for homes - smart and innovative planning was crucial.

© Sean Davidson
为了逃离繁忙的布鲁克林街道,这所房子的中心经过了精心策划。为了保持厨房通风和开放,它被设想为生活空间的一部分,重点是用长长的大理石架子代替上层橱柜。架子上有两个烛台,作为背景展示了经过打磨的紫绿色纹理大理石。然后,布局允许冰箱远离餐厅,让它看不见。卧室被认为是一个宁静的时刻,有集成的开放式架子、独立步入式衣柜和浴室。第二间卧室引入了可操作的天窗,让更多的光线透过16扇窗户的角落公寓。考虑到适应性,我们构思了一个替代平面图,允许以最小的结构增加第三间卧室。居住空间仍然开放,拥有两扇俯瞰阿米蒂街的历史悠久的凸窗。
An escape from the busy Brooklyn streets, the heart of the home was carefully curated. Keeping the kitchen airy and open, it was conceived as part of the living space with emphasis on the long marble shelf in place of upper cabinets. The shelf, topped by two sconces, serves as a backdrop showcasing the honed purple-green veined marble. The layout then allows the fridge to be tucked away from the dining room, leaving it unseen. The bedrooms were perceived as a moment of serenity with integrated open shelves and an ensuite walk-in closet and bathroom. An operable skylight was introduced in the second bedroom, allowing even more light to flood through the 16-window corner apartment. With adaptability in mind, an alternative floor plan was conceived, allowing the addition of a 3rd bedroom with minimal construction. The living space then remains open, boasting the two historic bay windows overlooking Amity Street.

© Sean Davidson
设计师们看到了围绕建筑遗产的潜力。对立的对话是创作背后的主题:简约而温暖,低调而丰富。这个想法是通过将铝制厨房与传统的圆形拱门和手工瓷砖与柔和的现代照明相结合来实现的。温暖的色调通过柔和的橡木地板、与深色石头形成对比的奶油色墙壁和彩色木制嵌入式书架来统一空间。
The designers saw potential centered around the building’s legacy. A dialogue of opposites was the main theme behind the creation: minimal but warm, understated yet rich. This idea was materialized through the pairing of an aluminum-clad kitchen against a traditional rounded arch and hand-made ceramic tiles against soft contemporary lighting. A warm color palette was deployed to unify the spaces by way of gentle oak floors, cream-hued walls that contrasted with dark stone, and stained wood inset bookshelves.
“对立的对话是创作背后的主题;简约而温暖,低调而富有_Akkari&;穆卡达斯
‘ A dialogue of opposites was the main theme behind the creation; minimal but warm, understated yet rich.‘_Akkari & Muqaddas

Courtesy of Selma Akkari
为了让这个空间充满活力,两人致电萨默塞特宫进行舞台合作。凭借美学和活力上的内在联系,他们将意大利和丹麦现代不同文化和时代的巅峰融合在一起,再加上巴洛克和原始风格的影响,这一愿景迅速改变了空间。在精致细节和混合材料的背景下,Somerset在一个现代而温暖独特的空间中为空间引入了温暖的纹理、色调和光泽,这个空间给人一种以设计为中心的感觉,但也很亲密和吸引人。
In order to bring the space to its full life, the duo called in Somerset House for a staging collaboration. With an innate connection aesthetically and energetically, their vision of bringing together a culmination of different cultures and eras from Italian and Danish Modern mixed with a sprinkling of Baroque and Primitive influences quickly transformed the space. On a back-drop of refined details and a mixture of materials, Somerset introduced warmer textures, tones, and patina to the space in a modern yet warm and unique space that feels design-centric but also intimate and inviting.

© Sean Davidson

© Sean Davidson
“塞尔玛对细节和材料组合的极度关注真的吸引了我们——很明显,我们俩之间立即产生了协同作用。拱形的入口和开放、通风的布局,立刻让人觉得与我们精心策划的产品完美搭配,为空间带来了一些温暖的纹理、色调和光泽。”-Eckstein
‘Selma’s extreme attention to detail and mix of materials really attracted us - it was apparent there was an immediate synergy between the both of us. The arched entryways, and an open, airy layout, immediately felt would pair beautifully with our curated offerings which brought in some warmer textures, tones, and patina to the space.’ - Eckstein
“与塞尔玛的合作是完全合作的,这是我们重视的,并使该项目能够以有机的方式发展。”-Eckstein
‘With Selma, the partnership was completely collaborative, which is something we value and allows for the project to evolve in an organic way.’ - Eckstein

© Sean Davidson