鹿特丹公寓翻新/Ulli Heckmann
Rotterdam Apartment Renovation / Ulli Heckmann
空间重塑与功能优化:该项目最令人印象深刻的亮点在于对空间布局的颠覆性创新。设计师巧妙地将起居空间下移至底层,使得公寓能够直接通向花园和水域,极大地提升了居住体验的品质和与环境的互动性。同时,这种布局调整也巧妙地解决了隔音和隔热的问题,确保了居住的舒适性。开放式平面布局与灵活的功能分区相结合,例如高大的厨房橱柜兼作隔断,为居住者提供了在开放与私密之间自由转换的可能,满足了多样化的生活需求。这种对空间的高度利用和功能上的精心考量,展现了设计师对居住者需求的深刻理解。
材料运用与细节处理:该项目在材料选择和细节处理方面也体现出卓越的品质。设计师大胆地使用了胶合板和中密度纤维板等材料,并通过精心的表面处理,赋予这些材料独特的视觉效果和质感。例如,走廊的橱柜经过染色和硬蜡处理,墙面则使用了石灰膏,楼下采用生石灰,卧室则加入了绿色颜料,这些细节都为室内空间增添了层次感和独特的个性。这种对材料的熟练运用和对细节的极致追求,展现了设计师对品质的严格把控和对设计的精益求精。此外,设计中对原有建筑特征的尊重与创新结合,也是项目成功的关键。
光线与氛围的营造:项目对于光线和氛围的营造也颇具匠心。通过重新布局,底层起居空间获得了充足的自然光照,与花园和水域的景观相呼应,营造出通透、开放的氛围。楼上卧室的设计则更加注重私密性和舒适性,通过扩大主卧室的空间,使其兼具第二起居室的功能,为居住者提供了放松和休闲的场所。天花板高度的门在夏季可以打开,使楼上空间在需要时也能呈现开放式布局。这种对光线和氛围的巧妙控制,使得整个公寓既有开放的活力,又不失私密的温馨,满足了不同生活场景的需求,体现了设计师对居住体验的深刻理解。

© Yuta Sawamura

© Yuta Sawamura
建筑师提供的文字描述该公寓位于鹿特丹西部的一个地区,名为Delfshaven。它是1935年在Schie河沿岸堤防上建造的一座近200米长的扁平建筑的一部分,由底层和基本上向水开放的单侧地下室组成。
Text description provided by the architects. The apartment is situated in an area of West Rotterdam, which is called Delfshaven. It is part of an almost 200m long flat building from 1935 on a dike along the river Schie and consists of the ground floor and basically, a one-sided basement level that opens to the water.

© Yuta Sawamura
这套100平方米的公寓在80年代进行了翻修,遗憾的是,它失去了30年代的所有魅力和装饰元素,而邻居的一些公寓仍然保留着这些元素。然而,没有采取任何措施来改善上层和地下室的隔音和隔热性能。
The 100sqm apartment had been renovated in the 80s and sadly lost all its former charm and decorative elements of the 30s that some of the neighbor’s flats still show. Yet nothing had been done to improve acoustical and thermal insulation to the upper floors and the basement.

© Yuta Sawamura

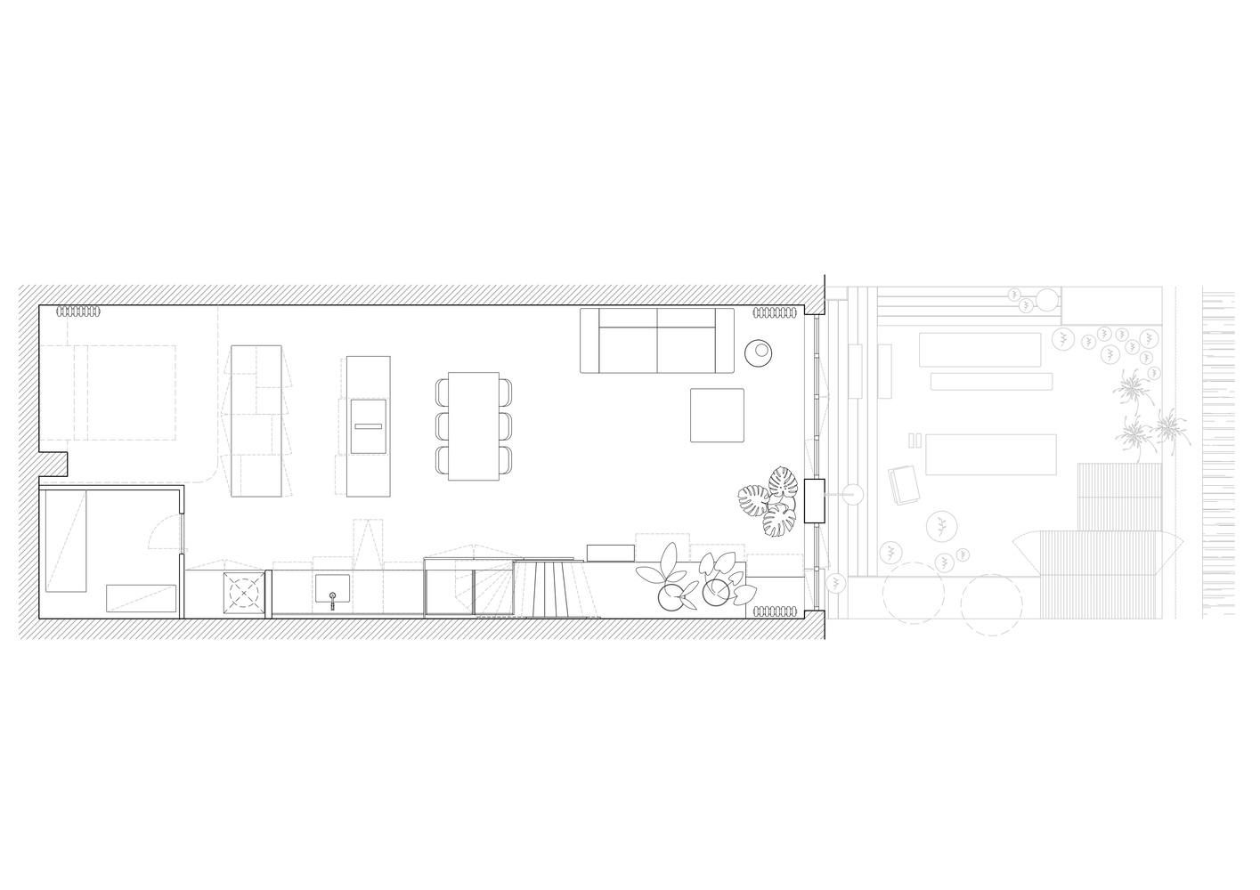
Floor plan
在修复公寓并去除楼梯和卫生间位置以外的任何内部元素后,我们颠倒了原来的布局。厨房、餐厅和客厅原本位于楼上,现在搬到了楼下,可以直接通往花园和水。这意味着将卧室和浴室放在街道上,并增加楼上邻居的隔音效果。
After curing the apartment and stripping it of any interior elements besides the staircase and the location of the restroom we inversed the former layout of the place. The kitchen, dining, and living room, which had been on the upper floor, were moved downstairs to grant direct access to the garden and the water. Which meant placing the bedrooms and bathroom at the street level and increasing acoustical insulation to the upstairs neighbor.

© Yuta Sawamura

© Yuta Sawamura
大多数空间都具有双重功能,即使楼下显示了一个完全开放的平面图,将客厅、用餐区和厨房重新连接起来,如果需要,仍然有隐私的空间。高高的厨房橱柜兼作房间分隔物,将主空间与区域分隔开来,例如看书、邀请朋友过夜,或者只是在不将衣物放在客厅中间的情况下烘干衣物。
Most of the spaces have a double function and even though the downstairs shows a completely open plan reuniting the living room, dining area, and kitchen there is still room for privacy if needed. The tall kitchen cupboards double as a room divider separating the main space from a zone for example reading a book, inviting friends to stay over or simply drying the laundry without putting it in the middle of the living room.

© Yuta Sawamura

© Yuta Sawamura
楼上的布局设计得更加隐蔽。然而,通过将主卧室稍微加大一点,它也可以变成一个更亲密的第二客厅,有空间做瑜伽、在大窗台长椅状的架子上看书或在浴缸里洗澡。同样通过让天花板高门在夏天打开,楼上几乎又变成了一个开放式布局。只有步入式衣柜和浴室藏在橱柜般的门后面。
The upstairs is designed with a more secluded layout. Nevertheless, by making the master bedroom slightly oversized, it can also become like a more intimate second living room with space for instance for yoga, reading a book on the large window sill bench-like shelf or enjoying a bath in the bathtub. Also by leaving the ceiling-high door open in summer upstairs almost becomes an open-plan layout again. Only the walk-in-wardrobe and the bathroom remain hidden behind cupboard-like doors.

Courtesy of Ulli Heckmann

© Yuta Sawamura
大多数家具由胶合板或中密度纤维板制成,然后经过处理以获得更独特的外观。例如,走廊里楼上的橱柜在涂上硬蜡之前,先用伯爵灰混合物染色。对于墙壁,我们使用石灰膏——楼下用生石灰,卧室用绿色颜料。
Most of the furniture is built of either plywood or MDF, which was then treated to obtain a more distinct look. For example, the upstairs cupboards in the corridor were dyed with an earl grey mixture before giving them a hard wax finish. For the walls, we used lime plaster – raw for the downstairs and with green pigments for the bedroom.

© Yuta Sawamura