莱马纹理公寓/一室公寓
Textures Apartment / Studio Lema
空间与纹理的和谐:该项目最显著的亮点在于对纹理的巧妙运用。设计者通过水磨石地板、雕刻木板、Terracor纹理等多种材料的组合,构建了一个既中性又丰富的空间。这种对材质的精细把控,不仅增加了视觉层次感,也营造了舒适温馨的居住氛围。尤其值得一提的是,纹理从墙面延伸到天花板的设计,创造了统一感,在视觉上扩大了空间,体现了设计者对整体性的追求。这种对细节的关注和对材料的深入理解,是该项目成功的关键。
功能与美学的融合:项目在功能性与美学之间取得了完美的平衡。设计师将厨房和盥洗室的门隐藏在木板后,通过巧妙的伪装,保持了空间的整洁性。同时,在阅读区设计了木箱,既提供了储物空间,又营造了温暖的氛围。此外,公寓内的花盆设计,不仅美观,而且提高了热舒适度和视觉舒适度。从定制橱柜到陶瓷吊坠,每一个细节都体现了设计师对实用性和美观性的双重考量,使得居住体验更加舒适和愉悦。家具的选择也体现了设计师对风格的把控,既有经典设计,又有定制作品。
色彩与光线的巧妙运用:项目在色彩和光线的处理上展现了其设计功力。设计师选择了中性色调作为基调,并通过不同材料的组合,避免了空间的单调。同时,通过家具的点缀,为空间增添了一抹亮色,营造出轻盈、温馨的氛围。光线的运用也至关重要,设计师通过自然光的引入,以及灯具的巧妙布局,增强了空间的通透感,并突出了纹理的质感。总而言之,设计师通过对色彩和光线的精心控制,营造了一个既优雅又充满生机的居住空间,体现了对居住者生活品质的关注。

© Carolina Lacaz

© Carolina Lacaz
建筑师提供的文字描述The Apartment Textures是一对夫妇的家,他们来圣保罗主要是为了工作。因此,该项目旨在成为一个舒适温馨的地方。该项目的概念来自中性基底的材料组合,但纹理丰富。
Text description provided by the architects. The Apartment Textures is the home of a couple who come to São Paulo, mainly for work. Therefore, the project aimed to be a comfortable and cozy place. The project's conception came from the composition of materials for a neutral base, but rich in textures.

© Carolina Lacaz
水磨石地板在整个生活区占据中心地位。为了补充它,墙壁选择了两种材料:雕刻木板和灰白色Terracor纹理。纹理流到房间的天花板上,营造出一种统一的感觉,扩大了空间。
The terrazzo flooring takes center stage throughout the living area. To complement it, two materials were chosen for the walls: Carvalho wood panels and an off-white Terracor texture. The texture flows onto the ceiling of the room, creating a sense of unity and expanding the space.

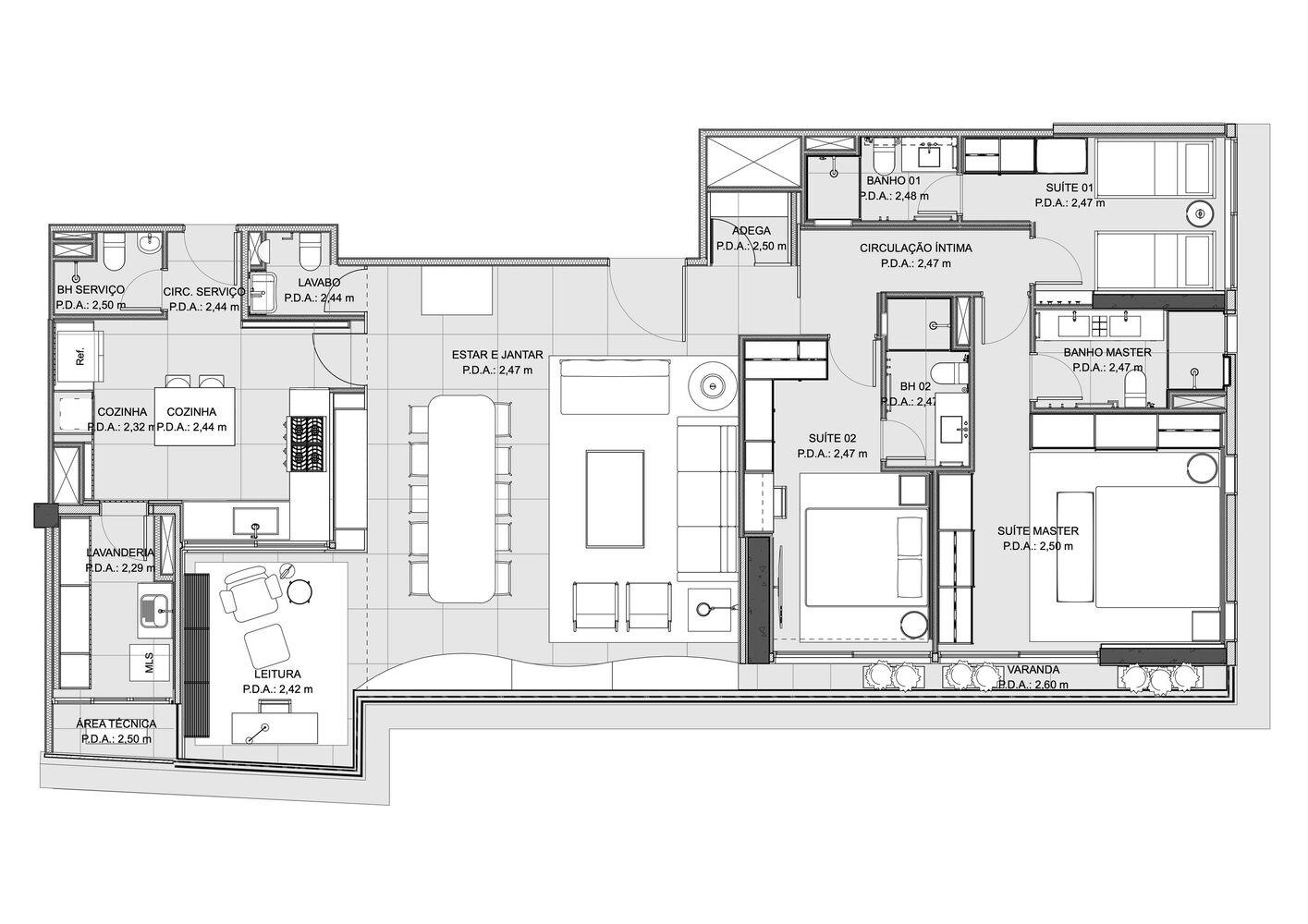
Plan
透过木板,厨房和化妆室的门被伪装了起来。里面开了一个缺口,用来放餐厅和酒吧的餐具柜。这个面板继续延伸到阅读区,在那里的想法是制作一个木箱。这个空间的温暖是通过卡瓦略木板天花板和这对夫妇图书馆的书架来实现的。
Through the wood panel, the doors to the kitchen and the powder room were camouflaged. A gap was opened in it for the dining and bar sideboards. This panel continues into the reading area, where the idea was to create a wooden box. The warmth of this space was achieved through the Carvalho wood-slatted ceiling and the bookshelf for the couple's library.

© Carolina Lacaz
出于在公寓内种植植被的愿望,沿着公寓的玻璃立面设计了一个花盆,有助于提高热和视觉舒适度。花盆采用有机形状,将绿色植物带到室内,并为坐和支撑物体提供空间。
The desire to have vegetation inside the apartment led to the creation of a planter along the glass facade of the apartment, contributing to thermal and visual comfort. With an organic shape, the planter brings greenery indoors and provides space to sit and support objects.

© Carolina Lacaz
厨房里也摆放了绿植,这对夫妇非常特别。定制橱柜旨在容纳所有餐具。陶瓷吊坠和木凳使厨房岛成为一个令人愉快的地方。
Greenery was also brought into the kitchen, a very special area for the couple. Custom-made cabinetry was designed to accommodate all utensils. Ceramic pendants and wooden stools make the kitchen island a pleasant place.

© Carolina Lacaz
每件家具的选择都产生了独特而原创的构图。除了客户和古董作品外,公寓还展出了专门设计的作品,其中一些是塞尔吉奥·罗德里格斯和让·吉隆等设计师设计的。
The choice of each piece of furniture resulted in a unique and original composition. In addition to the clients' and vintage pieces, the apartment features pieces designed exclusively and some by designers such as Sergio Rodrigues and Jean Gillon.

© Carolina Lacaz
中性色调的概念,但公寓覆盖基底的纹理丰富,延伸到了家具上。不同的材料,如石头、金属、木材种类和织物类型丰富了该项目,使其保持平静。
The concept of a neutral palette, but rich in textures for the apartment's covering base, extended to the furniture. Different materials such as stones, metal, wood species, and types of fabrics enriched the project, keeping it calm.

© Carolina Lacaz
有些作品带有一丝色彩,给人一种轻盈、温馨的环境感,既优雅又永恒。
With a touch of color in some pieces, we have the feeling of a light, welcoming environment that is also elegant and timeless.