Baronesa公寓
The Baronesa Apartment
空间布局的灵活性与高效利用:该项目最引人注目的亮点在于其对空间布局的巧妙设计,尤其是在厨房和客厅的衔接上。通过灵活的滑动门设计,设计师实现了空间在开放与封闭之间的自由切换,满足了不同使用场景的需求。这种设计不仅提升了空间的功能性,也增加了空间的灵活性,使得居住者可以根据日常活动的需求自由调整空间配置。此外,对客厅方形空间的巧妙分割,以及定制书架的设计,都体现了设计师对空间高效利用的专业能力。这种细节的把握,使得整个公寓既实用又美观。
材质和色彩的和谐统一:项目在材质和色彩的选择上展现了极高的品味。整体色调以白色、木材和水泥为主,营造出一种简约、现代且温馨的氛围。这种色彩搭配不仅在视觉上给人以舒适感,也突出了材质本身的质感。特别是卧室中,烧制的混凝土质感床头板、木质地板和床头柜的结合,以及悬挂植物形成的绿色窗帘,都体现了设计师对不同材质的运用和整合能力。这种材质和色彩的和谐统一,使得整个公寓在视觉上具有整体性,并传达出一种宁静而优雅的生活态度。
设计风格的融合与创新: 项目的设计风格融合了现代简约、巴西当代和斯堪的纳维亚设计元素,展示了设计师对不同设计流派的深刻理解和创新应用。例如,项目巧妙地使用了来自Estúdio Bola和Carbono的巴西当代家具,并搭配了Saarinen桌子和Arne Jacobsen的7系列椅子等经典斯堪的纳维亚设计,创造出一种既熟悉又新鲜的美学体验。这种风格的融合,使得公寓在保持简约的同时,也充满了独特的个性。这种创新性的设计风格,不仅提升了项目的审美价值,也为居住者带来了独特的生活体验。
/ Lucia Manzano Arquitetura + Paisagismo

© Maura Mello

© Maura Mello
建筑师提供的文字描述The Baronesa Apartment最初拥有一个结构良好的布局,包括一个带阳台的宽敞客厅、一间主卧室和两间额外的卧室。客户表示他们希望有一个完全翻新的厨房,一个明亮宽敞的厨房,能够与客厅无缝集成,或者根据日常活动的需要关闭。为了实现这一愿景,我们设计了一种提供灵活性的滑动门:它可以完全打开、嵌入墙壁或完全关闭。
Text description provided by the architects. The Baronesa Apartment originally boasted a well-structured layout, featuring a spacious living room with a balcony, a master bedroom, and two additional bedrooms. The clients expressed their desire for a fully renovated kitchen, one that is luminous and expansive, capable of seamlessly integrating with the living room or being closed off as needed for daily activities. To fulfill this vision, we devised a sliding door that offers flexibility: it can be fully opened, recessed into the wall, or closed altogether.

© Maura Mello

© Maura Mello
这个项目的主要挑战之一集中在客厅的布局上。考虑到房间的方形形状,我们选择了一张双人沙发,有效地将空间分为电视区和休息室,确保了两种功能的舒适性。定制的木工书架被精心打造,以协调房间,同时满足客户对充足存储空间的要求,以整理书籍和装饰物品。
One of the primary challenges of this project centered around the living room's layout. Given the room's square shape, we opted for a double sofa that effectively divides the space into a TV area and a lounge, ensuring comfort for both functions. A bespoke woodworking bookshelf was crafted to harmonize the rooms while fulfilling the client's request for ample storage to organize books and decor items.

© Maura Mello
阳台成为居民的关键元素,促使我们设计客厅布局,无缝延伸到这个空间,为与朋友和家人的社交聚会营造温馨的氛围。餐厅和酒吧毗邻厨房墙壁,通过滑动门连接,以方便这些区域之间的互动。
The balconies emerged as pivotal elements for the residents, prompting us to design the living room layout to seamlessly extend into this space, fostering a welcoming ambiance for social gatherings with friends and family. Adjacent to the kitchen wall lies the dining room and bar, connected via the sliding door to facilitate interaction between these areas.

© Maura Mello
公寓的装饰采用极简主义和诱人的风格,展示了当代巴西家具,如Estúdio Bola的乐高沙发和Carbono的C26扶手椅。这些元素与经典的斯堪的纳维亚设计元素巧妙地结合在一起,如Saarinen桌子和Arne Jacobsen的7系列椅子,形成了现代简约的美学,促进了整个空间的轻盈与和谐。
Embracing a minimalist and inviting style, the apartment's decor showcases contemporary Brazilian furniture pieces, such as the Lego sofa from Estúdio Bola and the C26 armchair from Carbono. These are artfully combined with classic Scandinavian design elements like the Saarinen table and the Series 7 chairs by Arne Jacobsen, resulting in a modern and minimalist aesthetic that promotes lightness and harmony throughout the spaces.

© Maura Mello

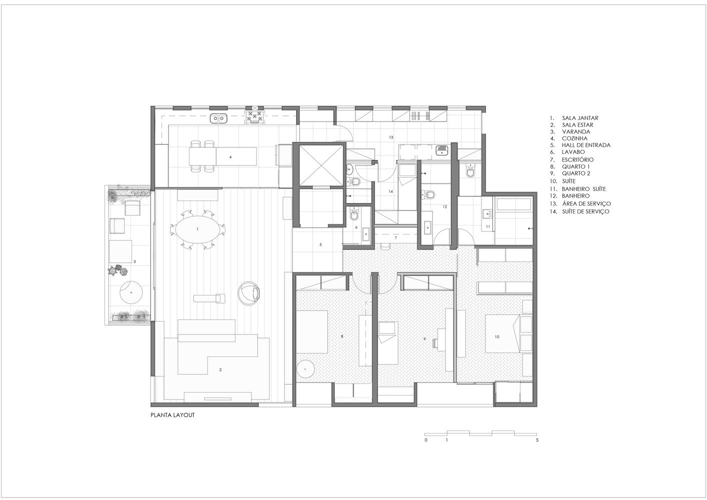
Floor plan

© Maura Mello
在主卧室,我们保持了与公寓色调的连续性,强调白色、木材和水泥。这对夫妇的床头板采用烧成的水泥质感,辅以木地板和床头柜,营造出舒适宜人的氛围。一个突出的特点是由悬挂植物制成的绿色窗帘,不仅确保了隐私,还为空间注入了绿色植物,丰富了整体氛围。
In the master bedroom, we maintained continuity with the apartment's color palette, accentuating white, wood, and cement. The headboard of the couple's bed features a burnt cement texture, complemented by wooden floors and bedside tables, creating a cozy and comforting atmosphere. A standout feature is the green curtain made of hanging plants, not only ensuring privacy but also infusing the space with greenery, enriching its overall ambiance.

© Maura Mello