2位建筑师之家/Toledano+建筑师
House for 2 Architects / Toledano+Architects
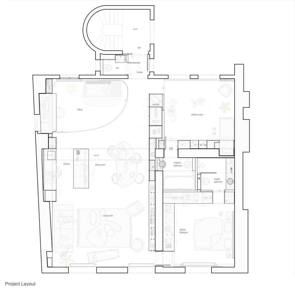
空间布局与光线利用:该项目最突出的亮点在于对原有公寓的改造,设计师巧妙地利用了5楼的地理位置,最大化地利用了自然光。通过开放式布局的规划,打破了原有的封闭结构,实现了东西方向的双重采光。尤其值得称道的是,设计师保留并强调了原有承重墙的位置,以淡绿色金属梁的形式呈现,既增强了结构,又成为了设计中的一个视觉元素,既实用又美观。这种对光线的敏感度和对空间的重塑,体现了对城市生活和居住舒适度的深刻理解。
材料选择与细节处理:项目在材料的选择上体现了对品质和实用性的双重考量。天然石灰的使用不仅改善了空气质量,还营造了温暖的氛围,与巴黎建筑的特色相融合。厨房的不锈钢材质和洞石岛台的选择,既考虑了耐用性,也与浅色拼花地板形成了和谐的视觉效果。胡桃木的运用为空间增加了温馨感,而儿童房的胶合板则创造了活泼有趣的氛围。每一个细节都经过精心设计,体现了对居住者生活需求的细致关怀,展现了设计师对材料的深刻理解和卓越的审美。
功能分区与灵活设计:项目将空间划分为三个主要部分,满足了家庭成员的不同需求。主生活区兼顾了社交、工作和休闲功能,而可灵活使用的家庭办公室配备了圆形毛毡窗帘,既能隔音也能作为备用卧室,体现了空间的多功能性。昼夜空间的分割采用连续的胡桃木元素,不仅美观,还隐藏了储物、洗衣等功能,增加了空间的整洁度。儿童卧室的设计也充分考虑了儿童的特点,通过双层床、玩具储藏等元素,打造了一个充满趣味性的空间,体现了以人为本的设计理念。

© Romain Ricard

© Romain Ricard
建筑师提供的文字描述House for 2 Architects是对巴黎拉丁区卢森堡花园前一套19世纪公寓的翻修。由于公寓位于5楼,景色非常令人印象深刻,我们想强调这种品质。在巴黎这样人口稠密的城市,光线是增强的主要因素之一。
Text description provided by the architects. House for 2 Architects is the renovation of an apartment from the 19th century in front of the Luxembourg Garden in the Latin quarter of Paris. Because the apartment is on the 5th floor, the views are very impressive and we wanted to highlight that quality. In a dense city like Paris, light is one of the main elements to enhance.

© Romain Ricard

© Romain Ricard
最初的布局是非常分隔的,有很多小的单向房间。这个想法是开放计划,实现从东到西的双重曝光,并且能够从早上到晚上看到太阳的路径。为了实现这一目标,我们不得不打破一堵50厘米宽的承重墙。用于加固结构的金属梁以淡绿色突出显示,以提醒人们以前的情况。
The original layout was very partitioned, with lots of small mono-oriented rooms. The idea was to open up the plan to have double exposure, east to west, and be able to see the sun's path from morning to night. To achieve that, we had to break a 50cm wide bearing wall. The metal beam used to reinforce the structure was highlighted in pale green as a reminder of what was there before.

© Romain Ricard

© Romain Ricard
这套公寓是为一个4口之家设计的,两个小孩共用一间卧室,卧室里有双层床和一间浴室。
The apartment is designed for a family of 4, with 2 small kids sharing a bedroom with bunk beds and a bathroom, on their side of the apartment.

该空间分为3个部分:主生活空间,包括厨房、餐厅、客厅和家庭办公室;父母卧室套房和儿童卧室套房,在对面。
The space is divided into 3 parts: the main living space which includes a kitchen, dining room, living room, and a home office; the parents’ bedroom suite and children's bedroom suite, on opposite sides.

© Romain Ricard

© Romain Ricard
昼夜空间由一个从东到西的长而连续的胡桃木元素隔开,其中包含并隐藏了洗衣房、储藏室、书架和家庭影院。
The day and night spaces are separated with a long continuous walnut wood element from east to west that contains and hides the laundry, storage, the bookcase and a home cinema.

© Romain Ricard

© Romain Ricard

© Romain Ricard
在主区域,家庭办公室配备了一个圆形毛毡窗帘,可以关闭空间,甚至在需要时将其作为第三间卧室。毛毡有助于隔绝噪音。开放后,这个空间可以举办大型晚宴。
In the main area, the home office is equipped with a circular felt curtain to be able to close the space, and even make it a 3rd bedroom when needed. The felt helps isolate from the noise. When opened, the space enables to hosting of large dinner parties.

© Romain Ricard

© Romain Ricard
在材料方面,所有的墙壁都覆盖着天然石灰,因为它有利于空气质量、隔离以及它创造的温暖氛围。厨房采用振动不锈钢制成,以减少孩子们的指纹,并抵抗时间的流逝。厨房岛由洞石制成,与浅色拼花地板融为一体。胡桃木和不锈钢被用于书架,为空间和主卧室带来了一些温暖。
In terms of materials, all the walls were covered with natural lime, because of its benefits for the quality of the air, the isolation as well as the warm atmosphere it creates. The kitchen was made with vibrated stainless steel to reduce the fingerprints from the kids and resist through time. The kitchen island is made from travertine stone, to blend with the light parquet floor. Walnut wood and stainless steel were used in the bookcase to bring some warmth into the space and also in the master bedroom.

© Romain Ricard
在孩子们的卧室里,胶合板被用来制作双层床、壁橱、玩具储藏室和书架,以创造一个有趣而年轻的环境。
In the kids' bedroom, plywood was used to create the bunkbeds, closets, toy storage and bookcases to create a playful and young environment.
© Romain Ricard