G公寓翻新/岸田吉郎+IIIRD项目
G Apartment Renovation / Yoshiteru Kishida + IIIRDPROJECT
灵活的开放空间设计:该项目最显著的特点是其对于开放空间的巧妙运用。设计师通过拆除不必要的墙壁,将原本狭小的空间转化为一个开放且灵活的居住环境。这种设计不仅最大化了空间利用率,还为居住者提供了自由布置家具和物品的可能性,使其能够根据个人喜好和生活方式进行个性化定制。这种开放性也为未来的家庭变化预留了空间,增加了设计的长期适应性。项目充分体现了对居住者需求的深刻理解和对空间潜力的充分挖掘,展示了现代居住设计中以人为本的核心理念。
材料与光线的巧妙运用:该项目在材料的选择和光线的运用方面也展现了独特的创造力。项目巧妙地运用了胶合板和砂浆等材料,在不同的功能区域之间创造出视觉上的联系和对比,从而营造出丰富且具有层次感的生活空间。同时,光线的运用也是一个亮点。通过落地窗的设计,将外部的城市景观引入室内,增强了空间与环境的互动。通过对光线和影子的巧妙运用,该项目赋予了空间更多的动态性和表现力,营造出一种明亮、通透而又充满生机的居住氛围。这种光影的变化也让空间随着时间流逝而焕发不同的魅力。
细节与整体的完美结合:该项目不仅注重整体空间的设计,也十分关注细节的处理。从材料的选择到家具的摆放,再到艺术品的装饰,每一个细节都体现了设计师对生活美学的追求和对空间整体感的把握。设计师通过对“能控制”和“不能控制”的元素进行巧妙的协调和平衡,在有限的空间内创造出多个功能区,并使得这些功能区既相互独立又相互关联。这种设计思路使得整个空间既满足了居住者的功能需求,又保持了视觉上的和谐统一,更突出了居住者对生活方式的追求。这体现了设计者对空间的深入理解,也展现了其在设计上的专业性和创造力。

© Akira Nakamura

© Akira Nakamura
建筑师提供的文字描述位于东京涉谷区一栋公寓楼上层的一套原本只有一间卧室的公寓被翻修成了一个人(家庭)的家。这位客户有各种各样的爱好,他希望有一个开放宽敞的布局,可以自由摆放各种物品,并能够适应家庭未来的变化。
Text description provided by the architects. An originally one-bedroom apartment located on one of the upper floors of an apartment building in Shibuya Ward, Tokyo, was renovated into a home for a single person (family). The client, who has a variety of hobbies, wanted an open and spacious layout that would allow various objects to be freely laid out and would be able to accommodate future changes in the family.

© Akira Nakamura

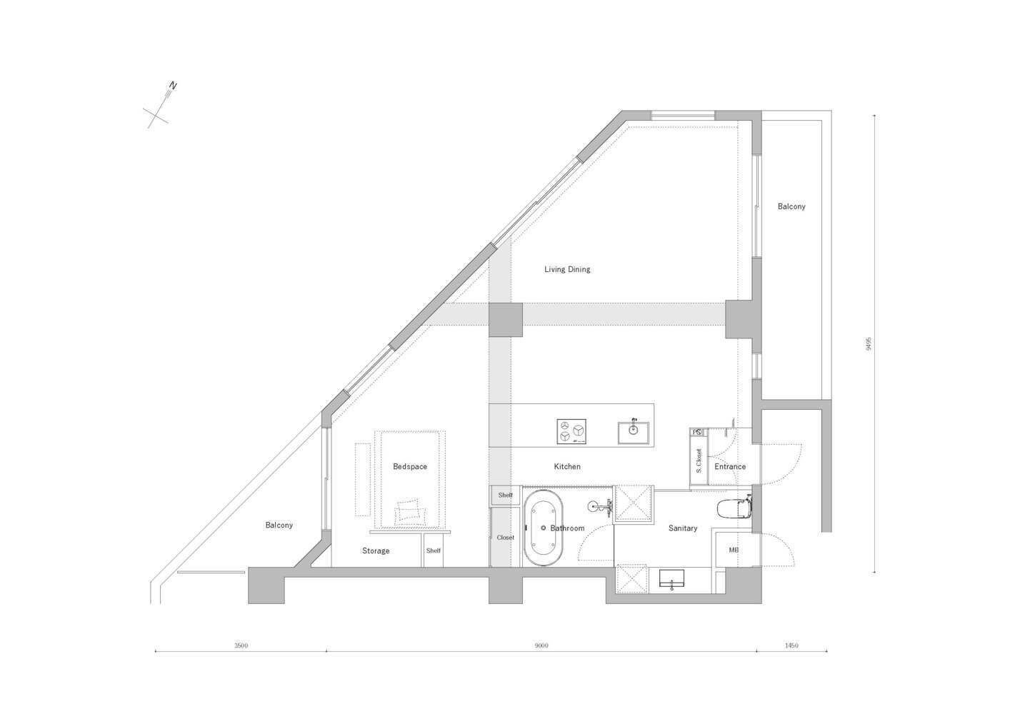
Plan - After

© Akira Nakamura
拆除了不必要的私人房间的墙壁,暴露了由此产生的房间中间的柱子和横梁,在一个空间中形成了三个轻轻划分的区域。考虑到公寓中只有一个房间,而且建筑物的结构不能改变,目的是设计可以同时控制和不可以同时控制的东西。
The demolition of the walls of unnecessary private rooms exposed the pillars and beams in the middle of the resulting room, creating three gently divided areas in a single space. Considering the confinement of a single room in an apartment, and the fact that the building’s structure could not be changed, the aim was to design the things that could and could not be controlled at the same time.

© Akira Nakamura
在将装饰材料、窗户形状、家具和物体等特征视为主要特征的同时,通过控制(或不控制)三个区域的位置和方向,可以在房间内创建和突出显示各种风景。
While treating the features such as finishing materials, window shapes, furniture and objects, as main characters, various sceneries can be created and highlighted within the room by controlling (or not) the location and orientation of the three areas.

© Akira Nakamura
从入口到厨房,再到浴室,劳安胶合板和砂浆的使用方式与不同的功能相交。玻璃随着时间的推移不断传递和反射,家具根据一天的心情自由活动,散落在房间里的艺术品和爱好为生活增添了色彩。。。
From the entrance, through the kitchen, and up to the bathroom, the lauan plywood and mortar are used in a way that intersects different functions. The glass keeps transmitting and reflecting as time goes by, the furniture acts freely depending on the mood of the day, and the artworks and hobbies scattered around the room add color to the life...

© Akira Nakamura

© Akira Nakamura
我们生活中不断变化和出现的各种景观与东京的高层窗户景观相连,创造了一个与城市重叠的生活空间。其目的是在城市上下起伏的生活中创造新的日常景观。
The various landscapes transforming and emerging as we live our lives are connected to the high rise window view of Tokyo, creating a living space that overlaps with the city. The aim was to create new everyday sceneries in a life oscillating between up and down the city.

© Akira Nakamura