A Round and Around家居装修/HAMS and Studio
A Round and Around Home Renovation / HAMS and, Studio
空间利用与城市互动:该项目最显著的亮点在于其对空间利用的精妙把握,以及与城市环境的巧妙互动。设计者没有选择大刀阔斧的改造,而是将已有的翻新视为“地形”或“背景”,以最小的干预实现了最大的空间潜能释放。圆形书架的引入,不仅作为了视觉中心,更串联起整个居住空间,使居住者与周围的城市景观建立了一种独特而直接的联系。这种设计理念体现了对城市环境中时间与空间间隙的深刻理解和巧妙利用,将城市动态融入室内,创造出一种内外无缝连接的居住体验,充分展现了建筑师对空间的高超掌控力。
“寄生”手法与材料运用:项目的精髓在于其“寄生”的设计手法,即在现有结构的基础上进行有限度的改造,充分利用现有条件,以达到最佳效果。设计者并未忽视翻新过的墙面和地板,而是将其视为创作的基础和纹理。这种做法不仅节约了成本,更赋予了空间一种独特的历史感和连续性。通过巧妙地利用翻新材料的微妙质感,设计师成功地在有限的空间内创造了舒适且充满个性的居住环境。这种对材料的敏感和对现有环境的尊重,体现了设计师对可持续设计和改造潜力的深刻理解。这是一种在有限条件下实现创新和个性化的典范。
圆形书架与生活方式的结合:圆形书架作为核心设计元素,不仅是视觉焦点,更是连接居住者与个人收藏的纽带。设计师将居住者的生活方式融入到设计之中,以书架环绕起居住空间,形成360度的互动体验,使得书籍和其他珍藏品成为生活的一部分。这种设计理念超越了单纯的装饰,而是创造了一种全新的生活方式,激发了居住者与周围环境的互动。这种以人为本的设计理念,将个人物品与空间融为一体,体现了设计师对居住者需求的深刻理解,以及对生活方式的独特诠释。这种设计手法也为未来公寓改造提供了有益的借鉴。

© Akira Nakamura

© Akira Nakamura
建筑师提供的文字描述当你翻开一本书时,文字在你的脑海中盘旋。当你打开窗户,汽车和火车从一个城市跑到另一个城市。当这些活动发生时,内部和外部无缝连接。在一个趋势是无所有权的世界里,这位建筑师的家是经过精心规划的,周围环绕着随着时间的推移而积累的珍贵物品,同时拖着过去的自己。
Text description provided by the architects. When you open a book, words whirl around in your mind. When you open a window, cars and trains race around from city to city. The inside and outside seamlessly connect when such activities take place. In a world where the trend is toward non-ownership, this architect’s home was planned, surrounded by cherished items accumulated over time while dragging along his past self.

© Akira Nakamura

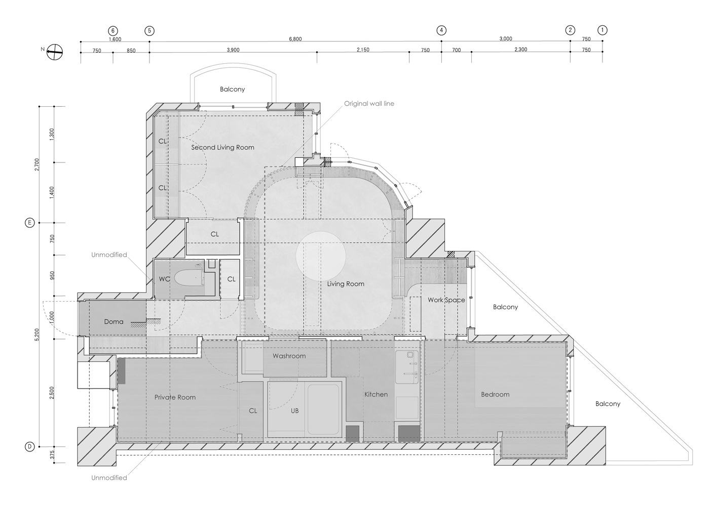
Plan

© Akira Nakamura
该地点位于东京晴空塔脚下人口稠密的住宅区。尽管它只是公寓楼中的一个房间,但它的位置可以直接体验城市动态,因为一条主干道正好从大楼前面经过,当地的火车与房间在同一水平上运行。现有的房间已经由一家房地产转售公司翻修过。有一种印象是,公寓平面结构的独特潜力正在被抑制。在这次翻修中,我们将已经翻修过的饰面视为某种地形或背景。其目的是探索作为整体城市活动的一部分而扩展的私人生活空间的性质,通过“寄生”现有环境,以最小的干预和最大的影响影响整个空间。
The site is located in a densely populated residential area at the foot of Tokyo Skytree. Despite being just a room in an apartment complex, its location allows for a direct experience of urban dynamics, as a main road passes right in front of the building, and local trains run closely at the same level as the room. The existing room had already been refurbished by a real estate resale company. There was an impression that the unique potential of the flat’s planar structure was being subdued.In this renovation, we perceived the already renovated finishings as a certain terrain or context. The aim was to explore the nature of a private living space that expands as a part of the overall urban activity, influencing the entire space with minimal intervention yet maximum impact by “parasitizing” the existing context.

© Akira Nakamura

Section
这个房间的新主人收集了大量的书籍,渴望过上被各种珍贵物品包围的生活。因此,我们构思了在平面图的中心加入一个圆形书架的想法。通过将这个360度环绕的中央空间作为客厅,我们相信这将使居民与他们的物品建立生动互动的关系。因此,决定将外墙的独特曲线镜像出来,并将其带入内部空间。圆形书架与外墙的曲线相呼应,构成了空间的骨架。流通路径、固定装置、长凳等被纳入这个框架,导致现有的元素,如较小的房间、走廊、厨房、卫生间和凸窗,与书架交织在一起。
The new occupant of this room had amassed a large collection of books and was longing for a life surrounded by various treasured items. Consequently, we conceived the idea of incorporating a circular bookshelf at the heart of the floor plan. By making this 360-degree wrapped central space the living room, we believed it would enable the residents to have a vivid and interactive relationship with their belongings.Thus, it was decided to mirror the distinctive curved line of the external wall and bring it into the internal space. The circular bookshelf, echoing the external wall’s curve, forms the skeleton of the space. Circulation paths, fixtures, benches, etc., were incorporated into this framework, resulting in existing elements such as smaller rooms, a hallway, a kitchen, a washroom, and bay windows engaging with the bookshelf in an intertwined manner.

© Akira Nakamura
起点是一个翻修过的房间,它只是优先考虑盈利业务,但我们努力通过最小的改动创造舒适的空间,同时最大限度地利用现有功能。这种追求充满了一定程度的悖论。因此,我们认识到并利用了翻新乙烯基壁纸和仿木乙烯基地砖的微妙纹理或均匀性,并将其视为我们项目的地形和基础。这种方法允许积极接受新建建筑或全面翻修不可能实现的特征。
The starting point was a renovated room that merely prioritizes a profitable business, but we strived to create comfortable spaces through minimal alterations while maximizing the utilization of existing features. This pursuit is imbued with a certain level of paradox. So, we recognized and made use of the subtle textures or evenness of the refurbished vinyl wallpaper and wood-like vinyl floor tiles, and considered them as the topography and foundation of our project. This approach allows for a positive acceptance of characteristics that isn’t possible with newly constructed buildings or full renovations.

© Akira Nakamura

Shelf Section

© Akira Nakamura

© Akira Nakamura
目前,有一种趋势是,房地产转售公司正在迅速对有前景的二手公寓进行统一翻新。这个项目源于一种衷心的愿望,即通过巧妙利用城市内的时间和空间差距进行部分翻修,获得一个纯粹为自己打造的独特空间,周围环绕着珍贵的财产。我们的目标是让这个项目代表一种新的局部翻修方法。
Currently, there is a trend where real estate resale companies are rapidly applying uniform refurbishments to promising second-hand apartments. This project stems from a heartfelt desire to obtain a unique space purely for ourselves, surrounded by cherished possessions, through partial renovations that cleverly utilize the temporal and spatial gaps within the city. We aim for this project to represent a new approach to partial renovations.

© Akira Nakamura