玻璃酒吧| CASACOR米纳斯2024/Balsa Arquitetura
Glass Bar | CASACOR Minas 2024 / Balsa Arquitetura
设计理念与空间融合:该项目展现了对既有空间的尊重与创新。通过对原有建筑特征、颜料和层次的保留,设计师巧妙地将酒吧运营所需的元素融入其中,实现了新旧元素的完美结合。这种设计不仅保留了场地的历史感,还通过现代功能的注入,创造出一个温馨舒适的环境,充分体现了设计的包容性和前瞻性。
材质与光影的探索:酒吧的设计在材质运用上极具亮点。大石板制成的柜台与玻璃板的叠加,形成了层次分明且富有透明感的空间效果。玻璃材质的大量运用不仅增强了空间的通透感,还通过反射和透明度的变化,营造出光影交错的视觉效果。这种对材质和光影的探索,赋予了空间独特的现代感与艺术性。
艺术与功能的结合:下层休息室的设计以舒适为核心,同时融入了艺术家Vitor Mizael的作品,为空间注入了活力。金属结构上的艺术品不仅成为视觉焦点,还通过其色彩影响了家具的饰面选择。这种艺术与功能的结合,不仅提升了空间的审美价值,还为消费者提供了一个更具情感共鸣的消费环境。

© Estúdio NY

© Estúdio NY
建筑师提供的文字描述该项目反映了CASACOR Minas 2024的概念,其基础是尊重和保护该物业中已经存在的特征、颜料和层。在这个坚实的基础上,增加了酒吧运营所必需的元素。在功能上,创造了一个温馨舒适的环境。该项目重视新旧、纹理和材质之间的对比,并探索不透明度、反射和透明度。
Text description provided by the architects. Reflecting the concept of CASACOR Minas 2024, the project is based on respect and preservation of the features, pigments, and layers that already existed in the property. On this solid foundation, elements essential for the operation of the bar were added. Functionally, an inviting and comfortable environment was created. The project values the contrast between the old and the new, between textures and materials, and explores opacities, reflections, and transparencies.

© Estúdio NY

© Estúdio NY

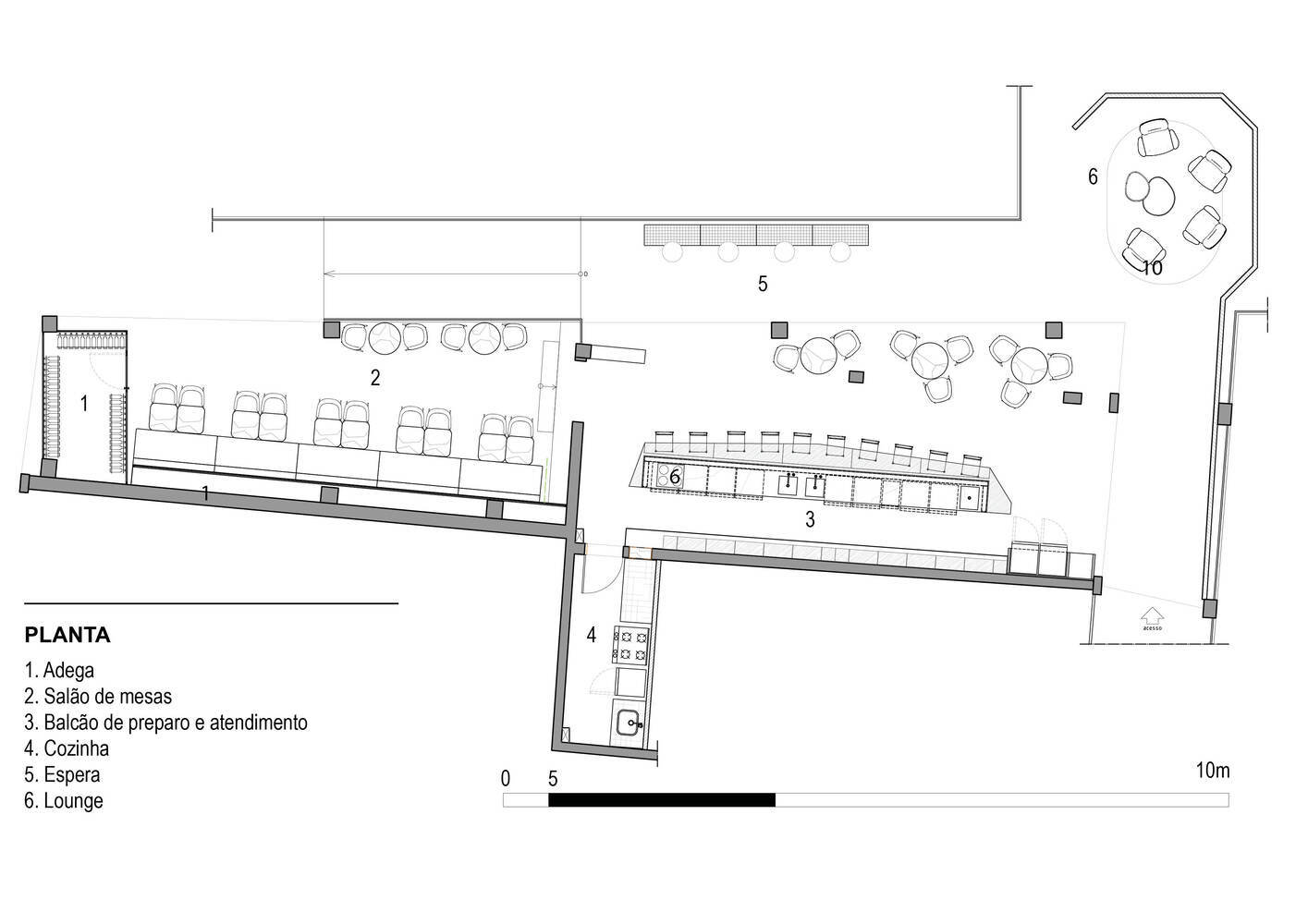
Plan
酒吧柜台由大块石板制成,其上还有一个由玻璃板制成的柜台,创造了分层、透明、光线和反射的有趣相互作用。在背景中,功能性的酒吧货架完全由玻璃制成。玻璃上的玻璃,在探索这种材料的新视角的练习中。
The bar counter is made of large stone slabs, and on top of it, another counter made of glass sheets, creating an interesting interplay of layering, transparency, light, and reflections. In the background, the functional bar shelf, entirely made of glass. Glass over glass, in an exercise of exploring a new perspective on this material.

© Estúdio NY
下层休息室的设计是为了创造一个更舒适的消费空间。环境的亮点是艺术家Vitor Mizael的艺术品,固定在金属结构上。这件艺术品引人注目,为空间带来了充满活力的调色板。这种色调反映在家具的饰面上。
The lower lounge was designed to create a more comfortable consumption space. The highlight of the environment is the artwork by artist Vitor Mizael, fixed to the metal structures. The artwork is striking and brings a vibrant color palette to the space. This color palette is reflected in the finishes of the furniture.

© Henrique Queiroga