面包糕点和饮料/建筑师胡说八道
Bun Pastry & Beverages / Architect Nonsense
空间与功能的巧妙融合:该项目最突出的亮点在于其对空间和功能的巧妙结合。建筑师没有孤立地看待咖啡馆的功能,而是将其与住宅空间无缝融合,体现了对业主需求的深刻理解。线性布局和错层设计不仅优化了空间利用率,还创造了动态的空间互动,连接了前后花园,提升了顾客的体验。前院的设计也值得称赞,通过砾石花园为自行车爱好者提供服务,增强了立面的视觉深度,并将建筑与周围环境有机结合。
可持续与本土化的设计理念:项目的精髓在于其可持续性和本土化的设计理念。建筑师充分利用了现场的自然通风廊,通过通风块的设计实现了交叉通风,这种被动式的设计策略显著提高了能源效率,并创造了舒适的室内环境。材料的选择也体现了对当地环境的尊重,裸露的混凝土和木材的使用不仅具有可施工性,也与当地的建筑风格相协调。此外,回收利用业主收藏的木材,更是体现了对可持续设计的深刻理解,赋予了建筑独特的个性和故事。
光线、材料与体验的完美平衡:该项目成功地平衡了光线、材料和顾客体验。全高玻璃幕墙引入了充足的自然光线,同时提供了街道景观,增强了室内与室外的联系。材料的选择和运用也体现了设计师的匠心独运。裸露的混凝土和木材营造出一种质朴而温馨的氛围,而纹理深灰色的石膏墙则为简约的设计增添了视觉趣味。整个设计营造出一种宁静、舒适的氛围,既满足了咖啡馆的功能需求,又为顾客提供了愉悦的感官体验,体现了极简主义与亲生物设计的和谐统一。

© Thanarit jirarapeephan

© Thanarit jirarapeephan
建筑师提供的文字描述面包糕点;Beverages是一家位于泰国攀牙省Thaimuang区的小咖啡馆。该项目源于业主的愿望,即创建一个无缝融入其住宅空间的咖啡馆。该设计强调功能布局,支持日常新鲜糕点烘焙,同时作为家庭活动中心,在舒适温馨的氛围中欢迎欣赏优质咖啡和糕点的顾客。
Text description provided by the architects. Bun Pastry & Beverages is a small café located in Thaimuang District, Phang Nga Province, Thailand. The project stems from the owner's aspiration to create a café that seamlessly integrates into their residential space. The design emphasizes a functional layout that supports daily fresh pastry baking while serving as a family activity hub, welcoming patrons who appreciate quality coffee and pastries in a cozy and inviting atmosphere.

© Thanarit jirarapeephan

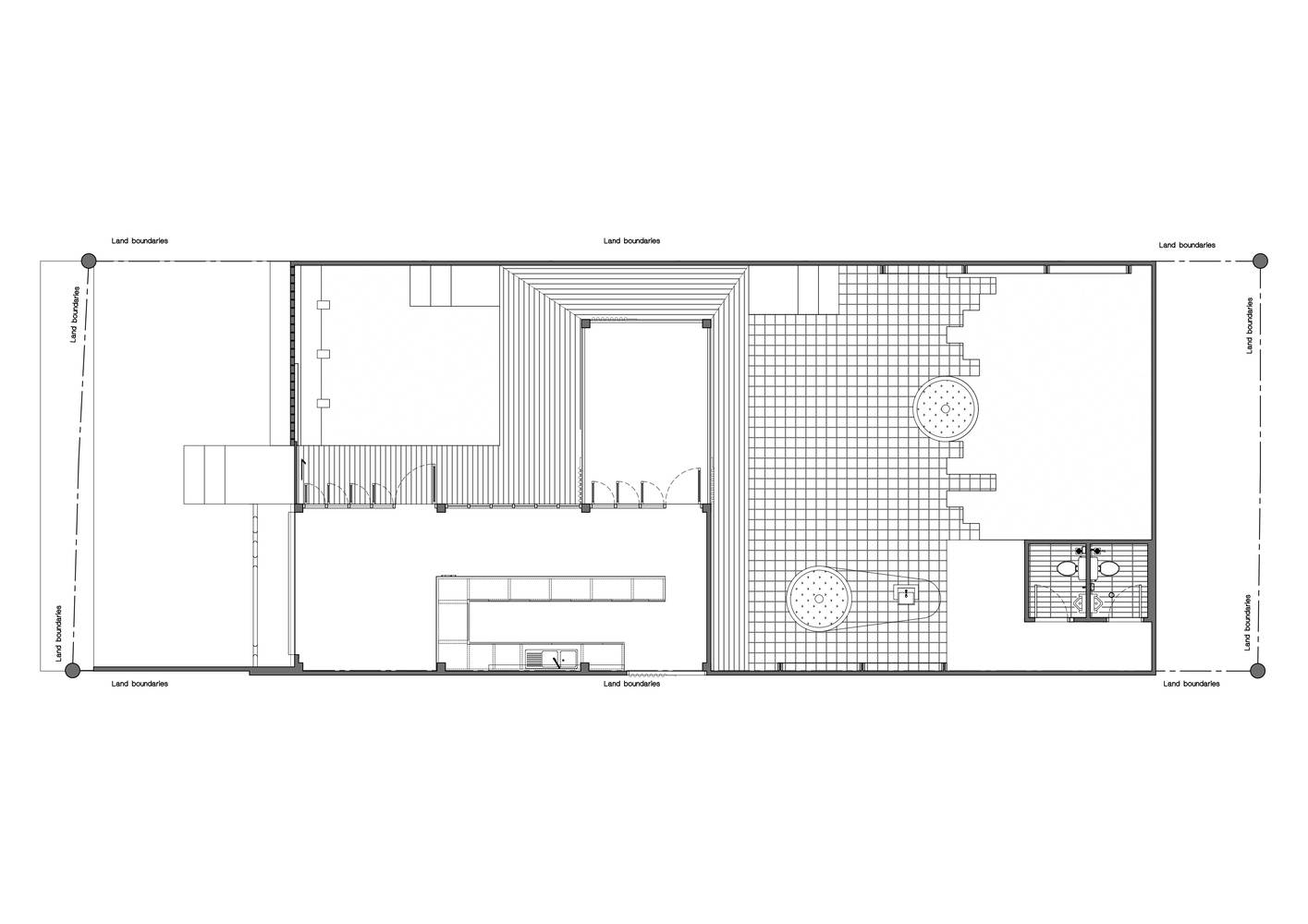
Floor Plan

© Thanarit jirarapeephan
项目现场是一块宽14米、深30米的矩形地块。主要结构以线性布局组织,以优化空间效率。该场地两侧是两层楼的店屋,为项目区创造了自然遮阳。建筑师将前边界设置在距离街道5米的地方,以建立一个前院,其中有一个用于自行车停放的砾石花园,为经常穿越该地区的自行车爱好者提供服务。这个前院也增强了立面的视觉深度。
The project site is a rectangular plot measuring 14 meters in width and 30 meters in depth. The primary structure is organized in a linear layout to optimize spatial efficiency. The site is flanked by two-story shophouses on both sides, creating natural shading for the project area. The architects set the front boundary 5 meters back from the street to establish a forecourt featuring a gravel garden for bicycle parking, catering to cyclists frequently traversing the area. This forecourt also enhances the visual depth of the façade.

© Thanarit jirarapeephan

© Thanarit jirarapeephan
经过对现场的调查,发现该物业后方存在一条自然风廊。为了利用这一点,该设计通过在咖啡馆立面上使用通风块来实现交叉通风。这些块有助于空气流通,同时充当隐私屏障,巧妙地控制室内花园的视野。入口路径位于中心,通往一条长长的走廊,引导游客进入主咖啡馆空间。错层设计增加了动态的空间互动,连接了前后花园。延伸的屋顶悬挑提供了防雨和防晒的保护,确保了舒适的半户外体验。
Upon surveying the site, it was discovered that a natural wind corridor exists at the rear of the property. To leverage this, the design incorporates cross ventilation through the use of ventilation blocks on the café's façade. These blocks facilitate airflow while serving as a privacy screen, subtly controlling views into the interior garden. The entrance path is centrally positioned, leading to a long corridor that guides visitors into the main café space. Split-level design adds dynamic spatial interplay, connecting the front and rear gardens. The extended roof overhang provides protection from rain and sunlight, ensuring a comfortable semi-outdoor experience.

© Thanarit jirarapeephan

© Thanarit jirarapeephan
咖啡馆大楼地理位置优越,毗邻现有的店屋,实现无缝连接。其核心是,一个半室外的过渡空间连接了前后花园,促进了视觉和空间的连续性。前立面采用全高玻璃,将自然光引入室内,同时提供迷人的街道景观。这种设计选择平衡了宁静的室内氛围和充满活力的户外活动。主要材料包括裸露的混凝土和木材,因其可施工性和与当地环境的一致性而选择。从主人的收藏中回收的木材被重新用于柜台、货架和屋顶结构。纹理深灰色的石膏墙,用PVC板制成,为原本极简主义的材料调色板增添了微妙而引人注目的视觉趣味。
The café building is strategically positioned adjacent to the existing shophouse for seamless connectivity. At its core, a semi-outdoor transition space links the front and rear gardens, fostering visual and spatial continuity. The front façade features full-height glazing, inviting natural light into the interior while offering an engaging view of the street. This design choice balances the serene indoor ambiance with dynamic outdoor activity. Primary materials include exposed concrete and wood, chosen for their constructability and alignment with the local context. Reclaimed wood from the owner's collection is repurposed for the counter bar, shelves, and roof structure. The textured dark gray plaster walls, crafted using PVC sheets, add subtle yet striking visual interest to the otherwise minimalist material palette.

© Thanarit jirarapeephan
面包糕点;饮料体现了极简主义建筑和亲生物设计原则的和谐融合。它强调室外和室内空间之间的无缝过渡,回应当地的生活方式,同时在温暖宁静的环境中促进家庭互动。
Bun Pastry & Beverages exemplifies a harmonious blend of minimalist architecture and biophilic design principles. It emphasizes seamless transitions between outdoor and indoor spaces, responding to the local lifestyle while fostering family interactions within a warm and tranquil setting.

© Thanarit jirarapeephan