Grösslingova/基洛/Honc公寓
Apartment Grösslingova / Kilo / Honc
光线与空间:这个项目最引人注目的特点是其对光线的巧妙利用。设计师通过将两个窗户的房间设计成一个整体,以最大限度地利用自然光,避免了黑暗走廊的产生。这种设计体现了对空间和光的深度理解,以及对如何通过建筑来优化居住体验的深刻思考。它不仅仅是一个公寓,更是一个关于空间、光线、洞察力和它们共同创造的时刻。项目通过将光线引入内部,创造出明亮通透的空间,并通过透明的玻璃砖墙来分隔空间,既保留了隐私,又保持了开放性。这种设计理念充分利用了光线,营造了一个开放、明亮、通透的居住空间,彰显了对空间和光的独到见解。
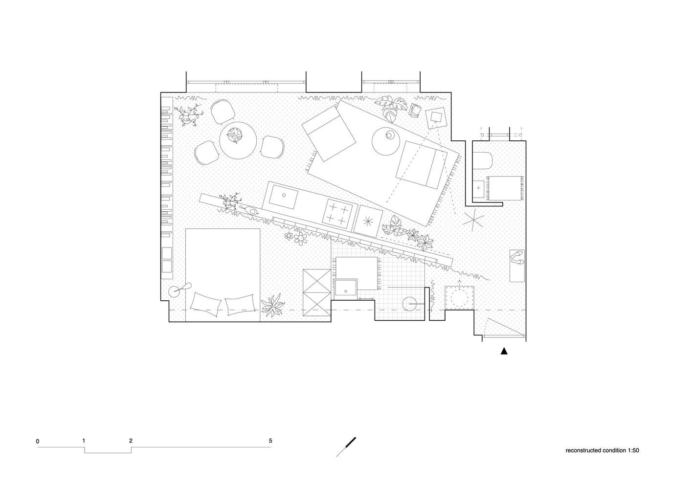
空间布局与功能:项目在有限的空间内巧妙地布局,有效地利用了每一寸空间。开放式设计使房间能够容纳多种功能,包括厨房、餐厅和起居室。浴室的布局也非常巧妙,利用了建筑的结构和墙壁,最大限度地提高了空间的利用率。更值得称赞的是,卧室的设计。它不仅仅是一个独立的房间,而且是连接两个世界的桥梁。它在不影响居住者隐私的前提下,保持了空间的开放性和通透性,展现了设计师对空间和功能之间的完美平衡的掌控能力。这种设计充分考虑了居住者的需求和体验,在有限的空间内创造了最大的实用性和舒适性。
创新与细节:项目最核心的亮点在于其对材料的运用和细节的精雕细琢。例如,玻璃砖墙和混凝土底座的巧妙组合,在视觉上增加了空间的层次感,也在功能上实现了空间的分隔。设计师在选择材料时,既考虑了美观性,也考虑了实用性和耐用性。从图片中可以看出,项目的每一个细节都经过了精心设计,从灯光到家具,都体现了对品质的追求。这种对细节的关注,使得项目充满了艺术气息,同时也增加了项目的实用性。这种设计理念和对细节的执着追求,使得这个项目不仅仅是一个建筑作品,更是一个艺术品,体现了设计师的专业素养和独特的艺术品位。

© Matej Hakár

© Matej Hakár
建筑师提供的文字描述我们喜欢那些能教会我们和客户一些最终形式的东西的作业。就像在这种情况下一样。令人惊叹的讨论和反馈,生动的对话,以及更进一步尝试未经尝试的意愿。长话短说,主要是关于空间、它的光线、它的洞察力以及它作为一个整体创造的时刻。其他的都是微妙的背景,至今仍不为人知。
Text description provided by the architects. We love assignments that teach us and our clients something in their final form. As in this case. Amazing discussion and feedback, lively conversations, and a willingness to take it a step further and try the untried. Talking at length, just and mostly about the space, its light, its insights, and the moments it creates as a whole. The others are just as subtle backgrounds that remain untold.

© Matej Hakár

Plan - New Design

© Matej Hakár
我们说过光很重要。一个新的日间小公寓,将有两个漂亮的大窗户。在最初的布局中,每个窗户都属于一个房间,形成了一个黑暗的走廊。一个明亮的大空间,只由房子的立面和后面的透明玻璃砖墙界定,后面是公寓舒适运行所需的一切——带淋浴、洗衣机、水槽、橱柜和储物空间的浴室。
We said that light is important. A new, day space of a small apartment that will have two beautiful and large windows. In the original layout, each window belonged to one room, creating a dark hallway. One big bright space defined only by the facade of the house and a transparent glass-brick wall at the back, behind which is everything necessary to be able to function comfortably in the apartment - bathroom with shower, washing machine, sink, cupboards and storage spaces.

© Matej Hakár

© Matej Hakár
卧室是唯一一个位于两个世界边界的地方。在公寓尽头的位置,它不再是玻璃砖墙,而是以墙壁的形式继续有一个混凝土底座,用于座位和窗帘,微妙地暗示我们在公寓的一个更亲密的地方。然而,与此同时,我们可以看到外面,厨房和餐厅,正在放映一部电影。如果我们愿意。
The bedroom is the only place that is on the border of both worlds. In its position at the end of the apartment, it is no longer fronted by a glass-brick wall but continues with a concrete base in the form of a wall for seating and a curtain that subtly suggests that we are in a more intimate part of the apartment. At the same time, however, we can see outside, to the kitchen and dining room, projecting a film. If we want.

© Matej Hakár