潮润美发沙龙/HAhi工作室
Chaoreum Hair Salon / HAhi Studio
空间创新与个性化:Chaoreum Hair Salon的设计突破了传统美发沙龙的模式,强调个性化服务与感官体验。通过融入独特的地理位置——五金店与时尚商业区并存的环境,空间设计巧妙地结合了当地特色与品牌身份。这种创新不仅体现在空间布局上,还通过使用金属、复古地板和时尚瓷砖等材料,营造出一种既现代又不失温馨的氛围,展现了品牌对细节的关注和对顾客体验的重视。
材料与视觉平衡:该项目在材料选择上展现了极高的设计智慧。金属、黑色玻璃和镜子等现代材料的运用,为整个空间赋予了时尚感和现代感。然而,设计师并没有让这些材料显得过于冷硬,而是通过灰色和象牙色的色调搭配,巧妙地平衡了空间的温度,使其既不过于冰冷也不过于温暖。这种视觉上的平衡,让空间在满足功能性的同时,也提升了顾客的舒适感。
功能与美学的融合:Chaoreum Hair Salon的功能布局与美学设计完美结合。治疗区的设计通过将系统通道和发际线面板组合成大支柱,不仅最大化了空间的开放性,还与整体的时尚氛围相得益彰。同时,等候区和中央治疗区的布局以复古瓷砖地板为基础,搭配精心设计的家具,体现了品牌在全波洞的年轻化定位。这种设计不仅满足了功能需求,还为顾客提供了一个愉悦的视觉和感官体验。

© Taehun Gwon

© Taehun Gwon
Chaoreum Hair的个人感性主题反映了美容院的一种新方法,超越了传统模式,提供个性化服务,通过提高自我满意度和自信心来刺激顾客的感官。为了摆脱传统的沙龙设计,Chaoreum Hair融入了其独特的地理位置,五金店和时尚商业区并存。为了表达这种新的形式和运动,空间的设计使用了其独特的形状、原材料和当地环境,反映了品牌的身份和空间。
The theme of personal sensibility at Chaoreum Hair reflects a new approach to beauty salons, moving beyond traditional models to offer individualized services that stimulate the customers' senses by boosting self-satisfaction and confidence. Seeking to break away from conventional salon designs, Chaoreum Hair incorporated the unique characteristics of its location, where a blend of hardware shops and trendy commercial areas coexist. To express this new form and movement, the space was designed using its distinct shapes, raw materials, and local setting, reflecting the brand's identity and space.

© Taehun Gwon
整体氛围使用了各种材料,如金属、复古风格的地板和墙壁以及时尚的瓷砖。然而,空间通过灰色和象牙色的组合来平衡,旨在达到既不太冷也不太热的和谐。家具和固定装置的设计突出了细长的垂直和水平线条,主要材料——金属、黑色玻璃和镜子——创造了一个不会显得寒冷或笨重的空间,使空间感觉更宽敞、更高效。
The overall atmosphere uses various materials, such as metal, vintage-style floors and walls, and trendy tiles. However, the space is balanced with a combination of gray and ivory tones, aiming for a harmony that is neither too cold nor too warm. The design of furniture and fixtures highlights the thin vertical and horizontal lines, and the main materials—metal, black glass, and mirrors—create a space that doesn't appear cold or bulky, making the space feel more expansive and efficient.

© Taehun Gwon

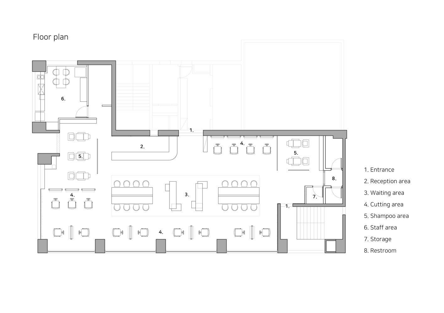
Floor Plan

© Taehun Gwon
治疗区的设计将两个系统通道和发际线面板组合成一个大支柱,与全坡洞的时尚氛围相一致,同时也最大限度地提高了空间的开放性。垂直网格结构增加了视觉细节。天花板及其外露的混凝土和网格图案的照明栏杆与家具和空间的垂直和水平线对齐,与整体设计相得益彰。
The treatment area is designed by combining two system channels and hairline panels into a large pillar which aligns with the trendy vibe of Jeonpo-dong but also maximizes openness within the space. The vertical grid structure adds visual detail. The ceiling, with its exposed concrete and grid-patterned lighting rails, compliments the overall design by aligning with the vertical and horizontal lines of the furniture and space.

© Taehun Gwon
Chaoreum Hair根据不同的空间设计了不同的体验,分为两个主要部分:治疗区和等候区。窗户附近的治疗区域已经用大窗户打开,取代了以前阻碍视线的笨重框架。通过融入自然,该空间将原材料与自然属性融为一体,创造出更丰富的感官体验。
Designed for a different experience in accordance with the different spaces, Chaoreum Hair is divided into two main sections: the treatment area and the waiting area. The treatment area near the window has been opened up with large windows, replacing the previously bulky frames that obstructed the view. By incorporating nature, the space blends raw materials with the properties of nature, creating a richer sensory experience.

© Taehun Gwon
中央治疗区和等候区是顾客进入后遇到的第一个空间。布局以复古瓷砖地板为基础,家具(如金属通道和发际线)采用黑色玻璃等各种材料精心设计。这个设计体现了该品牌在全波洞的氛围,全波洞是MZ一代的热点。
The central treatment and waiting areas are the first spaces customers encounter upon entering. The layout features vintage tile floors as a base, with the furniture - like metal channels and hairlines - designed lightly using various materials like black glass. This design embodies the brand's vibe in Jeonpo-dong, a hotspot for the MZ generation.

© Taehun Gwon