Ateliêde Cerâmica画廊/MOBIO建筑
Ateliê de Cerâmica Gallery / MOBIO Arquitetura
历史与现代的融合:该项目成功地将一座20世纪50年代的历史建筑重新融入当代城市生活。通过精心修复原始设计元素,如peroba do campo硬木、水磨石地板和波浪形雨棚,建筑保留了其巴西现代主义风格的精髓。同时,引入轻质金属围栏和模块化家具等现代设计,不仅提升了空间的功能性,还为建筑注入了新的活力,使其成为兼具商业与文化价值的公共空间。
空间与自然的对话:内部庭院的设计是该项目的一大亮点。通过郁郁葱葱的景观和金属凉棚,庭院与画廊及咖啡馆实现了视觉与功能上的融合。这种设计不仅优化了通风和流通,还通过攀爬植物保护建筑免受强烈日照。此外,变形虫形状的游泳池被巧妙地改造为多功能活动空间,进一步强化了人与自然的互动,展现了设计的灵活性与创新性。
文化与功能的结合:O Ateliê de Cerâmica不仅是一个展示陶瓷艺术的画廊,更是一个文化活动的平台。通过举办如“与作者的对话”等活动,它将历史遗产与当代设计、艺术展览相结合,为访客提供沉浸式体验。这种融合传统与现代、艺术与生活的理念,不仅赋予了建筑新的生命力,也为城市的文化发展注入了新的动力,成为贝洛奥里藏特的文化新地标。

© Reverbo

© Reverbo
“O Ateliêde Cerâmica”是一个画廊,位于贝洛奥里藏特市中心,靠近自由广场,位于一栋20世纪50年代的房子里。修复和室内设计项目由建筑师Gabriel Castro领导的MOBIO Arquitetura公司进行,陶瓷艺术家Flávia Soares、Daniel Romeiro和Luiza Soares负责景观美化。
“O Ateliê de Cerâmica” is a gallery located in the heart of Belo Horizonte, near Praça da Liberdade, in a 1950s house. The restoration and interior design project was carried out by the firm MOBIO Arquitetura, led by architect Gabriel Castro, with contributions from ceramic artists Flávia Soares, Daniel Romeiro, and Luiza Soares, who were responsible for the landscaping.

© Reverbo
该项目旨在通过将建筑重新融入城市并更新其空间以供当代使用来重新体现历史遗产,突出了该集体的原创作品,其中包括实用陶瓷制品、原创家具和艺术项目。该地点还设有一家咖啡馆和MOBIO Arquitetura的总部。
Aiming to re-signify the historical heritage by reintegrating the building into the city and updating its spaces for contemporary use, the project highlights the collective’s original work, which includes utilitarian ceramic objects, original furniture pieces, and artistic projects. The site also houses a café and MOBIO Arquitetura’s headquarters.

© Reverbo
该建筑于1950年由米纳斯吉拉斯州的三位建筑师Walter Machado、Jeferson Lodi和Suzy de Melo设计,作为Gilda Falco和Milton Mourão的住所。
The building is listed and was designed in 1950 by the trio of architects from Minas Gerais—Walter Machado, Jeferson Lodi, and Suzy de Melo—as the residence of Gilda Falci and Milton Mourão.

© Reverbo
其原始设计呼应了巴西现代主义第一阶段的词汇,并通过标志着立面的波浪形雨棚和主厅拱形板天花板的曲线探索了钢筋混凝土的塑性潜力。
Its original design echoes the vocabulary of the first phase of Brazilian Modernism and explores the plastic potential of reinforced concrete through the curves of the wavy canopy that marks the facade and the vaulted slab ceiling of the main hall.

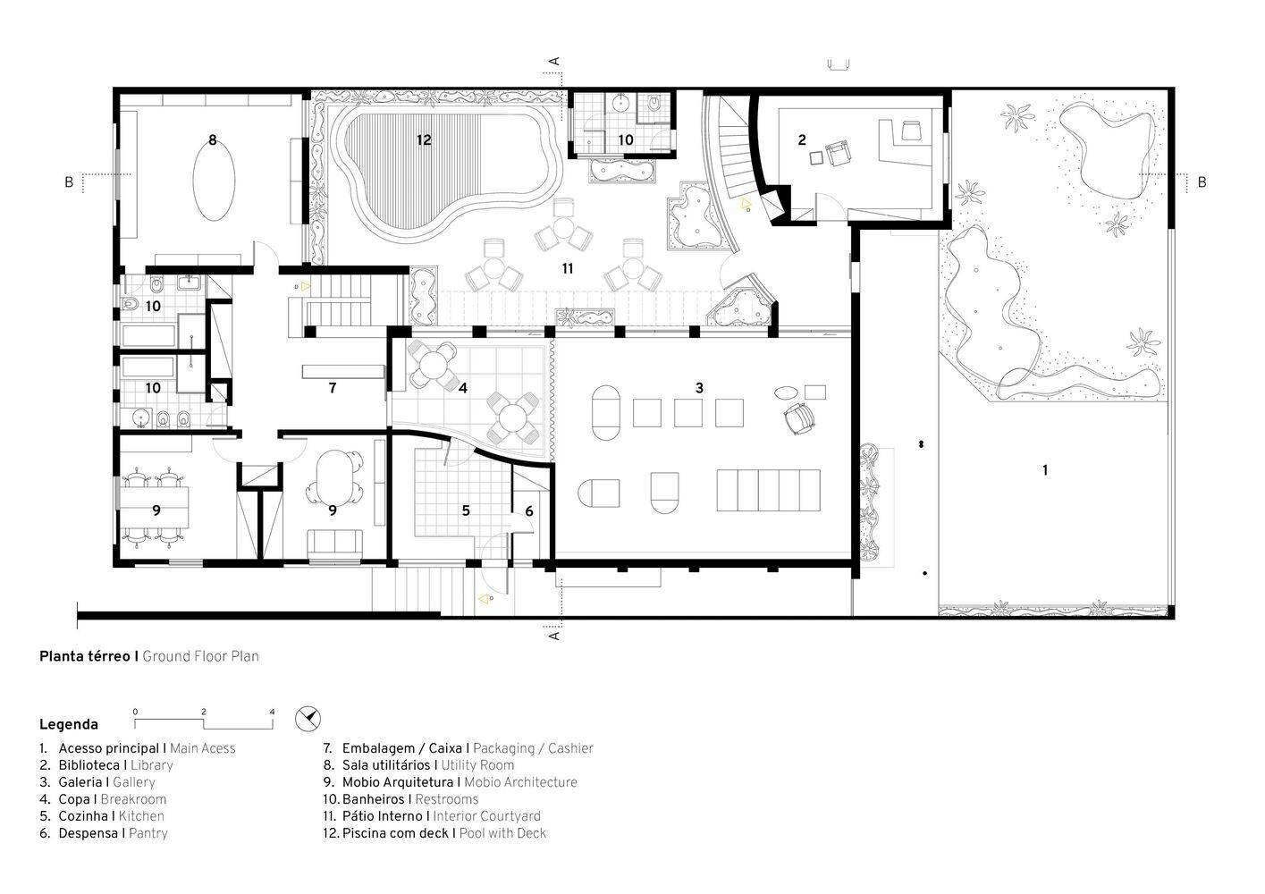
Plan - Ground floor
该建筑的修复包括恢复peroba do campo硬木、水磨石和玻璃砖地板,修复铁框架,恢复原始木制品,以及恢复和补充原始照明设备。贝洛奥里藏特遗产局还批准了几项干预措施,包括拆除曾经隐藏房屋的墙壁,代之以轻质金属围栏,该围栏允许宽敞的开口,并确保关闭时的视觉渗透性。
The building’s restoration involved recovering the peroba-do-campo hardwood, terrazzo, and glass-tile flooring, rehabilitating the iron frames, restoring the original woodwork, and restoring and complementing the original lighting fixtures. Several interventions were also approved by the Belo Horizonte Heritage Directorate, including the demolition of the wall that once concealed the house, replaced by a lightweight metal fence that allows for a generous opening and ensures visual permeability when closed.

© Reverbo
内部庭院是一个具有郁郁葱葱景观的战略空间,通过其许多窗户与画廊和咖啡馆融为一体,实现了流通和通风。安装了一个金属凉棚来支撑攀爬植物,这些植物形成了一个格子,以保护西北立面。
The internal courtyard, a strategic space with lush landscaping, integrates with the gallery and café through its many window openings, allowing for circulation and ventilation. A metal pergola was installed to support climbing plants that form a trellis for protecting the northwestern facade.

© Reverbo
在变形虫形状的游泳池中,最深的部分通过在原始瓷砖上安装木甲板而变得平坦,将水池变成了用于O Ateliêde Cerâmica举办的小型活动的非正式座位。
In the amoeboid-shaped pool, the deepest level was evened out with the addition of a wooden deck installed over the original tiles, transforming the basin into informal seating used for small events hosted by O Ateliê de Cerâmica.

© Reverbo
对于画廊来说,中性模块化家具的设计具有战略意义,可以作为多功能、互补的作品。例如,一个矩形模块可以容纳三种展览高度:一个中型平台、一张桌子或一个图腾。同时,圆形模块扩展了每次设置时出现的组合可能性。
For the Gallery, neutral modular furniture was designed with strategic dimensions to serve as multi-purpose, complementary pieces. A rectangular module, for example, can accommodate three exhibition heights: a medium platform, a table, or a totem. Meanwhile, the round modules expand the possibilities of composition that arise with each setup.

© Reverbo
此外,还有一个由铝和玻璃制成的模块化货架系统,配有内置照明,以及珀西瓦尔·拉费尔、塞尔吉奥·罗德里格斯和豪尔赫·贾布尔·莫阿等巴西设计师的家具系列。这些作品与展览表面相得益彰,塑造了参观者所享受的空间。
Additionally, there is a modular shelving system made of aluminum and glass with built-in lighting, and a collection of Brazilian designer furniture by figures such as Percival Lafer, Sergio Rodrigues and Jorge Jabour Mauá. These pieces complement the exhibition surfaces and shape the spaces enjoyed by visitors.

© Reverbo
新的景观包括热带物种,如helconias、monsters、philodendrons和紫薯,根据房屋每个区域的阳光条件进行战略性种植,以创造出既防晒又装饰的绿色地块。
The new landscaping includes tropical species such as heliconias, monsteras, philodendrons, and purple yam, strategically planted according to the sunlight conditions in each area of the house to create green masses both for sun protection and ornamentation.

© Reverbo
承接一座上市建筑,修复它,并在商业上占领它,为空间注入新的意义。这一举措展示了重新利用历史私有财产的潜力。通过一次既现代化又增强的尊重性复兴,该建筑重新融入了城市,并可供公众欣赏。
Taking on a listed building, restoring it, and occupying it commercially updates and imbues new meaning to the spaces. This initiative demonstrates the potential for repurposing historically private properties. Through a respectful revitalization that both modernizes and enhances, the building is reintegrated into the city and made available for public enjoyment.

Section BB
在这种新的情况下,O Ateliêde Cerâmica还通过宣传活动将自己定位为贝洛奥里藏特的文化空间,如与Francesco Perrotta就Lina Bo Bardi的传记进行的“与作者的对话”。通过将历史遗产与专注于设计和陶瓷的展览和文化活动相结合,该集体邀请游客沉浸在传统工艺和当代艺术的主题中。
In this new scenario, O Ateliê de Cerâmica also positions itself as a cultural space in Belo Horizonte by promoting events such as “Conversation with the Author” with Francesco Perrotta on Lina Bo Bardi’s biography. By merging historical heritage with exhibitions and cultural events focused on design and ceramics, the collective invites visitors to immerse themselves in the themes of traditional craft and contemporary art.
© Reverbo