漫步银座六店/Jo Nagasaka+Schemata建筑师事务所
andwander GINZA SIX Store / Jo Nagasaka + Schemata Architects
创新设计与品牌延续:该项目展现了出色的设计理念。悬挂的网格系统创造可移动布局,满足了灵活安排店内设施的需求。在不同门店采用一致系统又能根据环境定制,既保证了品牌的统一性又展现了独特性。新店在 GINZA SIX 大楼,使用不锈钢地板消除街头感,迈向更高端,同时红雪松块与不锈钢形成对比,增添非凡品质。木纤维水泥板营造混凝土外观,延续设计精神。
功能性与展示性结合:墙上的可移动系统能有效展示受欢迎的袋子及各种小物品,实现了功能性与展示性的完美结合。这种设计考虑到了不同形状物品的陈列需求,使顾客能更直观地看到商品。整体设计既为品牌打造了坚实的背景,又为顾客提供了独特的购物体验,是建筑设计与商业需求的成功融合。

© Nacasa&Partners Inc.

© Nacasa&Partners Inc.
建筑师提供的文字描述和wander提供各种颜色的中性款商品。每件物品都有自己独特的切割和设计,只有当你把它拿在手里时才会注意到,让你每次都能发现新的东西。天花板上悬挂的网格系统用于创建可移动的布局,允许灵活安排照明、衣架、海报、试衣间等。
Text description provided by the architects. and wander features a wide range of unisex items available in various colors. Each item has its own unique cutting and design, which you only notice when you hold it in your hands, giving you the pleasure of discovering something new each time. A grid system suspended from the ceiling was used to create a moveable layout, allowing flexible arrangements of lighting, hangers, posters, fitting rooms, etc.

© Nacasa&Partners Inc.

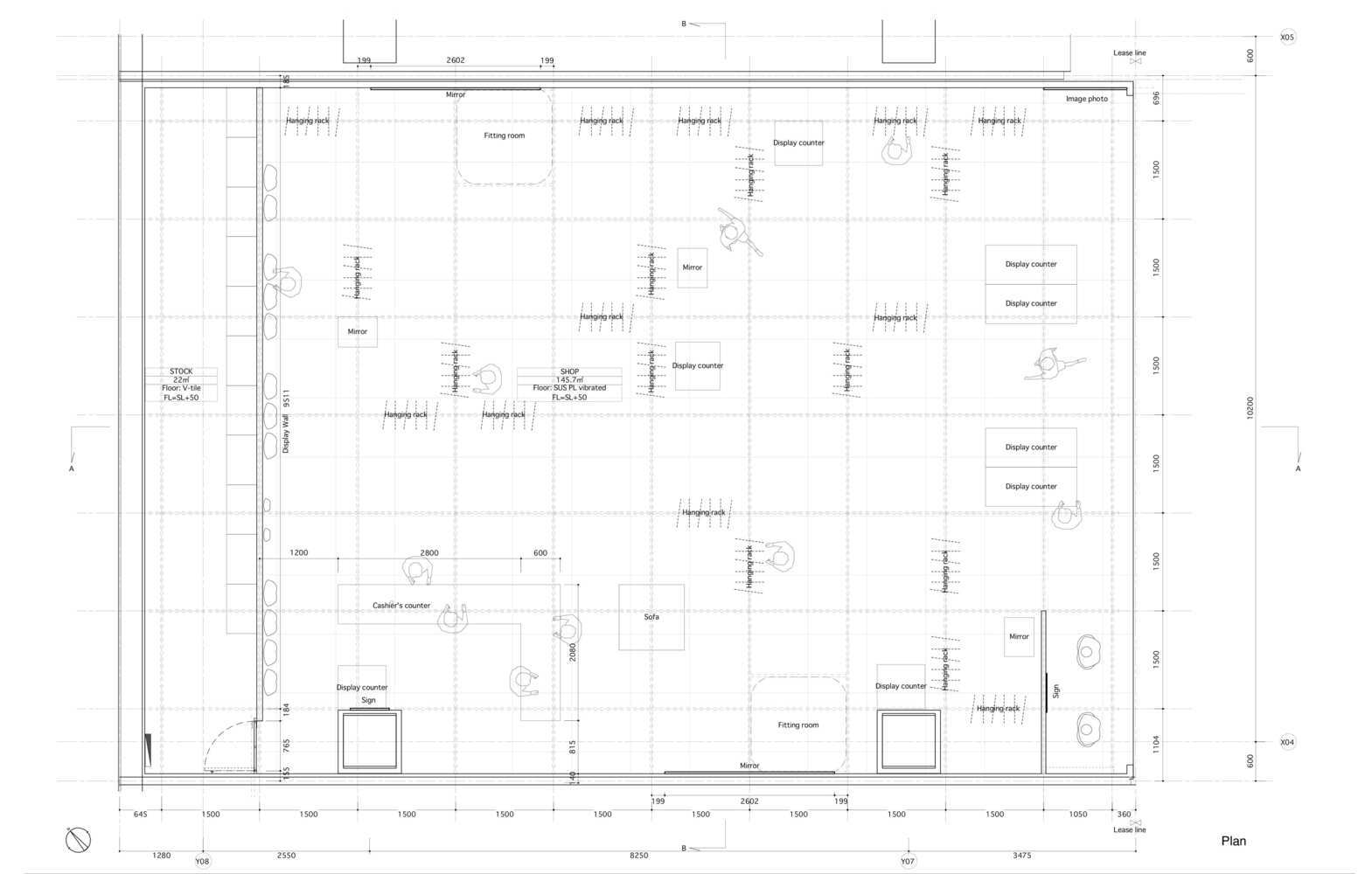
Plan

© Nacasa&Partners Inc.
我们打算为该品牌的所有门店使用一致的系统,同时根据个人环境和目标客户进行定制,让客户享受不同的设计。
We intend to use a consistent system for all of the brand's stores while customizing it to suit individual environments and target customers, allowing customers to enjoy different designs.

© Nacasa&Partners Inc.

Sections

© Nacasa&Partners Inc.
GINZA SIX大楼是新店的所在地,拥有高端品牌,吸引了许多海外游客,我们觉得有必要为背景创造一种类似的坚实感。地板主要是在我们之前设计的和漫游商店的砂浆中完成的。这一次,我们决定首次在地板上使用不锈钢,消除了街头的感觉,成功地将品牌推向了下一个阶段。该品牌以自然为主题,始终使用木材作为内饰。这一次,我们放置了红雪松块作为展示装置,以对抗不锈钢的强烈存在。木材的裂缝、凹痕和气味增添了标准材料所缺乏的非凡品质。我们希望延续之前设计的设计精神,将混凝土墙和天花板暴露在外。然而,由于我们无法通过拆除这座建筑的饰面来暴露混凝土,我们使用木纤维水泥板来创造混凝土般的外观。
The GINZA SIX building, the new store's location, houses high-end brands and attracts many visitors from overseas, and we felt the need to create a similar solid feel for the background. The floors were mainly finished in the mortar at the and wander stores we have designed previously. This time, we decided to use stainless steel on the floor for the first time, eliminating the street feel and successfully taking the brand to the next stage. The brand, themed around nature, always uses wood for the interior. This time, we placed blocks of red cedar as display fixtures to counter the strong presence of stainless steel. The cracks, dents, and scent of the wood added a remarkable quality that standard materials lack. We wanted to continue the design spirit of the previous designs, which exposed the concrete walls and ceiling. However, since we could not reveal concrete by removing finishes on this building, we used wood fiber cement boards to create a concrete-like appearance.

© Nacasa&Partners Inc.

© Nacasa&Partners Inc.
此外,在墙上引入了一个由平板和钩子组成的可移动系统,以有效地展示该店受欢迎的袋子,这使得袋子和其他各种形状的小物品可以灵活排列。
In addition, a movable system consisting of flat plates and hooks was introduced on the walls to effectively showcase the store's popular bags, which allows for flexible arrangements of bags and other small items in various shapes.

© Nacasa&Partners Inc.