Elsternwick顶层公寓/办公室Alex Nicholls
Elsternwick Penthouse / Office Alex Nicholls
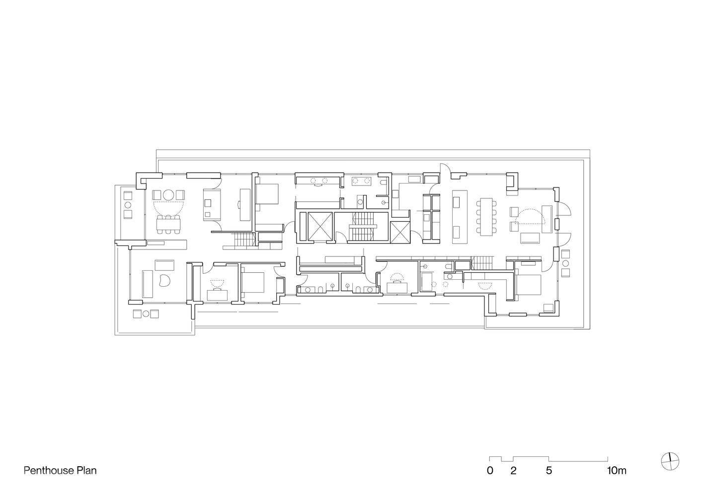
独特的跨代住宅设计:Elsternwick 顶层公寓将两套顶层公寓及周边空间巧妙结合,打造出独特的跨代家庭住宅。“图书馆脊柱”贯穿公寓,既收纳书籍等又定义流通空间。“魔术盒”厨房功能性强且以抽象色彩与自然材料形成对比。半圆形天窗则反映客户对当地装饰艺术建筑的热爱,同时为公寓增添几何美感。整体设计既满足社交需求,又提供不同代际的隐私空间,还考虑了未来可分割性。
出色的地下水疗与屋顶凉亭:楼下水疗中心利用地下停车场打造私人健康空间,虽无自然光,但通过大气间接照明、暖色与天然材料营造出如芬兰桑拿或日本温泉般的恢复体验。屋顶上的两个“sukkah”凉亭在住棚节提供半封闭活动区,平时也可作户外生活空间,其可操作性强,周边曲线形花盆提供隐私感与避风感,同时不影响欣赏外面景色。

© Rory Gardiner

© Rory Gardiner
建筑师提供的文字描述该项目涉及将两套顶层公寓、各自的停车场、屋顶和外部空间结合起来,打造一个独特的跨代家庭住宅,拥有丰富的灵活生活和工作空间、一个地下康复水疗中心和两个屋顶sukkah凉亭。
Text description provided by the architects. The project involved combining two penthouse apartments, their respective car parking, rooftops, and exterior spaces to create a singular inter-generational family home with an abundance of flexible living and working spaces, a basement rehabilitation spa, and two rooftop sukkah pavilions.

© Rory Gardiner

© Rory Gardiner
一系列关键概念中的第一个是“图书馆脊柱”,它贯穿公寓的整个长度,容纳着家庭收藏的书籍、艺术品和文物。图书馆的书脊也被用来庆祝入口大厅,并在细木工制品嵌入楼梯时定义了水平流通和垂直流通。
The first in a series of key concepts is the 'library spine' running the entire length of the apartment housing the family's collection of books, art, and artifacts. The library spine is also used to celebrate the entrance lobby and define both the horizontal circulation and the vertical circulation as the joinery is embedded into the staircase.

© Rory Gardiner

Plan - Penthouse

© Rory Gardiner
第二个关键概念是一系列功能强大但体积最小的“魔术盒”厨房,可以打开、关闭和划分公寓的不同区域。它们由抽象的颜色定义,与温暖自然的材料调色板形成鲜明对比。在浴室石雕、壁炉和定制家具中重复使用彩色物体。
The second key concept is a series of 'magic box' kitchens that are highly functional yet minimal volumes, that open and close and delineate the different zones of the apartment. They are defined by their abstract colors that sit in contrast to an otherwise warm and natural material palette. The use of colored objects is repeated in the bathroom stonework, fireplaces, and bespoke furniture pieces.

© Rory Gardiner

© Rory Gardiner
第三个干预措施是一系列半圆形天窗,它们庆祝了两个主要的生活空间,并反映了客户对该社区当地装饰艺术建筑的热情。这种纯粹的几何形状进一步推动了彩色体积所赋予的抽象构图。该主题也在整个公寓中得到了引用,在需要自然光的地方,有较小的半圆形和圆形的眼睛。
The third intervention is a series of semi-circular oculus skylights, which celebrate the two main living spaces and reference the client's passion for the local Art Deco architecture of the neighborhood. This pure geometry furthers the abstract composition given by the colored volumes. The theme is also referenced throughout the apartment with smaller semi-circular and circular oculus where natural light was needed.

© Rory Gardiner

Sketch - Level 02

© Rory Gardiner
公寓的东面是主要的活跃社交区,包括主厨房、客厅和餐厅,而公寓的西面则不那么正式,有利于放松身心,有一个被称为“晚间花园”的室内外休息室。这套公寓也按照代际界限进行了松散的定义,西端为家庭中的年轻成员和老年人提供了隐私。最后,这套公寓也经过了未来的改造,如果需要,可以在以后的轨道上一分为二。
To the east of the apartment are the main active social areas including the main kitchen living and dining, whilst the west ofthe apartment is less formal and conducive to relaxing with an interior/exterior lounge coined the 'Evening Garden'. The apartment is also loosely defined by generational lines with the Western end providing privacy between the younger members of the family and the more senior. Lastly, the apartment is also future-proofed to allow for splitting in two later down the track if required.

© Rory Gardiner

© Rory Gardiner
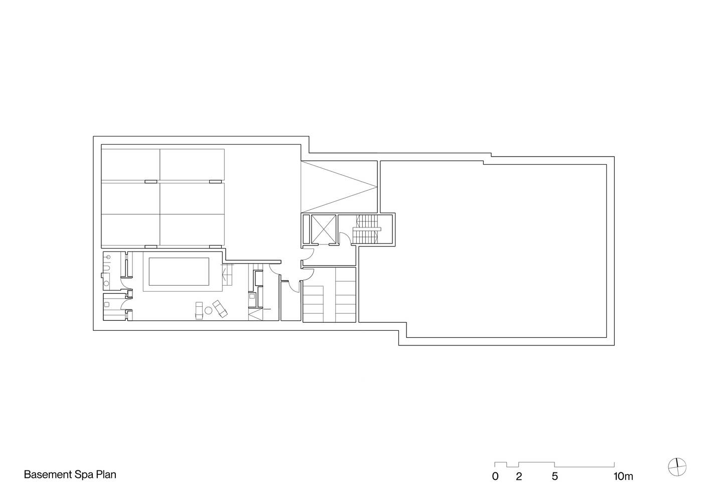
楼下的水疗中心利用了一个地下停车场,创造了一个私人健康空间,包括一个健身池、桑拿浴室、小厨房、更衣室和一个灵活的康复区。虽然这是一个没有自然光的地下空间,但精心使用大气间接照明、暖色和天然材料,提供了一种整体的恢复体验,就像芬兰桑拿或日本温泉一样。
Downstairs the spa utilizes what was a basement car park, to create a private wellness space including a fitness pool, sauna, kitchenette, change rooms, and a flexible rehabilitation area. Although a subterranean space with no natural light, the careful use of atmospheric indirect lighting, warm colors, and natural materials provides a holistic restorative experience in likening to a Finnish sauna or Japanese Onsen.

© Rory Gardiner

Plan - Basement
在屋顶上,两个“sukkah”凉亭在住棚节期间提供半封闭的烹饪、用餐和聚会区,并兼作全年使用的一般户外生活空间。最小的结构具有很高的可操作性,有遮阳墙和竹棚。展馆坐落在一个广阔的室外区域内,四周和树叶上排列着曲线形的花盆,提供了一种隐私感和避风的感觉,同时也可以欣赏到外面的景色。
On the rooftop, two 'sukkah' pavilions provide semi-enclosed cooking, dinning, and gathering areas during the festival of Sukkot, and double up as general outdoor living spaces for use year-round. The minimal structures are highly operable with shade walls and bamboo canopies. The pavilions are set within an expansive outdoor area with curvilinear planters lining the perimeter and foliage that provides a sense of privacy and respite from the wind whilst also allowing views out.

© Rory Gardiner