特里亚农公寓/库斯特·布里佐拉·阿尔奎托斯
Trianon Apartment / Küster Brizola Arquitetos
独特设计与功能融合:特里亚农公寓的翻修项目展现出了极高的设计水准。公共空间朝南的设计巧妙地捕捉了东方光线,让整个空间明亮通透。客厅与餐厅、电视室的融合,以及办公室滑动木门的惊喜元素,为公寓增添了独特的魅力。壁画的运用不仅连接了餐厅和厨房,还为入口大厅增添了个性,使平面图更加精致统一。大理石碎片地板的使用则在空间中建立了联系和流动性。
烹饪空间与家具选择:项目对烹饪空间的特别关注令人赞赏。厨房设计如小市场般,为家庭烹饪爱好提供了不同的体验,同时配备现代厨房设备。家具选择上,融合现代主义和现代主义家具,使用中性色和天然覆盖物,为住宅营造出轻盈而永恒的氛围。整体设计既满足了功能性需求,又展现了美学价值,为居住者打造了一个舒适且富有个性的生活空间。

© Eduardo Macarios

© Eduardo Macarios
建筑师提供的文字描述特里亚农公寓位于库里提巴的巴特尔社区,面积200平方米。翻修项目包括一个朝南立面的公共空间,这使其成为该项目捕捉东方光线的要求之一。岛上的沙发形成了客厅和电视室,它们也与餐厅融为一体,让光线穿过所有这些空间。
Text description provided by the architects. The Trianon apartment is located in the Batel neighborhood of Curitiba and has 200m2. The renovation project includes a common space with a south-facing façade, making it one of the project's demands to capture the light coming from the east. A sofa in an island develops the living room and TV room, which also integrate with the dining room, allowing light to flow through all these spaces.

© Eduardo Macarios
客厅的一部分被改造成了办公室,以满足客户的需求。在餐厅旁边,办公室有两扇滑动木门,当关闭时,露出自助餐,当打开时,将办公室连接到客厅。这一惊喜元素是公寓的一大特色。
Part of the living room has been transformed into an office to meet the needs of clients. Adjacent to the dining room, the office has two sliding wooden doors that, when closed, expose a buffet for dinner and, when opened, connect the office to the living room. This surprise element is one of the apartment's discoverable features.

© Eduardo Macarios

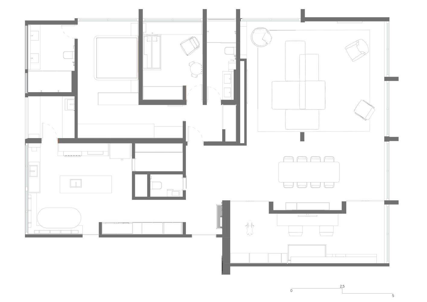
Plan

© Eduardo Macarios
另一个亮点是艺术家Rômulo Lass创作的壁画。壁画为公寓的入口大厅增添了个性,并在您穿过这些空间时将餐厅和厨房连接起来。此外,它模仿了通往浴室和餐具室的门,使平面图更加精致和统一。
Another highlight is the mural created by artist Rômulo Lass. The mural gives personality to the apartment's entrance hall and connects the dining room and kitchen as you walk through these spaces. Furthermore, it mimics the door leading to the bathroom and pantry, which gives refinement and unity to the plans.

© Eduardo Macarios
大理石碎片地板为入口大厅增添了一层新的视觉趣味和触觉体验。这种覆盖物也延伸到厨房,并在整个公寓的空间中建立了联系和流动性。
The marble shard floor added a new layer of visual interest and tactile experience to the entrance hall. This covering also extends to the kitchen and establishes a connection and fluidity throughout the apartment's spaces.

© Eduardo Macarios
烹饪是家庭的一大爱好,在项目中受到了特别关注。厨房的设计有一种小市场,为这个空间提供了不同的体验。它还配备了现代厨房的设备,如酒窖、烧烤和烤架。
Cooking is a great passion for the family and received special attention in the project. A kitchen was designed that has a kind of small market, providing a different experience for this space. It also has equipment of a contemporary kitchen such as a wine cellar, barbecue and grill.

© Eduardo Macarios
选择融合了现代主义和现代主义家具的家具,如组成客厅的两把Cimo扶手椅,以及使用中性色和天然覆盖物,如木材和石头,为住宅营造了一种轻盈而永恒的氛围。
The choice of furniture that mixes contemporary and modernist furniture, such as the two Cimo armchairs that make up the living room, and the use of neutral colors and natural coverings, such as wood and stone, weave a light and timeless atmosphere for the residence.

© Eduardo Macarios