Avant Bakery/oftn工作室
Avant Bakery / oftn studio
独特设计与品牌融合:Avant Bakery Gasan 分店位于繁华办公区,其设计独具匠心。从入口处高耸的柱子和漂浮的面包展示柜,到柜台后的服务区,空间设计既展现出宏伟感又不失亲密氛围。户外景观的引入增添了自然元素,与内部天然材料相呼应,确保空间在品牌中具有独特身份。中性色调营造平静环境,突出面包和甜点这一品牌精髓。
功能与氛围营造:空间后部的座位区设计如欧洲露台,照明模仿自然日光,营造出柔和宁静的氛围。多样的座位安排满足不同客户需求,部分座位可欣赏园景,为客人提供宁静背景。尽管地处快节奏办公区中心,却为客人提供了避风港,让他们享受慢节奏,沉浸在美食与视觉的双重享受中。

© Yongjoon Choi

© Yongjoon Choi
建筑师提供的文字描述Avant Bakery是一家历史悠久的F&;B品牌,拥有多个分店,以提供用传统法国食谱制作的甜点和面包而闻名,同时保持了经典与现代设计之间的和谐平衡。Avant Bakery Gasan分店位于繁华的办公区,占地264平方米,令人印象深刻。这个空间旨在为现代社会忙碌的上班族提供喘息的机会,让他们放松身心,同时保留Avant Bakery品牌的核心身份。
Text description provided by the architects. Avant Bakery is a well-established F&B brand with multiple locations, known for offering desserts and bread crafted from traditional French recipes while maintaining a harmonious balance between classic and contemporary design. The Avant Bakery Gasan branch, located in a bustling office district, spans an impressive 264 square meters. This space is designed to provide moments of respite for the busy office workers of modern society, allowing them to unwind while still preserving the core identity of the Avant Bakery brand.

© Yongjoon Choi

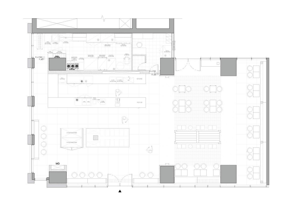
Plan

© Yongjoon Choi
当你从主入口进入时,你会看到高耸的柱子和一个漂浮的面包店展示,它立即引起了人们的注意,柜台位于后面。浮动显示器是一种深思熟虑的设计选择,以避免产生束缚感,显示器和柜台之间的材料差异进一步增强了这种开放感。大厅拥有高高的天花板,这有助于空间的整体宏伟。相比之下,柜台后面服务区的天花板被降低,营造出更加亲密和谦逊的氛围,突显了面包店的服务性质。微妙的环境照明被用来吸引人们对柜台的注意,而不会显得傲慢,营造出一个温馨舒适的场景。
As soon as you enter through the main entrance, you are greeted by towering pillars and a floating bakery display that immediately draws attention, with the counter positioned further back. The floating display was a deliberate design choice to avoid creating a sense of confinement, with the material differences between the display and the counter further enhancing this open feel. The hall boasts high ceilings, which contribute to the overall grandeur of the space. In contrast, the ceiling in the service area behind the counter is lowered to create a more intimate and humble atmosphere, underscoring the service-oriented nature of the bakery. Subtle ambient lighting was employed to draw attention to the counter without being overbearing, creating a welcoming and comfortable scene.

© Yongjoon Choi
这个地方最独特的特点之一是它的户外景观,通过在面包店内提供与自然的视觉联系,为游客增添了一层享受。在一个城市上班族经常与自然元素脱节的世界里,这种绿化提供了一种罕见而受欢迎的体验。该空间的这一方面旨在与品牌的身份保持一致,同时与其他地点相比提供独特的触感。内部采用了木材和石头等天然材料,将户外元素融入其中,确保该空间在Avant Bakery的产品组合中具有独特的身份。
One of the most unique features of this site is its outdoor landscaping, which adds layer of enjoyment for visitors by providing a visual connection to nature from within the bakery. In a world where urban office workers are often disconnected from natural elements, this inclusion of greenery offers a rare and welcome experience. This aspect of the space was designed to align with the brand's identity while offering a unique touch compared to other locations. Inside, natural materials such as wood and stone were incorporated to bring elements of the outdoors in, ensuring that the space has a distinct identity within the Avant Bakery portfolio.

© Yongjoon Choi
在结构和美学上,每个细节都经过仔细考虑,以确保重点始终放在品牌的精髓上——面包和甜点。选择中性色调是为了保持一个平静的环境,有意识地决定避免过度刺激的元素,这些元素可能会降低客户对产品的体验。
Structurally and aesthetically, every detail was carefully considered to ensure that the focus remained on the essence of the brand—its bread and desserts. Neutral tones were chosen to maintain a calm environment, with a conscious decision to avoid overly stimulating elements that might detract from the customer’s experience of the products.

© Yongjoon Choi
在空间的后部,座位区的设计唤起了欧洲露台的感觉。这里的照明计划模仿流入的自然日光,营造出柔和、宁静的氛围,鼓励客人逗留和放松。柔和的灯光与整个空间使用的天然材料相结合,营造出舒适、温馨的氛围,使其成为办公室工作人员从繁忙的日程中休息的理想场所。
At the rear of the space, the seating area is designed to evoke the feel of a European terrace. The lighting here is planned to mimic the natural daylight that streams in, providing a soft, serene ambiance that encourages guests to linger and unwind. The gentle lighting combined with the natural materials used throughout the space creates a cozy, inviting atmosphere, making it an ideal refuge for office workers seeking a break from their hectic schedules.

© Yongjoon Choi
座位安排多种多样,经过精心设计,可根据客户的需求或情绪提供灵活性。无论游客是独自前来反思,与同事一起参加简短的会议,还是分组进行更多的社交体验,座位的多样性都确保了空间能够容纳。部分座位可欣赏到园景外观,为客人品尝美食提供了宁静的背景。该空间旨在满足忙碌的专业人士的功能需求,以及那些在城市的喧嚣中寻求片刻宁静的人。
The seating arrangements are varied and thoughtfully designed to offer flexibility based on the customer’s needs or mood. Whether visitors come alone for a moment of reflection, with colleagues for a brief meeting, or in groups for a more social experience, the variety of seating ensures that the space can accommodate. Some seats offer views of the landscaped exterior, providing a tranquil backdrop for guests to enjoy as they savor their food. The space is designed to accommodate both the functional needs of busy professionals and those looking for a moment of peace amidst the hustle and bustle of the city.

© Yongjoon Choi
尽管Avant Bakery Gasan位于快节奏办公区的中心,但它提供了一个避风港,客人可以花点时间享受较慢的节奏,完全沉浸在体验中,并欣赏该品牌的产品。这个空间汇集了放松、设计和品味的元素,使其成为那些想要享受美食和视觉乐趣的人的绝佳目的地。
Although situated in the heart of a fast-paced office district, Avant Bakery Gasan offers a haven where guests can take a moment to enjoy a slower pace, fully immerse themselves in the experience, and appreciate the brand's offerings. The space brings together elements of relaxation, design, and taste, making it a standout destination for those looking to indulge in both culinary and visual delight.

© Yongjoon Choi