投影/MASATO高桥建筑师
Casting Shadows / MASATO TAKAHASHI ARCHITECTS
设计亮点:这个项目对半个世纪前的公寓楼房间进行了精彩的翻修。设计师巧妙地拆除部分墙壁,分散自然光,创造出充满阴影的单人房间。光影的变化随着时间推移在日常行为中创造深度,被称为“阴影室”。客厅与阴影室的对比和互动,如同“Mugen Noh”中虚构与现实的对话。hinoki 胶合板的运用不仅实用,还与阴影室形成对比,创造出独特的视觉效果。整体设计将光影与空间完美融合,为居住者带来全新的舒适感。
价值体现:该项目在保留历史建筑特色的基础上进行创新改造。建筑坐落在悬崖上,可欣赏到仙台独特景观。设计师通过对空间的重新布局和巧妙设计,满足了客户的需求,同时赋予了旧建筑新的生命。这种改造方式不仅为居住者提供了独特的居住体验,也为历史建筑的可持续发展提供了有益的借鉴,是一次非常成功的建筑设计实践。

© Shutoh Yohei

© Shutoh Yohei
建筑师提供的文字描述这是半个世纪前建造的公寓楼的一个房间的翻修。这座七层楼的建筑面向宫城县仙台市的片平町街,在封建时代是一条封建领主的小巷。该建筑坐落在悬崖上,有一个高差,河流阶地直接与河流相接,可以欣赏到由广濑河和青叶山形成的仙台独特景观。
Text description provided by the architects. This is a renovation of a room in an apartment complex built half a century ago. The seven-story building faces Katahira-cho Street in Sendai City, Miyagi Prefecture, which was a feudal lord's alley in the feudal era. The building is situated on a cliff with a difference in elevation where a river terrace directly meets the river, and offers a view of the unique landscape of Sendai formed by the Hirose River and Mount Aoba.

© Shutoh Yohei

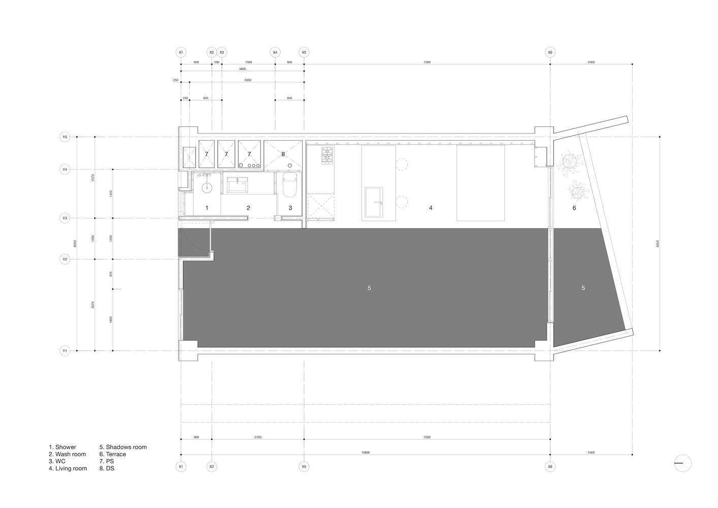
Plan

© Shutoh Yohei
现有的平面图是4K型,由日式房间和西式房间组成。南侧的日式房间很明亮,而北侧的浴室很暗,导致明暗对比强烈。为了最大限度地欣赏风景,我们拆除了将房间分为东西两部分的墙壁,分散了集中在南侧的自然光,露出了一个充满现有结构投下的阴影的单人房间。这是因为,当轮廓被拆除时,由原始空间轮廓(如饰面和灯具)强调的光线失去了线索,光线的扩散也停止了。就像在东方一样,人们很久以前就在黑暗中找到了一种微妙的感觉,这个空间及其积累的黑暗使我们能够想象我们在日常生活中看不到的东西,倾听我们听不到的声音。这个想法是生活在动摇现有结构轮廓的阴影中。
The existing floor plan is a 4K type consisting of a Japanese-style room and a Western-style room. The Japanese-style room on the south side is bright, while the bathrooms on the north side are dark, resulting in a strong contrast between light and dark. To maximize the view, we dismantled the walls dividing the rooms into east and west sections, and the natural light concentrated on the south side was dispersed to reveal a single room filled with dark shadows cast by the existing structure. This was due to the fact that the light, which had been emphasized by the original spatial contours such as finishes and fixtures, lost its clue when the contours were dismantled, and the diffusion of light was stopped. As in the East, where people have long ago found a sense of the subtle in the dark, this space, with its accumulated darkness, allows us to imagine what we cannot see in our daily lives and to listen to what we cannot hear. The idea was to live in the shadows that shake the contours of the existing structure.

© Shutoh Yohei
白天,从南窗和北窗看到的背光景观在阴影中看起来像是借来的风景,只有风景在黑暗中漂浮。日落后,房间里一片漆黑,一半的房间消失在阴影中。边界墙从视野中消失,给人一种穿越无尽深渊的感觉。黑暗的阴影会随着一天中的时间而变化,在日常行为中创造深度。我们称这个有语义阴影的地方为“阴影室”。
During the day, the backlit view from the south and north windows appears as a borrowed landscape in the shadows, and only the scenery floats in the darkness. After sunset, the room is filled with darkness, and half of the room disappears with the shadows. The boundary wall disappears from view, giving the sensation of walking through an endless abyss. The shades of darkness change from moment to moment according to the time of day, creating depth in the everyday act. We call this place with semantic shadows "Shadows room".

© Shutoh Yohei

Sections
客户的两个主要要求是提供一个可用于污垢地板的宽敞区域,并紧凑地组织生活空间,包括客厅、卧室和水域。客厅、卧室和浴室沿南北方向排列,因此与阴影房间相切的线段较长。将客厅和浴室隔开的现有墙壁被故意延伸到地板边缘,这样居民在日常活动中总是会走进阴影室。被反复访问的阴影室与其说是一个房间,不如说是一系列通往其他地方的“开口”,它也是一个“关闭”,空间被阴影暂停。
The client's two major requests were to provide a spacious area that could be used with dirt floors and to compactly organize the living space, including the living room, bedroom, and water area. The living room, bedrooms, and bathrooms are arranged in a north-south direction so that the line segment tangent to the Shadows room is long. The existing wall separating the living room from the bathrooms was deliberately extended to the edge of the floor so that the residents would always step into the Shadows room in their daily activities. Shadows room, which is visited repeatedly, is not so much a room as a series of "openings" for access to other places, and it is also a "closing" where space is paused by shadows.

© Shutoh Yohei

© Shutoh Yohei
鉴于生活从两个截然不同的地方展开的空间结构,阴影室和“客厅”,我想起了与“Mugen(幽灵)Noh”的接近,在那里,故事通过扮演虚构和现实角色的两位演员之间的对话进行。“Mugen Noh”,故事开始于什叶派,一个精神存在,出现在生活在现实中的Waki面前。如果我们将Shite视为阴影室,将waki视为客厅,那么这个房间就是这里和那里之间的空间,换句话说,就是“Awai”(介于两者之间的房间)。客厅的地板、墙壁和天花板被定位为生活的舞台,用扁柏胶合板完成,房间停在阴影房间的边界处。客厅的木制边缘在阴影中停顿下来,通过设置木钉的间距来作为最后的修饰,假设它们会被显示出来。换句话说,它不是一个无意中暴露的部分,而是一个有意暴露的“暂停表面”。
In light of the spatial configuration in which life unfolds from two contrasting places, the Shadows room, and the "living room," I was reminded of the proximity to "Mugen (ghostly spirit) Noh", where the story progresses through a dialogue between the two actors who play the roles of fiction and reality. "Mugen Noh", the story begins when the Shite, a spiritual being, appears before the Waki, who is living in reality. If we view the Shite as the Shadows room and the waki as the living room, this room is the space between here and there, in other words, "Awai"(a room of in-between). The floor, walls, and ceiling of the living room, which is positioned as the stage of life, are finished with hinoki plywood, and the room is paused at the boundary with the Shadows room. The wooden edges of the living room, paused by the shadows, are shown as a finishing touch by setting the spacing of the wood stud on the assumption that they will be shown. In other words, it is not an unintentionally exposed section, but a "paused surface" that is intentionally exposed.

© Shutoh Yohei
hinoki胶合板饰面不仅出于实用原因,如耐用性和防水性,而且允许自然光照亮白色木材表面,与阴影室形成对比。地板高度比阴影室高出20厘米,清楚地表明了空间的变化,天花板高度尽可能低至1.9米。
The hinoki plywood finish is intended not only for practical reasons, such as durability and water resistance but also to allow natural light to illuminate the white wood surface, contrasting with the Shadows room. The floor height was set 20 cm higher than that of the Shadows room as a clear indication of the change of space, and the ceiling height was made as low as 1.9 m to the utmost limit.

© Shutoh Yohei
这种操作旨在创造一个漂浮在黑暗中的光背景,就像从阴影室看时,生命本身被切割成“Kagami-ita”(画有松树的板被称为“Kagami ita”(镜子板),它是能剧舞台道具之一。)。通过展示隐藏在视线之外的框架,我最大限度地扩大了空间的体积,同时允许光线、风和动作穿过阴影,创造了一个内外兼修的地方。增加阴影之间的空气量的操作也是试图将“Mugen Noh”的特征转化为现实空间,在那里,现有框架的绝对现实是改造过程中的虚假。阴影反映在这里和那里之间的空间里。我们希望你能在黑暗的恐怖中发现一种新的舒适感。
This manipulation is intended to create a background of light floating in the darkness as if life itself is cut out like a "Kagami-ita(The board with the painted pine tree is called the "Kagami-ita" (mirror board), and it is one of the Noh stage props.)" when viewed from the Shadows room. By revealing the frame, which had been hidden from view, I maximized the volume of the space, while allowing light, wind, and action to pass through the shadows, creating a place that is both inside and outside. The operation to increase the air volume between the shadows is also an attempt to turn the characteristics of the "Mugen Noh" into the real space, where the absolute reality of the existing frame is the falsity in the renovation process. The shadows reflected in the space between here and there. We hope you will discover a new sense of comfort in the eeriness of the darkness.

© Shutoh Yohei