Quadro总部/工作室工作
Quadro Headquarters / studio wok
创新与实用的融合:Quadro 总部的重新设计展现出了年轻活力与创新理念的完美结合。将高贵材料与基本设计融合,采用天然材料和中性暖色,呈现出简洁纯粹的体量。底层打破传统办公组织,玻璃墙和桦木体量既提供层次结构又引入自然光。非正式放松区和桦木体积的设计巧妙,管理了不同区域的分隔。上层空间作为展厅,灵活的布局和照明设施确保了产品展示的效果。
功能性与美学的统一:这个项目在功能性和美学上达到了高度统一。从满足不同办公需求的布局设计,到注重细节的材料选择和装饰,都体现了专业水准。会议室的设计尤为出色,连续窗户搭配桦木镶板和雕塑会议桌,再加上可调节的百叶窗系统,既保证了自然光的利用又提供了舒适的会议环境。整体而言,Quadro 总部是一个成功的建筑设计案例,为家庭工作空间树立了新的标杆。

© Marcello Mariana

© Marcello Mariana
一个灵活的家庭工作空间Quadro是一家年轻而充满活力的水龙头公司,其总部的重新设计是通过改造房间并将品牌的独特性融入室内设计来实现的。Quadro的创新方法体现在选择将高贵的材料与基本的、原型的、永恒的设计相结合。同时,该项目使用简单、纯粹的体量和由天然材料和中性暖色组成的调色板。
A domestic and flexible workspace.The restyling of Quadro's headquarters, a young and dynamic tap-ware company, was conceived by remodeling the rooms and transferring the brand's peculiarities into the interior design. Quadro's innovative approach manifests itself in the choice of combining noble materials with an essential, archetypal, timeless design. At the same time, the project uses simple, pure volumes and a palette composed of natural materials and neutral, warm colors.

© Marcello Mariana

© Marcello Mariana

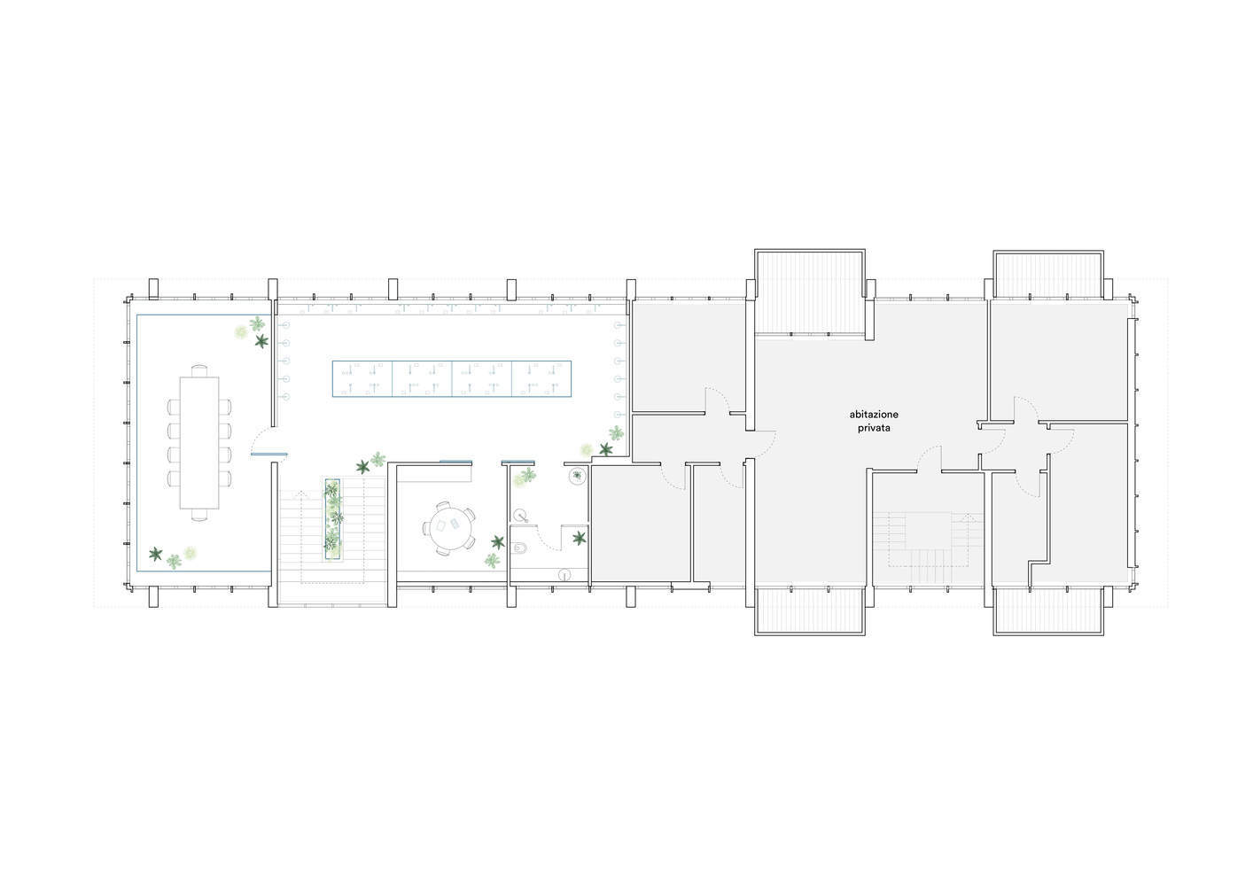
Plan - First Floor

© Marcello Mariana
底层被呈现为一个视觉上统一的空间,打破了典型的走廊式办公组织。一系列玻璃墙和四个桦木体量的存在模糊了这种分离,让自然光侵入空间。
The ground floor is presented as a visually unified space, breaking up the typical corridor-office organization. A sequence of glass walls and the presence of four birch volumes blur this separation and allow natural light to invade the space.

© Marcello Mariana
除了充当容器外,这些元素还为房间提供了层次结构,并允许它们通过集成的滑动墙分开。需要更多隐私的办公室,以及员工厕所和服务器机房,都被放置在入口和一楼楼梯之间的南部服务区。
As well as acting as a container, these elements give the rooms a hierarchy and allow them to be separated through integrated sliding walls. The offices, that required more privacy, as well as the employee toilets and the server room, have been placed in the southern service strip between the entrance and the staircase to the first floor.

© Marcello Mariana
在上楼之前,靠近更衣室和茶点室,有一个非正式的放松区;桦木体积被插入地板下区域,以管理生产和管理区域之间的分隔,并陪同游客进入上层空间。在作为公司展厅的大型开放空间内,产品展示成为主角。
Before going up to the upper floor, near the changing rooms and the refreshment room, there is an informal relaxation area; a birch wood volume is inserted in the under-floor area to manage the separation between the production and management areas and accompanies the visitor to the spaces on the upper floor. Inside the large open space that serves as the company showroom, the product display becomes the protagonist.

© Marcello Mariana

Plan - Second Floor

© Marcello Mariana
该布局旨在以灵活且易于改造的方式展示所有藏品:构成空间背景的墙壁覆盖着带有规则孔图案的面板,而在空间的中心是四张桦木桌子,桌面分为可互换的面板。在天花板上,照明基础设施确保了每种设置都有合适的照明。
The layout has been designed to display all the collections in a flexible and easily remodeled manner: the walls that form the backdrop to the space are covered with panels with a regular pattern of holes, while in the center of the space are four birch tables with tops divided into interchangeable panels. On the ceiling, an infrastructure of light ensures suitable lighting for each set-up.

© Marcello Mariana
会议室的特点是三面连续的窗户,以桦木镶板为重点,桦木镶板在短边上占据了主体,成为一个容器元素;空间的中心是一张黑色Fenix的大型雕塑会议桌。自然光是通过一个带有可调节垂直带的百叶窗系统来管理的,该系统可以在整个工作日完美调节照明。
The meeting room is characterized by continuous windows on three sides, emphasized by birch wood paneling which, on the short sides, takes on the body and becomes a container element; in the center of the space is a large, sculptural meeting table in black Fenix. Natural light has been managed with a system of blinds with adjustable vertical bands that allow perfect regulation of the lighting throughout the working day.

© Marcello Mariana