镰仓/鲁维克公寓
Apartment in Kamakura / ROOVICE
镰仓公寓翻新:镰仓的这套公寓经过精心改造,展现出独特魅力。设计师将过时的 4DK 布局转变为现代风格,与周围自然景观无缝融合。拆除传统装饰后保留的颜色和图案为设计增添特色。厨房以绿色为中心的配色方案呼应公寓楼名,混凝土墙与木制货架单元平衡,多功能房间及劳安木地板增添舒适感。整体设计既具现代美学,又融入传统元素,打造出舒适的居住空间。
Roovice 的 Kariage 计划:此次翻新是 Roovice 的 Kariage 计划一部分,该计划免费翻新旧的空置房产再转租,以应对日本严重的“空屋”问题。镰仓这套公寓的成功改造,不仅为居住者提供了优质的生活空间,也为解决全国大量废弃房产问题提供了可行方案。其展现出的创新理念和社会责任感,值得建筑设计行业借鉴和推广。

© Akira Nakamura

© Akira Nakamura
建筑师提供的文字描述这套公寓位于镰仓山区,镰仓是一个以靠近大海而闻名的小镇,在Roovice的精心指导下,这套住宅楼内的公寓经历了重大改造。最初的设计采用4DK布局,具有黑暗的厨房和多个小房间等过时的元素,翻修旨在为空间注入现代气息,同时将其与周围景观的自然美景无缝融合,尤其是在樱花盛开的春季。
Text description provided by the architects. Situated in the mountainous region of Kamakura, a town renowned for its proximity to the sea, this apartment within a residential complex has undergone a significant transformation under the meticulous guidance of Roovice. Originally designed with a 4DK layout featuring outdated elements such as a dark kitchen and multiple small rooms, the renovation aimed to breathe modernity into the space while seamlessly integrating it with the natural beauty of the surrounding landscape, particularly enchanting during the spring bloom of Sakura trees.

© Akira Nakamura
随着翻修的进行,所有传统的墙壁、天花板和地板都被拆除,露出了公寓的原始结构和过去的遗迹。选择保留从这个过程中暴露出来的颜色和图案,为公寓的设计增添了独特的色彩。
As the renovation progressed, all conventional wall, ceiling, and floor coverings were stripped away, revealing the apartment's raw structure and the remnants of its past. Choosing to retain the resulting colors and patterns exposed from this process added a distinctive touch to the apartment's design.

© Akira Nakamura

© Akira Nakamura
根据公寓楼的名字“Green Heights”,厨房选择了以绿色为中心的配色方案。定制的厨房单元和厨房柜台由劳安木制成,部分涂有与墙壁颜色相匹配的蓝绿色,走廊和厨房配有不锈钢台面和灰色瓷砖地板。
In reference to the apartment complex's name "Green Heights," a color scheme centered around green was chosen for the kitchen. The custom-made kitchen unit and kitchen counter made from lauan wood and partially painted in a bluish-green shade matching the wall colors, were complemented by a stainless countertop and gray tile flooring in the corridor and kitchen.

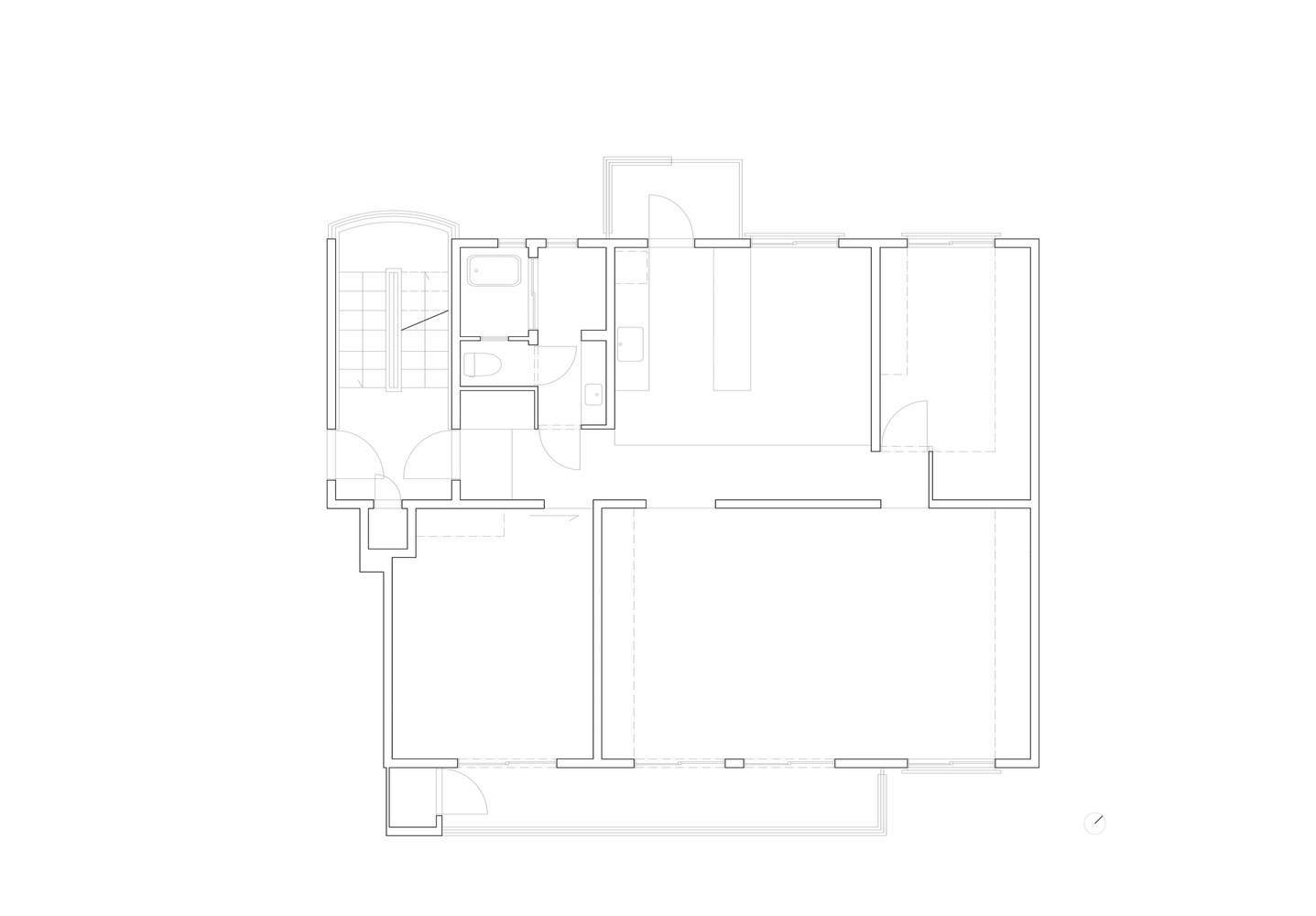
Plan - After

© Akira Nakamura
混凝土墙和砂浆地板与宽敞客厅中木制货架单元的温暖相平衡。大多数房间都安装了照明栏杆,为照明安排提供了灵活性。
The concrete walls and mortar flooring were balanced with the warmth of wooden shelving units in the spacious living room. Lighting rails were installed throughout most rooms, offering flexibility in lighting arrangements.

© Akira Nakamura

© Akira Nakamura
除了卧室和客厅外,该公寓还提供了一个多功能的房间,配有多功能定制的架子,可以作为储藏室、步入式衣柜或家庭办公室。在这个房间和卧室中使用劳安木地板为整体氛围增添了舒适感,将现代美学与传统元素融为一体。
In addition to the bedroom and living room, the apartment offers a versatile room with multi-functional custom-made shelving, which can serve as storage, a walk-in closet, or a home office. The use of lauan wood flooring in this room and the bedroom added a cozy touch to the overall ambiance, blending modern aesthetics with traditional elements.

© Akira Nakamura

© Akira Nakamura
此次翻新是Roovice的Kariage计划的一部分,我们免费翻新旧的空置房产,然后将其转租。该项目是为了应对日本日益严重的“空屋”问题而启动的,全国有超过1000万处废弃房产。
This renovation is part of Roovice's Kariage initiative, where we refurbish old, vacant properties at no cost to the owner and then sublease them. The project was launched in response to Japan's growing akiya (空き家) issue, with over 10 million abandoned properties across the country.

© Akira Nakamura