SVRN旧金山/WGNB
SVRN San Francisco / WGNB
独特设计与功能融合:这个项目将品牌身份与独特位置完美结合。椭圆形环转化为绿色氧化铜弯曲墙壁,象征时间流逝,创造动态流程。错层设计灵感来自旧金山山丘,坡道实现无缝导航,增强空间地形感。固定装置和家具增强功能性与美学吸引力,全向 POS 设备和墙上货架为零售环境增添多功能性。可持续性设计抢救和重新利用现有建筑元素,保留遗址遗产,减少环境影响,加强品牌可持续性承诺。
成功的空间打造:该项目在旧金山的山坡上两座不连贯建筑间创造出有凝聚力的客户体验。设计巧妙整合不同元素,从弯曲墙壁到坡道设计,再到可持续性的考量,都展现出卓越的设计水平。全向 POS 设备和墙上货架的设计,既满足了功能性需求,又提升了空间的美学价值。整体而言,SVRN 旧金山商店是一个成功的建筑设计案例,为零售空间的设计提供了新的思路和方向。

© Yongjoon Choi

© Yongjoon Choi
建筑师提供的文字描述旧金山SVRN商店是一个独特的建筑项目,融合了品牌的身份和独特的位置特征。该设计位于山坡上两座不连贯的建筑之间,旨在无缝整合不同的楼层、天花板结构和建筑基础,以创造有凝聚力的客户体验。这个概念的核心是一个椭圆形的环,它贯穿整个空间,转化为一系列用绿色氧化铜制成的弯曲墙壁,这种材料被用来象征时间的流逝。这与SVRN之前在芝加哥的门店使用的耐候钢相呼应,同时也创造了一个动态的流程,邀请顾客自由探索。这些弯曲部分之间产生的空间张力增加了一种发现和拥抱的感觉,增强了穿过商店的旅程。
Text description provided by the architects. The San Francisco SVRN store is a distinctive architectural project that merges the brand's identity with the unique characteristic of its location. Situated across two disjointed buildings on a hillside, the design aims to seamlessly integrate varying floor levels, ceiling structures, and architectural foundations, in order to create a cohesive customer experience. Central to the concept is an elliptical loop that weaves through the space, translating into a series of curved walls finished in green oxidized copper, a material chosen to symbolize the passage of time. This nods to the corten steel used in the previous Chicago store of SVRN, while also creating a dynamic flow that invites customers to freely explore. The resulting spatial tension between these curved segments adds a sense of discovery and embracing, enhancing the journey through the store.

© Yongjoon Choi

© Yongjoon Choi
执行该项目的最大挑战之一是确保两栋建筑的错层无障碍。该解决方案的灵感来自旧金山的标志性山丘,融入了模仿城市自然景观的坡道。这些坡道实现了无缝导航,而楼层的逐渐升高使空间具有独特的地形感,确保所有顾客都可以进入商店的每个区域。
One of the most significant challenges in executing this project was ensuring accessibility across the split levels of the two buildings. The solution drew inspiration from San Francisco's iconic hills, incorporating ramps that mimic the city's natural landscape. These ramps allow for seamless navigation, while the gradual rise in floor levels gives the space a distinct topographical feel, ensuring that all customers can access every area of the store.

© Yongjoon Choi

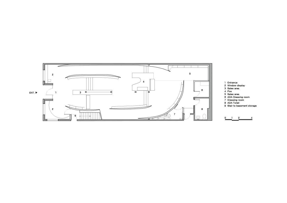
Plan

© Yongjoon Choi
此外,固定装置和家具的设计增强了空间的功能性和美学吸引力。一个突出的特点是全向POS设备,它可以作为收银台、展示平台和长凳。这种整体式结构采用反光饰面设计,可捕获天窗的自然光,并提供连续的运动流,使客户能够从各个角度接触产品。除此之外,墙上的货架旨在作为货架,容纳SVRN不断变化的季节性系列,为零售环境增添多功能性和灵活性。
Furthermore, the design of fixtures and furniture enhanced both the functionality and aesthetic appeal of the space. A standout feature is the omnidirectional POS fixture, which functions as a checkout counter, display platform, and bench. Designed with a reflective finish, this monolithic structure captures natural light from the skylights and offers a continuous flow of movement, allowing customers to engage with products from all angles. Alongside this, shelves on the wall are intended to serve as a rack, accommodating SVRN's ever-evolving seasonal collections, adding versatility and flexibility to the retail environment.

© Yongjoon Choi

© Yongjoon Choi
可持续性是设计过程中不可或缺的一部分,重点是抢救和重新利用现有的建筑元素。原始建筑的天窗、木梁和椽子被保留下来并熏黑,以保留该遗址的遗产。这种精心的整合不仅减少了新建筑对环境的影响,还建立了旧金山和芝加哥商店之间的视觉连续性,加强了SVRN对深思熟虑、情境驱动的可持续性的承诺。
Sustainability was integral to the design process, focusing on salvaging and repurposing existing architectural elements. Skylights, wooden beams, and rafters from the original buildings were preserved and blackened to retain the heritage of the site. This careful integration not only reduced the environmental impact of new construction but also established a visual continuity between the San Francisco and Chicago stores, reinforcing SVRN's commitment to thoughtful, context-driven sustainability.

© Yongjoon Choi