云卡餐厅俱乐部/StudioDuo建筑|室内
Yunka Restaurant-Club / StudioDuo Architecture | Interior
独特设计:这个餐厅俱乐部位于西贡繁华中心,以独特建筑风格展现日经美食精髓。醒目的马赛克瓷砖铺满地面,形成动态视觉景观,引导人流并增强空间体验。天花板的手绘竹藤装饰模仿秘鲁彩虹山脉,结合 LED 照明营造出美丽光影效果和温暖氛围。丰富的面料运用增添了视觉和触觉层次感,与瓷砖相得益彰,呼应日经料理的折衷主义精神。大窗户提供全景视野,融合室内外空间,自然光为用餐体验增添活力。
设计亮点:云卡餐厅俱乐部是设计的精彩呈现,和谐融合了多种元素。活力瓷砖、艺术天花板、丰富面料和自然元素共同打造出独特的沉浸式用餐环境。绿色植物增添自然优雅,与大胆设计元素对比鲜明,营造宁静氛围。整体设计反映日经美食精髓,为客人提供视觉刺激和舒适环境,是对设计与美食完美结合的成功探索,为食客带来难忘的体验,也为餐饮空间设计树立了新的标杆。

© Đỗ Sỹ

© Đỗ Sỹ
建筑师提供的文字描述我们新设计的餐厅俱乐部位于西贡繁华的中心地带,通过独特的建筑风格捕捉到日经美食的精髓。这个空间大胆地将丰富的文化与前卫的设计相结合,为食客创造了一种真正身临其境的体验。
Text description provided by the architects. Located in the bustling heart of Saigon, our newly designed restaurant-club captures the essence of Nikkei cuisine through a unique architectural approach. The space is a bold combination of cultural richness with avant-garde design, creating a truly immersive experience for the diners.

© Đỗ Sỹ

© Đỗ Sỹ
当客人走进房间时,他们会看到覆盖在地板上的醒目的马赛克瓷砖。每块瓷砖都有其独特的颜色,形成了一个动态而引人入胜的视觉景观。复杂的图案和大胆的色调不仅是装饰性的,而且是一种视觉锚,引导着流动,增强了空间体验。
As guests step inside, they are greeted by a striking mosaic of vibrant tiles that cover the floor. Each tile, with its distinctive color, forms a dynamic and engaging visual landscape. The intricate patterns and bold hues are not merely decorative but serve as a visual anchor, guiding the flow and enhancing the spatial experience.

© Đỗ Sỹ
天花板是一个引人注目的特征,装饰着手绘竹藤,完美地模仿了秘鲁生动多彩的彩虹山脉。这种艺术处理,结合集成LED照明,产生了美丽的光影效果。透过竹子的光线营造出温暖而诱人的氛围,增强了空间的整体氛围。
The ceiling is a remarkable feature, adorned with hand-painted bamboo rattan that beautifully emulates the vivid, colorful rainbow mountains of Peru. This artistic treatment, combined with integrated LED lighting, produces a beautiful play of light and shadow. The light filtering through the bamboo creates a warm and inviting atmosphere, enhancing the overall mood of the space.

© Đỗ Sỹ

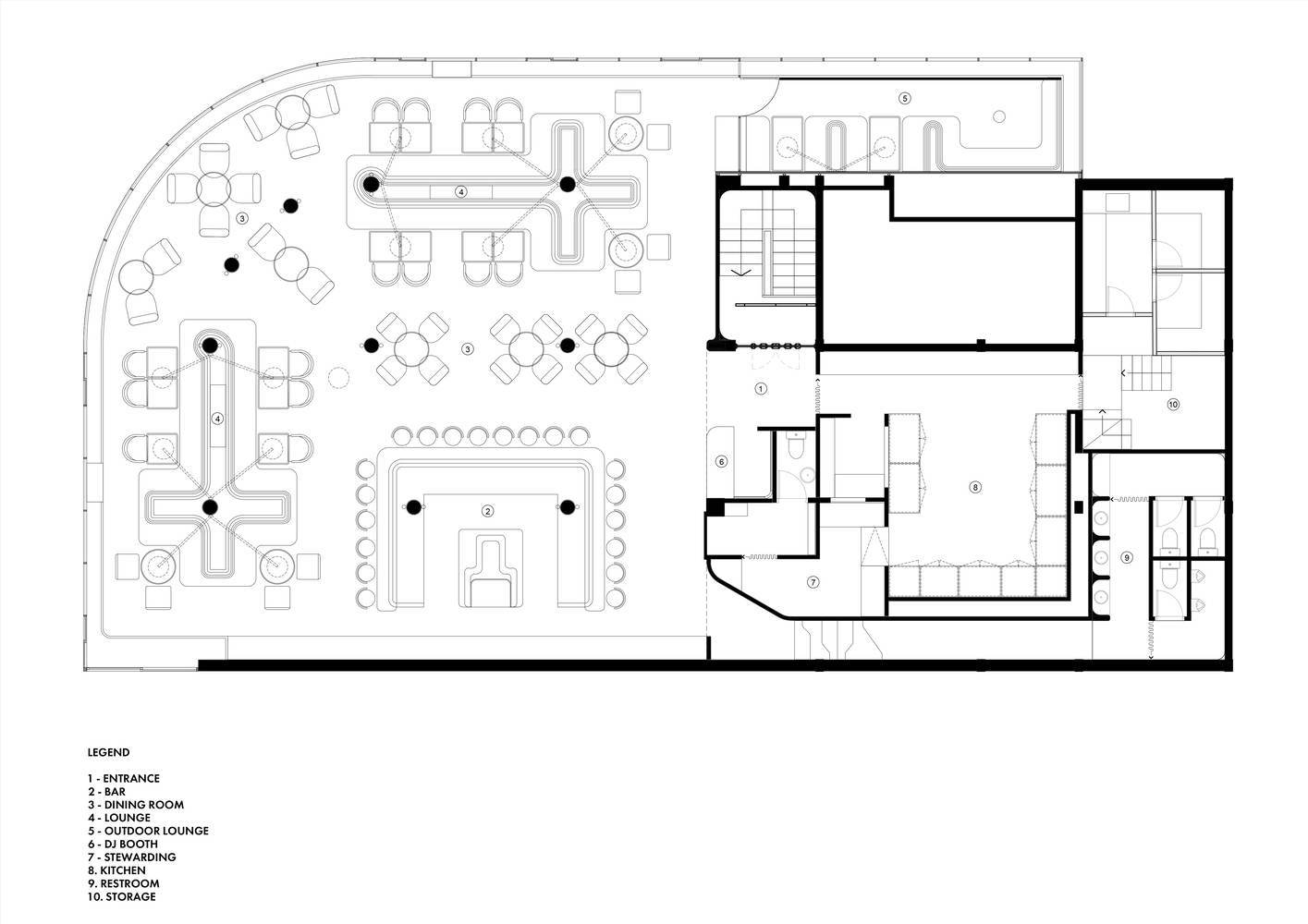
Plan

© Đỗ Sỹ
整个场馆都巧妙地使用了五颜六色的面料,引入了视觉和触觉的层次感。丰富、充满活力的室内装潢和各种纹理和图案的窗帘与引人注目的瓷砖相得益彰,为设计增添了俏皮而精致的层次。这些面料增强了空间体验,营造出一种生动而迷人的氛围,与日经料理的折衷主义精神相呼应。
Colorful fabrics are strategically used throughout the venue, introducing layers of visual and tactile interest. Rich, vibrant upholstery and drapery in various textures and patterns complement the striking tilework and add a playful yet sophisticated layer to the design. These fabrics enhance the spatial experience, creating a lively and engaging atmosphere that resonates with the eclectic spirit of Nikkei cuisine.

© Đỗ Sỹ
大窗户提供了街道的全景,将室内空间与充满活力的城市完美融合。与城市景观的这种联系带来了自然光,为用餐体验增添了活力,让客人在宁静的环境中享受西贡的繁华活力。
Large windows offer a panoramic view of the street, seamlessly blending the indoor space with the vibrant city outside. This connection with the urban landscape brings in natural light and adds a dynamic element to the dining experience, allowing guests to enjoy the bustling energy of Saigon from within a tranquil setting.

© Đỗ Sỹ
郁郁葱葱的绿色植物交织在整个空间中,增添了一丝自然的优雅。这些植物与大胆的设计元素形成了鲜明的对比,营造出宁静的氛围,增强了餐厅的整体氛围。
Adding a touch of natural elegance, lush greenery is interwoven throughout the space. The plants provide a refreshing contrast to the bold design elements, creating serene pockets of calm and enhancing the restaurant's overall ambiance.

© Đỗ Sỹ

© Đỗ Sỹ
本质上,这个餐厅俱乐部是对设计的庆祝,它和谐地融合了充满活力的瓷砖、艺术天花板、丰富的面料和自然元素。它提供了一个独特而身临其境的用餐环境,反映了日经美食的精髓,同时为客人提供了一种视觉刺激和舒适的环境。
In essence, this restaurant club is a celebration of design that harmoniously blends vibrant tiles, artistic ceilings, rich fabrics, and natural elements. It offers a unique and immersive dining environment that reflects the essence of Nikkei cuisine while providing a visually stimulating and comfortable setting for guests.

© Đỗ Sỹ