SpActrum上海办事处/SpActrum
SpActrum Shanghai Office / SpActrum
创新与反思:SpActrum 上海办事处的设计展现出对建筑过程的深刻反思与创新。如今的建筑过程常被简化为最终结果,而 SpActrum 从 2019 年开始积极参与施工各方面,目睹行业对建筑过程中形式变化和材料理解的双重忽视后,决定打破沉默。他们利用施工过程中的隐藏力量作为办公室和展览空间的表面材料,让那些通常不被公众看到的建筑组件重新进入人们的视野,展现了对建筑本质的新探索。
材料的新生:在这个项目中,从模具到耐火砖、GMT 托盘、地板承重板再到麻袋,原本在施工过程中有特定用途的材料被重新赋予新的生命。它们成为家具支架、台面、空间屏障等,通过物理特性与新功能需求建立联系。这种对材料的创造性再利用,不仅体现了可持续的理念,更让人们重新审视建筑材料的价值和潜力,为建筑设计带来了新的思路和可能性。

© SFAP

© SFAP
天生就是为了建造——今天的建造过程往往被简化为最终结果,比历史上看到的步骤和中间形式更多。例如,混凝土项目的模板安装过程涉及搭建密集的脚手架森林,然后是支撑建筑负模板的模板,这些步骤似乎与最终形式相去甚远。在这个过程中,施工过程中产生的模板不断出现,并在新出现的形式中消失,因此,在形式或智力层面上没有尝试的施工过程成为一个连续的生成器,有令人满意的出现和消亡的形式,因此它经历了场地最剧烈的形式变化。
Born to Build -Today's construction process is often reduced to its final outcomes, with more steps and intermediate forms than historically seen. For example, the process of formwork erection for a concrete project involves the erection of a dense forest of scaffolding and then the formwork for the negative form of the building supported, in steps that seem far removed from the final form. In such a process, the forms resulting from the construction process continue to emerge and are annihilated in the newly emerging forms, so that the construction process, which has no attempt on the form or on an intellectual level, becomes a continuous generator with contently emerging and withering forms, thus it undergoes the most dramatic formal changes of the site.

© SFAP
建筑师目前在两个方面忽视了这种情况:1)未能将这种不断变化的状态作为形式语言的生成器纳入形而上学思维;2)丧失了理解材料的物质性、研究材料本身的物理趋势以及调整和指导形式生成的能力,这在古典时期是可能的,因为建筑过程的即时性以及在施工过程中调整和指导形状生成能力的建筑师和设计师的统一性。
This situation is currently being ignored by architects in two dimensions: 1) the failure to incorporate this state of constant change into metaphysical thinking as a generator of formal language; and 2) the loss of the ability to understand the materiality of materials, to investigate the physical tendencies of the materials themselves, and to adjust and guide the generation of form, which was possible in the Classical period due to the immediacy of the building process and the oneness of the builder and the designer whose is adjusting and guiding the ability of form generation during construction procedures.

© Terrence Zhang
从2019年开始,SpActrum Architects一直在设计并积极参与施工过程的各个方面。SpActrum的建筑师们从一个地方到另一个地方,体验了在当代建筑体系下从头开始建造的过程。目睹了上述双重忽视,也许还要感谢你保持新的眼光,他们对行业对这种忽视的普遍麻木和漠不关心感到惊讶。建筑工地的形式出现又消失,这意味着大量的组件要么在施工步骤结束时被丢弃或回收,要么隐藏在成品深处,再也不会被发现。
Starting in 2019, SpActrum Architects has been designing and actively involved in all aspects of the construction process. SpActrum's architects traveled from site to site, experiencing the process of building from scratch under the contemporary construction system. Witnessing the double neglect mentioned above, and perhaps thanks for keeping a fresh eye, they were amazed at the general numbness and indifference of the industry to such neglect. Construction site forms emerge and disappear, which means that a large number of components are either discarded or recycled at the end of their construction steps or hidden deep within the finished product and never known again.

© SFAP

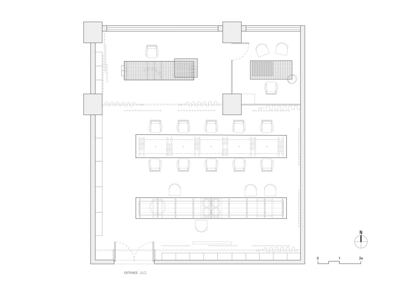
Floor Plan

© SFAP
这些对建筑至关重要的组件不会出现在任何公众视野中。当SpActrum办公室搬到新地点时,他们决定打破这种沉默,用自己的办公室和展览空间来面对这种疏忽,利用这些隐藏的幕后力量作为他们办公室/展览空间的表面材料。通过它们的物理特性重新建立与新功能需求的联系,在达到新的使用方式的同时,它们的形式很容易被感知。通过这种方式,这些建筑材料进入了我们作为建设者的日常意识和游客的公众意识。
These components, which are essential to the construction, do not appear in any public view. When the SpActrum office moved to a new location, they decided to break this silence and confront this oversight with their own office and exhibition space, utilizing these hidden behind-the-scenes forces as surface material for their office/exhibition space. Re-establishing the link with the new functional needs by their physical properties, their forms can be readily perceived while reaching new ways of use. In this way, these built materials enter into the everyday consciousness of us as builders and the public consciousness of visitors.

© SFAP
下面详细列出了从施工过程中重新使用的材料:
模具:混凝土浇注的主要建模工具,通常由金属或塑料制成,重生为家具支架
耐火砖建筑陶瓷,需要在由耐火砖保护的炉膛内硬化和烧制,重新成为家具支撑。
A non-exhaustive list of materials repurposed from the construction process is detailed below:
Molds: the main modeling tool for concrete pouring, typically made of metal or plastic, reborn as furniture supports.
Firebricks: architectural ceramics that need to be hardened and fired in a hearth protected by refractory bricks, reborn as furniture supports.

© Terrence Zhang
GMT托盘:这些耐火纤维板在烧结机制砖时用作耐火托盘,涂上树脂后呈现大理石般的外观,用作台面
地板承重板
GMTPallets: Serving as fire-resistant pallets in the sintering of machine-made bricks, these refractory fiber slabs take on a marble-like appearance when resin-coated and are used as the bench worktop.
Floor Bearing Plates: Serving dual roles as formwork and reinforcement in the concrete process, these plates are mass-produced in factories through welding, boasting substantial structural capacity and used as general supports for the bench worktop and the exhibition tabletop.

© Terrence Zhang
Burlap袋s这些袋子最初是用于运输原材料的初级包装,一旦装满并缝合,就可以作为空间屏障。
Burlap Sacks: Originally rudimentary packaging for transporting raw goods, these sacks, once filled and sewn, serve as space screens.

© Terrence Zhang