Polene巴黎首尔旗舰店/WGNB
Polene Paris Seoul Flagship Store / WGNB
独特设计理念:Polène首尔旗舰店以皮革作为主要设计语言,这一概念极具创新性。从想象中的皮革引入场地,到雕刻出矿物并创造室内空间,皮革元素贯穿始终,从地板、墙壁到天花板和楼梯,使整个商店成为品牌最大的皮革制品。立面上巨大的皮革板姿态统一了前两层,内部柱子的皮革般结构也模仿了皮革自然特性,为空间增添了独特魅力。
艺术与文化融合:商店保持极简主义基调,强调建筑理念和产品展示。与当地艺术家的合作更是为设计增添了独特的、针对特定地点的元素。Dasol Lee 的皮革纹理陶瓷和 Jungjoo Im 的木制雕塑,不仅增强了商店的视觉叙事,还将其植根于当地文化背景,创造出一个全球品牌与当地文化共鸣的空间。

© Yongjoon Choi

© Yongjoon Choi
建筑师提供的文字描述Polène首尔旗舰店的设计叙事是通过隐喻和实际使用皮革对空间的复杂探索,将该品牌的精髓封装在其韩国第一家门店。
Text description provided by the architects. The design narrative of Polène's Seoul flagship store is a sophisticated exploration of space through the metaphorical and practical use of leather, encapsulating the brand's essence in its first Korean location.

© Yongjoon Choi

© Yongjoon Choi
这一概念的核心是将皮革作为主要设计语言。首先,在现有场地中引入一块想象中的皮革,然后雕刻出一块矿物质,并精心切割和雕刻以创造室内空间。这个概念性的皮革板超越了隐喻,成为一个不可或缺的设计元素,形成了地板、墙壁、天花板和楼梯,从而将整个商店变成了Polène最大的皮革制品。
Central to the concept is the adaptation of leather as the primary design language. This begins with the introduction of an imaginary sheet of leather into the existing site, which then carves out a mineral mass and is meticulously cut and sculpted to create the interior space. This conceptual leather sheet transcends metaphor to become an integral design element, forming the floor, walls, ceiling, and staircase, thus transforming the entire store into Polène's largest leatherwork.

© Yongjoon Choi

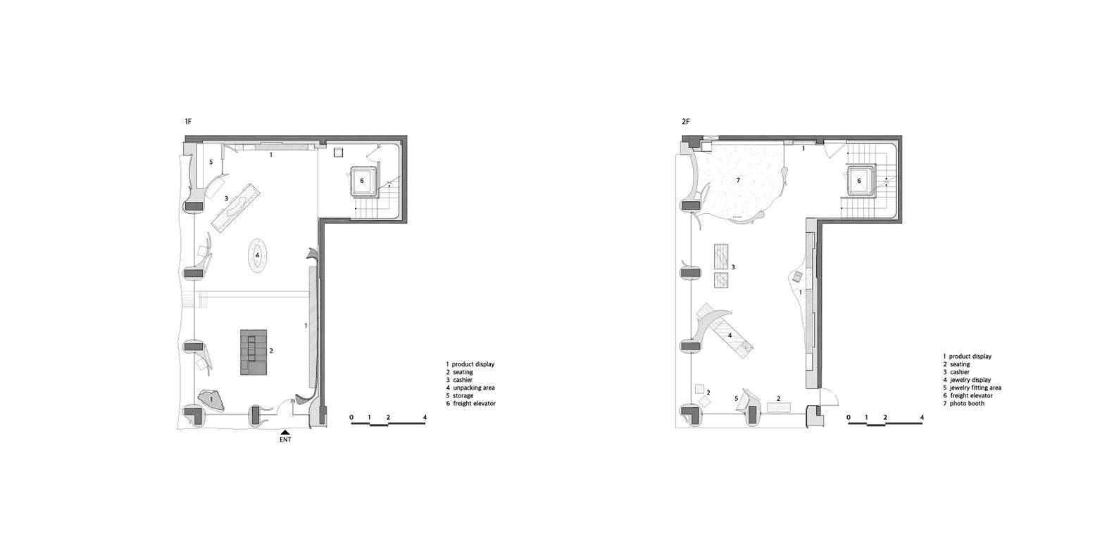
Plan

© Yongjoon Choi

© Yongjoon Choi
该设计在开发阶段达到了一个实用的解决方案,立面上巨大的皮革板的姿态将前两层统一起来,创造出一种温馨而有凝聚力的外观。在一楼,这种皮革般的姿态在视觉上协调了楼层的变化。在内部,现有的柱子被包裹在皮革般的结构中,这些结构具有不同的表面光洁度,以模仿皮革的自然特性,具有代表正面、背面和剖面的独特纹理。
The design reaches a practical resolution during the development stage, where the gesture of a massive leather sheet on the facade unifies the first two floors, creating a welcoming and cohesive appearance. On the ground floor, a floor level change is visually harmonized by this leather-like gesture. Inside, the existing columns are wrapped in leather-like structures detailed with varying surface finishes to mimic the natural characteristics of leather, with distinct textures representing the front, back, and section.

© Yongjoon Choi

© Yongjoon Choi
这家商店保持着极简主义的基调,其美学强调了其建筑理念和展出的产品。通过与当地艺术家的合作,这种极简主义得到了强调,为设计增添了独特的、针对特定地点的元素。
Maintaining a minimalist tone, the store's aesthetic underscores its architectural concept and the products on display. This minimalism is accentuated through collaborations with local artists, adding unique, site-specific elements to the design.

© Yongjoon Choi

© Yongjoon Choi
Dasol Lee(@l2da_official)贡献了她标志性的皮革纹理陶瓷作为家具上的定制瓷砖,而Jungjoo Im(@Jungjoo_Im)则用当地著名的银杏树制作木制雕塑。这些合作不仅增强了商店的视觉叙事,而且将其植根于当地文化背景,创造了一个既具有全球品牌又具有当地共鸣的空间。
Dasol Lee (@l2da_official) contributes her signature leather-textured ceramics as custom-made tiles on the furniture, while Jungjoo Im (@jungjoo_im) produces wooden sculptures from the locally significant ginkgo tree. These collaborations not only enhance the store's visual narrative but also root it in the local cultural context, creating a space that is both globally branded and locally resonant.

© Yongjoon Choi