Kopi Cantel Braga/工作室ASA
Kopi Cantel Braga / Studio ASA
独特创新的设计理念:这个位于布拉加街旅游区的项目展现出了极具创意的设计理念。通过取消门而设置巨大橙色隧道作为过渡区,减少游客进入的犹豫,增强了惊奇感。超实体零售概念的运用,创造了沉浸式和体验式空间,吸引顾客互动探索。以“欢乐的童年回忆”为主题,营造出愉悦的氛围,为顾客带来独特的情感体验。同时,将世纪中叶的现代美学融入其中,家具的大胆色彩增添了活力。
巧妙的空间布局:项目的空间布局十分巧妙。在保证现代美学的同时,注重自然阳光的引入,避免了室内购物区的封闭感。二楼改造成露天剧场形式的室外区域,为公共活动创造了活跃的开放空间。植物和绿化的运用增强了审美吸引力、舒适度和顾客心情。整体设计在视觉上吸引人,且确保空间不会很快过时,实现了功能性与美观性的完美结合。

© Arte Haus, Bymonsoon

© Arte Haus, Bymonsoon
建筑师提供的文字描述位于布拉加街的旅游区,我们认识到这里的客户行为往往节奏快,容易分心。这种理解指导我们设计一个吸引注意力的环境
Text description provided by the architects. Located in the touristy area of Braga Street, we recognize that customer behavior here tends to be fast-paced and easily distracted. This understanding guides us in designing an environment that captures attention

© Arte Haus, Bymonsoon

© Arte Haus, Bymonsoon
穿越隧道-我们的目标是通过完全取消门来减少游客进入的犹豫。在不使用门的情况下,巨大的橙色隧道充当了商店外部和内部之间的过渡区域。过渡隧道的建造是为了增强惊奇感,唤起空间内压缩和膨胀的感觉。确保我们的咖啡馆在其他F&;B该地区的零售商。让路人很容易看到我们的地方提供了什么,并对进去感到好奇。
Travel Through a Tunnel -We aimed to reduce visitors' hesitation to enter by eliminating the door altogether. Without using doors, the massive orange tunnel serves as a transition area between the shop's exterior and interior. The transition tunnel was built to enhance the sense of wonder and evoke feelings of compression and expansion within the space. Ensure that our café stands out among the other F&B retailers in the area. Make it easy for passersby to see what our place offers and feel intrigued to step inside.

© Arte Haus, Bymonsoon

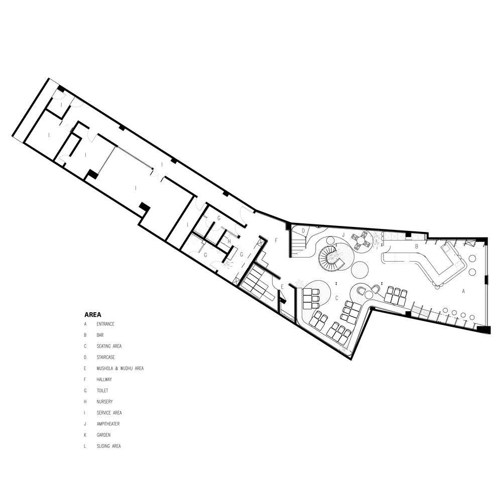
Plan - Ground Floor
超实体零售概念-受大气广告等零售技术的启发,通过图像和幻想来运作,我们创造了一个通过沉浸式和体验式元素吸引客户的空间,这些元素邀请互动和探索。在不干预作为布拉加街历史遗产一部分的建筑立面的情况下,我们专注于室内空间。从街上可以看到整个商店,以及里面的人,把这个内部环境变成了橱窗展示本身。
Hyper-Physical Retail Concept -Inspired by retail techniques such as Atmospheric Advertising, which operates through imagery and fantasy, we create a space that engages customers through immersive and experiential elements that invite interaction and exploration. Without intervening in the façade of the building, which is part of the historical heritage of Braga Street, we focus on the interior space. The entire store, along with the people in it, is visible from the street, turning this interior setting into a window display itself.

© Arte Haus, Bymonsoon

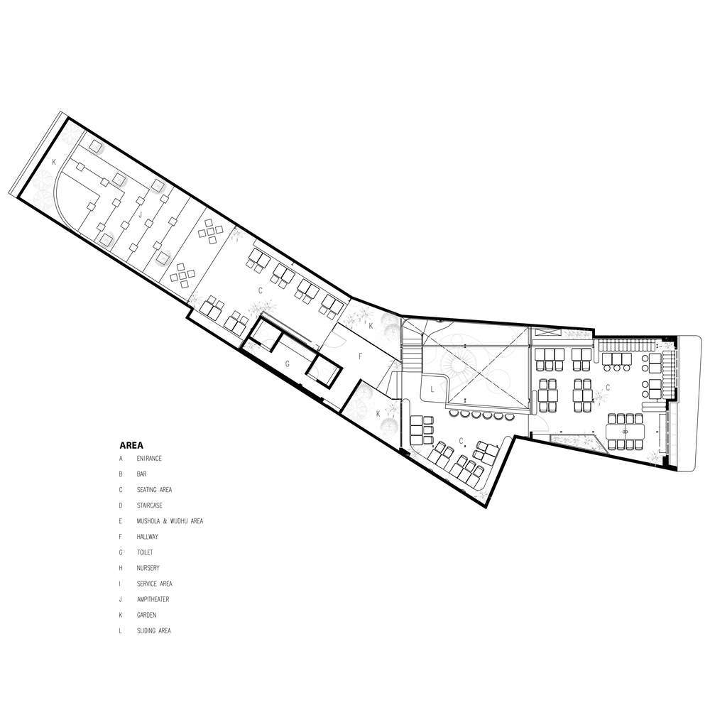
Plan - 1st Floor

© Arte Haus, Bymonsoon

© Arte Haus, Bymonsoon
空间氛围-为了与品牌形象保持一致,我们将“欢乐的童年回忆”作为我们设计的主题。我们设计的幼稚精神为我们的客户培养了空间和情感体验之间的联系。这种氛围框架产生愉悦的身体感觉,创造与空间相关的记忆。滑动功能是对欢乐童年时刻的怀旧提醒,鼓励顾客与之互动。利用颜色和材料创造一个充满质感和多样性的欢乐空间,以米色墙壁为主要框架,我们确保设计在不过度刺激的情况下唤起幸福感。我们为咖啡店带来了一点游乐场,将商店变成了一种感官体验。
Spatial Atmosphere -To align with the brand image, we use 'Joyful Childhood Memories' as the theme of our design. The childish spirit of our design fosters a connection between space and emotional experience for our customers. This atmospheric framework generates pleasant bodily sensations, creating memories associated with the space. The sliding feature serves as a nostalgic reminder of joyful childhood moments, encouraging customers to interact with it. Utilizing color and materials to create a joyful space rich in texture and variety, with beige walls as the main framework, we ensure that the design evokes a sense of happiness without being overly stimulating. We bring a bit of the playground to our coffee shop, transforming the store into a sensory experience.

© Arte Haus, Bymonsoon

© Arte Haus, Bymonsoon
空间布局-我们通过将世纪中叶的现代美学融入咖啡馆来创造平衡。营造一种视觉上吸引人的现代氛围,确保空间不会很快过时。家具以鲜艳的橙色、绿色和芥末黄色为特色。我们喜欢这些大胆的颜色如何为空间增添活力和能量。植物和绿化增强了顾客的审美吸引力、舒适度和心情。
Spatial Arrangement -We create balance by incorporating mid-century modern aesthetics into the café. Creating a visually inviting and modern atmosphere, ensuring the space doesn't look outdated quickly. Vibrant orange, green, and mustard yellow are featured in the furniture. We love how these bold colors add vibrancy and energy to the space. The plants and greenery enhance the aesthetic appeal, comfort, and mood of the customers.

© Arte Haus, Bymonsoon
在典型的室内购物区,我们提供更多的户外通道,以避免被限制的印象。确保所有空间都能接收到自然阳光。在二楼,我们将室内空间改造成露天剧场形式的室外区域,在购物走廊之间为公共活动创造了一个活跃的开放空间。
In a typical indoor shopping area, we provide more access to the outdoors to avoid the impression of being confined. Ensure that all spaces receive natural sunlight. On the second floor, we transformed the indoor space into an outdoor area in the form of an amphitheater, creating an active open space for communal activities between the shopping corridors.

© Arte Haus, Bymonsoon