地域文脉与象征意义的巧妙融合:该项目成功地将建筑设计与鹤冈市深厚的历史底蕴和社区使命紧密相连。通过将南丁格尔护士帽的意象转化为富有表现力的白色遮阳板装置,建筑在满足被动式热工需求的同时,形成了强烈的精神象征。这种手法不仅是对未来医疗专业人才培养的致敬,也使建筑在城市肌理中实现了低调而有力的文化宣言,体现了对地方精神的尊重与传承。
内部空间的连续性与透明性营造:设计通过一个贯穿垂直的中央中庭,打破了传统教学空间边界的僵化划分。杉木格栅包裹的楼梯间,促进了光线和空气在各楼层间的自由流动,将原本分离的教室、实习室和图书馆整合成一个相互关联、具有透明“存在感”的学习景观。这种内向聚合的布局强化了学习的整体性和社区感,促进了跨功能区域的互动。
结构逻辑驱动的空间效率与设计表达:面对严格的高度限制和防洪需求,设计团队采用了空心楼板和扁平梁结构以优化层高,并巧妙地将设备管线外露作为一种坦诚的设计语言。这种结构效率的追求直接转化为建筑内部美学,象征着护理教育中严谨、透明和持续关怀的核心价值。同时,通过开放的场地设计,建筑成功地融入了城市环境,成为一个兼具功能性与公共参与性的城市节点。
Photographs showing the exterior and context of the building.

© Koji Horiuchi

© Koji Horiuchi
Regional Context and Symbolic Meaning - Tsuruoka City, located in the Shonai region of Yamagata Prefecture, is a city with a deep historical heritage. The new building for the Tsuruoka Municipal Shonai Nursing School, serving as a base for cultivating the region's core medical personnel, is rooted in local culture and quietly integrates into a corner of the city. The most striking feature of the facade is the white sunshade device inspired by the Nightingale cap. This installation not only functions as a performance component regulating light, shadow, and thermal environment but also serves as a solemn declaration to the community, symbolizing the mission and honor of the students dedicating themselves to the medical profession.
地域文脉与象征意义 - 鹤冈市位于山形县荘内地区,是一座历史底蕴深厚的城市。鹤冈市立荘内护理专门学校的新校舍,作为培养地区医疗中坚力量的基地,植根于当地文化,静谧地融入在城市一角。建筑立面最显著的特征是受南丁格尔护士帽启发的白色遮阳板装置。这组装置不仅是调节光影与热工环境的性能构件,更是对社区的庄重宣言,象征着学子们投身医疗事业的使命感与荣誉感。

© Koji Horiuchi

© Koji Horiuchi
Continuous Learning Landscape - Central to the interior space is a vertical atrium spanning from the ground floor to the roof. Light and air flow freely within this void space, imparting a sense of transparency to the building's "presence." A staircase enclosed by cedar gratings seamlessly connects the floors, transforming classrooms, practical training rooms, and the library from traditional "isolated box spaces" into a continuous, interconnected learning scene.
连续的教学景观 - 内部空间的中央是一个贯穿首层至屋顶的竖井中庭。光线与空气在挑空空间内自由流动,赋予建筑一种透明的“存在感”。由杉木格栅包裹的楼梯间将各楼层无缝衔接,使教室、实习室与图书馆从传统的“盒状独立空间”转化为一种相互关联的“连贯学习场景”。

© Koji Horiuchi
The auditorium is the focal point, a sacred space for important events such as the "capping ceremony." The design connects the auditorium space with the adjacent Shonai Hospital and the entrance plaza, thus guiding people, in terms of spatial perception, to bridge the gap between the academic hall and the clinical frontline.
而礼堂则是重中之重的举办“戴帽仪式”等举行重要活动的神圣场所。设计上将礼堂空间与相邻的庄内医院及入口广场相连,由此引导人们在空间感知上架起学术殿堂与临床前线之间的桥梁。

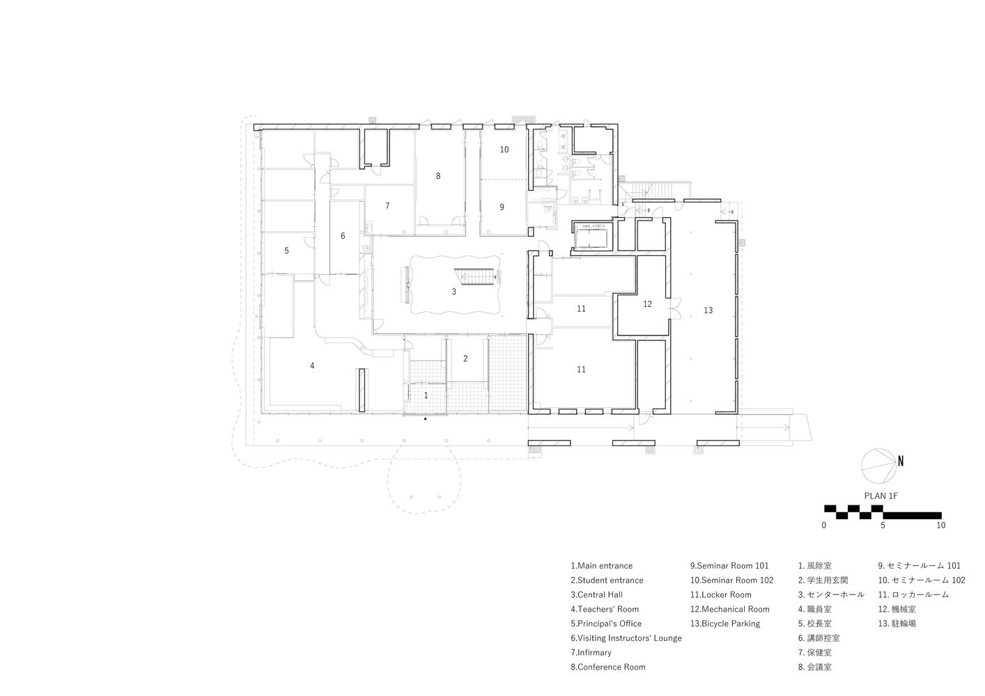
1F Floor Plan

2F Floor Plan
Structural Logic and Spatial Aesthetics - The design process successfully navigated the site's strict building height restrictions and potential flood risks. To maximize internal space within the height limit, the project employed hollow slabs and flat beams to compress the structural height, and boldly exposed mechanical and electrical piping, ensuring sufficient clear ceiling height. This expression, where structural and MEP logic is directly translated onto the building itself, aptly echoes the essence of nursing education: candor, rigor, and the maintenance of continuous care.
结构逻辑与空间美学 - 设计过程克服了场地严苛的一类高度限制以及潜在的洪涝风险。为了在限高范围内争取最大的内部空间,项目采用了空心楼板与扁平梁结构以压缩结构高度,并大胆采用设备管线外露的设计,从而确保了充足的室内净高。这种将结构与机电设备逻辑直接转化于建筑自身上的表达形式,恰恰呼应了护理教育的本质:坦诚、严谨且维系持续性关怀。

© Koji Horiuchi

© Koji Horiuchi
Furthermore, by incorporating green spaces and pedestrian paths around the building, the school presents an open stance towards the city. It is not merely an educational facility but has become a vibrant new city landmark that respects history and the neighborhood fabric.
另外,通过在建筑周边植入绿地与步行路径,另学校展现出向城市开放的姿态。它不仅是一座教育设施,更成为了尊重历史及街区肌理、充满活力的城市新地标。

© Koji Horiuchi