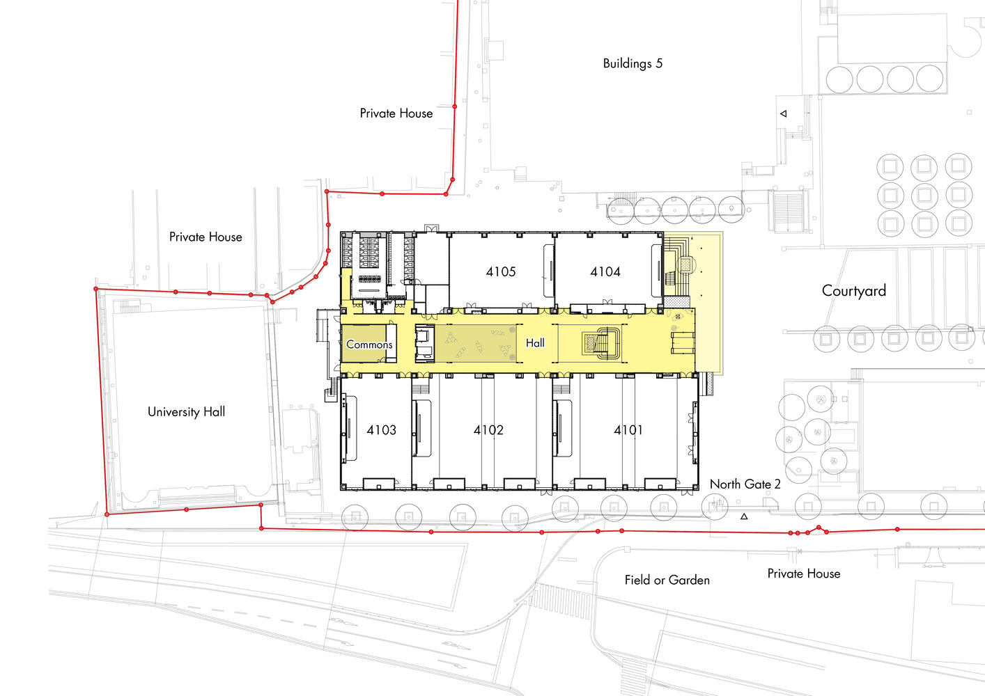
院系整合与校园激活的空间策略:该项目精准把握了阪南大学院系重组和南校区整合的契机,通过建设新4号馆,成功地将原先割裂的校园空间重新连接起来。设计的核心在于突破了原有建筑对庭院的封闭性,转而采用面向庭院的开放式连续形态。这种策略将建筑有机地融入校园核心枢纽——庭院之中,创造了一个促进学习、互动与交流的动态学习环境。通过空间上的积极引导,鼓励学生自然地聚集、停留和参与活动,极大地提升了校园的使用活力和社群凝聚力。
退台式体量与多维度的户外体验:建筑形态巧妙地响应了场地限制(北侧道路的狭窄),通过退台式的阶梯体量设计,不仅解决了规划约束,更重要的是将建筑表面转化为丰富多样的半户外交流平台。这些阶梯空间融合了绿植、座椅和桌子,形成了从核心庭院自然延伸出的“学习阶梯”。这种设计策略最大化了对自然环境的利用,提供了从舒适的半户外露台到顶层俯瞰大阪平原的丰富视野体验,特别是在后疫情时代,为学生提供了急需的、健康且通风良好的户外学习和休憩场所。
以人为本的室内体验与场所精神营造:室内设计通过材料的纯粹性(裸露混凝土、钢梁)与色彩的策略性应用(教室的鲜明色彩对比公共区的柔和色调)来激发感知,营造了内外无缝连接的场所感。核心的中庭设计利用抬高和弧形天花板实现高效的自然通风和柔和采光,提升了能源效率。尤为突出的是,卫生间被赋予了超越基础功能的“场所体验”设计,通过每层不同的主题(时尚、活力、自然、优雅),将日常空间转化为鼓励逗留、放松和交流的舒适目的地,体现了对师生身心健康的深度关怀。
Images are preserved as they are in the original text.
阪南大学是一所历史悠久、传统深厚的私立文理学院,于 2025 年迎来建校 60 周年。该校坐落于大阪市中心以南、大和川沿岸的一片郁郁葱葱的绿地之中。值此里程碑之年,学校在重组院系的同时,还推进了将先前独立的南校区整合至主校区的计划。

© Koji Yamazaki [Prise]

© Koji Yamazaki [Prise]
The design of Building No. 4 was intended not only to replace an old facility but also to serve as the largest new educational building on the main campus, accommodating the growth in student numbers and taking advantage of the opportunity presented by departmental restructuring and the integration of the South Campus.
4 号馆的设计不仅是为了替换老旧建筑,更是作为主校区规模最大的新教学楼,以应对学生数量的增长,并充分利用院系重组和南校区整合的契机。

© Koji Yamazaki [Prise]
The original Building No. 4 had few openings facing the courtyard, resulting in a layout that failed to fully utilize the courtyard's spatial value or create a sense of connection to it. Therefore, the new building adopts an open, continuous architectural form facing the courtyard. By planning it as an organic part of the courtyard, the design creates a space for learning and interaction where communication and activities can occur naturally, encouraging students to actively use the building and gather there during their free time.
原4号馆面向庭院的开口较少,导致布局未能充分利用庭院的空间价值,也未能营造出与庭院的连接感。因此,新建筑采用了面向庭院的开放式连续建筑形态。通过将其规划为庭院的有机组成部分,设计打造了一个学习与互动的空间,使交流与活动能够自然发生。这鼓励学生积极使用该建筑,并在课余时间聚集于此。

© Koji Yamazaki [Prise]
The campus plaza courtyard facing the site is a central hub where students gather during breaks and lunchtime. To naturally guide student activities from the courtyard, a terraced staircase space was created on the courtyard side. This stepped volume is a rational response to the planning constraints imposed by the narrowness of the north road. Utilizing this stepped design, rich greenery, benches, and tables are incorporated, creating a comfortable space for students. The semi-outdoor terrace allows students to enjoy greenery and fresh air. From the top floor, there is a magnificent view of the Osaka Plain. The design, considering health and well-being, provides a pleasant resting place for students. Considering the need for spaces for study and interaction outside the classroom during the COVID-19 pandemic, we created a healthy environment for communication in fresh outdoor air.
面向场地的校园广场庭院,是学生在课间和午餐时间聚集的中心枢纽。为了自然地引导学生从庭院开展活动,从庭院一侧打造了退台式阶梯空间。阶梯式建筑体量是对因北侧道路部分狭窄而产生的规划限制的合理回应。利用这一阶梯式设计,融入了丰富的绿植、长椅和桌子,为学生创造了舒适的空间。半户外露台空间让学生能够享受绿意与清风。从顶层远眺,可尽览大阪平原的壮丽景色。该设计以健康福祉为考量,为学生提供了一个宜人的休憩场所。考虑到新冠疫情期间,学生需要课堂之外的学习与互动空间,我们打造了一个在清新户外空气中交流的健康环境。

© Koji Yamazaki [Prise]

© Koji Yamazaki [Prise]
The central staircase atrium is the core of the building and the main circulation route for students. The space around the stairs is designed as a gathering point to encourage movement and promote chance encounters and interaction between classes. Each floor features an open public area facing the west terrace. These spaces are designed for comfort and connect seamlessly with the terrace, allowing student activities to naturally extend from the public areas onto the terrace, creating a vibrant atmosphere throughout the building. The upper part of the central atrium is raised to promote natural ventilation, allowing air to escape through high-level clerestory windows via the stack effect. The curved ceiling softly scatters the light from the high windows into the interior, enhancing the building's energy efficiency. An integrated indoor-outdoor space that harmonizes with the campus and stimulates student perception has been created.
中央楼梯中庭是建筑的核心,也是学生的主要通行路线。楼梯周围的空间作为聚集点,旨在鼓励学生课间走动,促进偶遇与交流。每层均设有开放式公共区域,面向西侧露台。这些空间设计舒适,与露台无缝连接,使学生活动能够自然地从公共区域延伸至露台,营造出整个建筑生机勃勃的氛围。中央中庭的上部抬高,促进了自然通风,使空气能够通过高位侧窗利用烟囱效应排出。弧形天花板将高位侧窗的光线柔和地散射至室内,提升了建筑的能源效率。打造了一个与校园和谐统一、激发学生感知的内外一体空间。

First Floor Plan

Section
The exterior design incorporates elements shared with existing campus buildings, such as earth-toned tiles and exposed concrete eaves, to achieve harmony with the existing campus landscape. Through a unified earth tone palette, the building conveys the quality and warmth of Hannan University, while its design highlights the freshness of greenery and the expression of student vitality. The interior design is minimalist yet robust. Exposed concrete floors, steel beams, equipment racks, and louver boxes create an interior environment that feels like a seamless extension of the terrace and exterior spaces. The color scheme for the classrooms is conceptually customized for each floor. Bright colors contrast with the softer tones in the public areas, stimulating students' senses and introducing rhythm and distinction to their daily learning environment.
外观设计融入了与现有校园建筑共有的元素,如土色调瓷砖和裸露混凝土屋檐,以实现与现有校园景观的和谐统一。通过统一的土色调,建筑传达了阪南大学的品质与温暖,同时其设计凸显了绿植的清新与学生活力的表达。室内设计简约而坚固。裸露混凝土地板、钢梁、设备架和百叶窗箱构成了一个感觉像是露台和外部空间无缝延伸的室内环境。教室色彩方案根据每层进行概念性定制。鲜艳的色彩与公共区域较为柔和的色调形成对比,激发学生的感官,为他们的日常学习环境引入节奏与区分。

© Koji Yamazaki [Prise]

© Koji Yamazaki [Prise]
When designing a building where students can spend their time comfortably, restrooms are not just places to wash hands. Instead, each floor adopts a unique design concept: "Fashionable" for the first and second floors, "Energetic" for the third, "Natural" for the fourth, and "Elegant" for the fifth. This diversity allows students to choose a restroom based on their mood. Consequently, these restrooms transcend mere functional facilities, becoming comfortable places where students can linger, refresh themselves, and even interact.
在设计一座让学生能够舒适度过时光的建筑时,卫生间不仅仅是洗手的地方。相反,每层都采用了独特的设计理念:一、二楼为“时尚”,三楼为“活力”,四楼为“自然”,五楼为“优雅”。这种多样性让学生能够根据自己的心情选择卫生间。因此,这些卫生间超越了单纯的功能性设施,成为了学生可以逗留、焕新自我甚至交流的舒适场所。

© Koji Yamazaki [Prise]