以患者体验为核心的空间重塑:本项目成功地将牙科诊所的设计从传统的医疗环境转变为一个以消除恐惧、提供放松体验为核心的空间。通过将治疗室直接面向外部的森林景观,设计师巧妙地引导患者的注意力,利用自然环境的治愈力来减轻就诊的焦虑感。这种以人为本的策略,超越了基础的功能布局,而是将建筑本身视为一种疗愈工具,体现了对患者心理需求的深刻洞察,是本次设计的精髓所在。
自然材料的策略性整合与在地性呼应:设计在材料选择上体现了对自然环境的尊重与融合。外立面采用未经油漆的雪松木,内部则大量使用结构胶合板,这种内外一致的木材运用,使建筑在视觉和触觉上都与周边的自然景观保持高度的连续性。特别是对结构胶合板的“大胆使用”,强调了材料的本真纹理,拒绝过度修饰,象征着一种回归自然的朴素美学,成功地将建筑融入到田边市的自然肌理之中。
面向未来的弹性结构规划:本项目不仅解决了当前的混合功能需求(诊所与住宅),更展现了前瞻性的空间策略。通过采用双层楼板和预留管道空间的方式,为二楼未来的功能转换(特别是规划中面向儿童牙科治疗的升级)提供了极大的灵活性。这种“横断面规划”的远见,确保了建筑在长期运营中,能够适应客户未来业务的演变,实现结构上的可持续性和适应性,是兼顾当前使用与未来发展的典范。
This project is a residence that includes a dental clinic. The client is a dentist who previously served as the chief physician in Ashiya City, Hyogo Prefecture, and intends to start a second life in Tanabe City, near Shirahama City, Wakayama Prefecture. The site is adjacent to the South Wakayama Medical Center on the west side, with medical institutions lined up along the street. To the south, there is the Tanabe City Museum of Art and Shinjo General Park, full of natural scenery. We first considered the first-time visit experience of the dental clinic's patients. We thought the most appropriate approach was to create a simple and relaxed environment that eliminates stress and fear, creating a place that is easy for patients to visit.
本项目是一所包含牙科诊所的住宅。客户是一名牙医,曾在兵库县芦屋市任主任医师,打算在和歌山县白滨市附近的田边市展开第二人生。该地块西侧是南和歌山医疗中心,沿街一带都是医疗机构。南侧是田边市艺术博物馆和新庄综合公园,充满自然风光。我们首先考虑的是牙科诊所患者的第一次就诊体验。我们认为最合适的是创造一个简单和放松的环境,消除压力和恐惧,打造一个让病人容易来访的地方。

© Takumi Ota Photography

© Takumi Ota Photography
On the other hand, the client considered what it means to open a dental clinic from scratch in Tanabe City, an area with a completely different environment from Ashiya City, and how to redefine what dentists usually take for granted, such as by providing simple, painless treatment to create an environment where patients are willing to come, and using these as a business framework. At the same time, the client also hoped that through this project, as a dentist, they could contribute to the community. As an architectural project, the essence of this design is embodied in the combination of the dental clinic's management philosophy and the architectural proposal.
另一方面,客户考虑的是,在田边市这个与芦屋市环境完全不同的地区从头开始开设一家牙科诊所意味着什么,以及如何重新定义牙医通常认为理所当然的事情,例如通过提供简单、无痛的治疗,创造一个让病人愿意前来的环境,并以这些为业务框架。同时客户也希望身为牙医能够通过这个项目对社区有所贡献。作为一个建筑项目,这个设计的本质是透过牙科诊所的管理理念与建筑方案相结合而体现的。

© Takumi Ota Photography

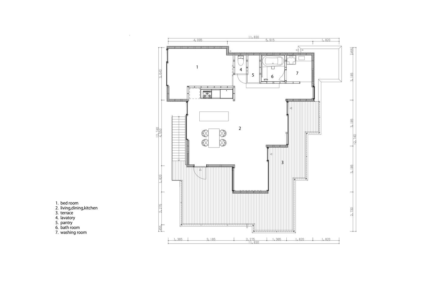
First floor plan

© Takumi Ota Photography
Avoid arbitrary design—First, single-person treatment rooms are arranged with the aim of allowing patients to feel relaxed by looking at the forest in front of them, rather than being threatened by fear. The rest of the space is allocated according to the function and needs of the dental clinic. The second floor accommodates the living function and is set back compared to the first floor. The solution is not to prioritize open space, but rather to aim to create a therapeutic space within it. To solve the problem in a deductive way, the design starts from the therapeutic space and moves to other elements, thus avoiding any arbitrary operations and always prioritizing the patient when planning the space. Our idea is to create a dental clinic that is easy for patients to visit and to make them regular customers.
避免随意的设计——首先安排单人治疗间,旨在使病人不受恐惧感的威胁,而是看着眼前的森林感到放松。其余的空间根据牙科诊所的功能和需求进行分配。二楼实现居住功能,与一楼相比有所退进。解决方案不是首选敞开的空间,而是希望在其中创造一个治疗空间。为了以演绎的方式解决问题,设计从治疗空间开始,然后行进到其他元素,从而避免任何随意的操作,始终把患者放在首位去规划空间。我们的想法是创造一个便于病人前来就诊的牙科诊所,并且让他们成为常客。

© Takumi Ota Photography

First floor plan

© Takumi Ota Photography
Conforming to natural materials—The exterior walls are clad in unpainted cedar wood, and the interior is finished with OSB (Oriented Strand Board). By using wood both indoors and outdoors, the building blends into the natural environment. We boldly used OSB, which has a strong solid wood feel. Although the texture of each material is different, this originates from natural textures and true forms, so it is more natural not to over-clean or control it. In this way, nature is presented using different materials.
顺应自然材料——外墙是由无漆雪松木包覆而成,内部则用结构胶合板装饰。通过在室内外都使用木材,使建筑物与自然环境融为一体。我们大胆使用了结构胶合板,它有很强的实木感,虽然每块材料的纹理都不相同,但这是源于自然纹理和真实形式,所以不过度清洁或控制是更加自然的。以这种方式,使用不同的材料来呈现自然。

© Takumi Ota Photography
Cross-sectional planning that reserves space for future updates—Although the second floor is currently the client's residence, he hopes to use it mainly for dental treatment targeting children in the future, so a double floor slab is used to ensure space for future pipe installation when used. The structure is planned as one large space so that future floor plans and ideas can be flexibly realized.
预留更新空间的横断面规划——虽然目前二楼是客户自住,但他希望将来用于主要面对儿童的牙科治疗,所以采用双层楼板,保证了将来使用时安装管道的空间。我们将结构规划为一整个大空间,以便未来的楼层规划和想法能够灵活实现。

© Takumi Ota Photography

Section

© Takumi Ota Photography
We sincerely hope that this place can become a community space, a dental clinic where patients can visit with peace of mind.
我们真诚地希望这里可以成为一个社区空间,成为一个患者可以心平气和来访的牙科诊所。
Text description provided by the architect
文字描述由建筑师提供
Translator: Qingyun Xu

© Takumi Ota Photography