地块策略与永恒的建筑表达:项目巧妙地利用了其位于城市拐角的狭小地块,通过两层线性布局和不同材质的体块划分功能。这种策略不仅响应了业主对“标志性”和“永恒”建筑的诉求,更在有限的空间内实现了高效的功能组织。建筑师通过体块的组合、悬挑与消解,成功地在密集的城市肌理中创造了一个既具有辨识度又融入环境的现代诊所形象,体现了对场地敏感性的深刻理解。
内外空间与材料的精妙对话:建筑的核心亮点在于内部以木制立方体组织功能空间,并将其与外部的清水混凝土山墙和垂直木制百叶窗构成的花园空间进行对话。这种材质的对比——内部的温暖(木材)与外部的坚实(混凝土)——不仅界定了不同的功能区域,更创造了一个多层次的体验。花园作为核心,起到了景观、隐私保护和声学缓冲的综合作用,使医疗空间在保证专业性的同时,具备了极佳的宜人性和与自然的连接。
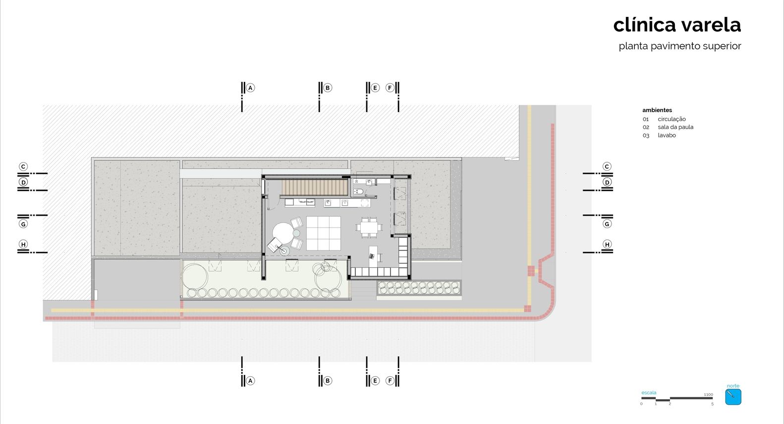
流线设计与公共交互的友好性:本项目在流线设计上表现出极高的专业性和人性化关怀。位于转角的透明接待体块“漂浮”于地面之上,以开放友好的姿态迎接访客,并设置了坡道和楼梯两条明确的入口路径,确保了不同人群的通畅性。此外,二层悬挑体块的设计,利用棱形组合优化了周边环境的视野,而内部分布于天窗下的流通服务区,则确保了后勤效率和空间体验的统一,体现了功能驱动下的空间组织哲学。
The new headquarters for Varela Clinic, located on a small corner lot, is composed of two linear levels, organizing the required functions into units differentiated by materials, based on the owner's desire for an iconic and timeless building.
位于拐角处一小块地块的 Varela 诊所新总部由两层呈线性排列的楼层组成,并将所需功能排布到不同材质的单元中,基于业主希望这是一个标志性的和永恒的建筑。

© Roberta Gewehr

© Roberta Gewehr
The reception area, situated on the corner, is contained within a transparent volume floating above the ground, integrating in a friendly manner with the dense surrounding urban environment. There are two access points to the building, each ensuring smooth circulation: one is a ramp located on the route with higher pedestrian traffic, and the other is a staircase.
位于转角的接待处在一个透明的体块中,漂浮在地面上,以友好的方式与周围密集的城市环境融合在一起。进入建筑的通道有两条,每个都保证了流线的通畅性,一条是位于人流较多的路线上的坡道,一条是楼梯。

© Roberta Gewehr

© Roberta Gewehr

© Roberta Gewehr

© Roberta Gewehr

First Floor Plan

© Roberta Gewehr

Second Floor Plan

© Roberta Gewehr
Inside, a wooden cube organizes the spaces and conceals the main functional space of the project—the ophthalmology clinic. The offices open onto a garden defined by exposed concrete gables and vertical wooden slats positioned along the building's perimeter. Besides its landscape function, the garden merges the offices with the exterior, providing privacy and acoustic protection to the spaces. Light control required for professional activities is provided by automated curtains.
在内部,一个木制的立方体将空间组织起来,并隐藏了项目的主要功能空间——眼科诊所。办公室通向一个花园,该花园由清水混凝土山墙和沿建筑轮廓放置的垂直木制百叶窗限定而成。花园除了景观功能外,还使办公室与外界融合,为空间提供隐私和声学保护。专业活动所需的光照控制由自动窗帘提供。

The staircase, resulting from the subtraction where the cube intersects, leads to the psycho-pedagogical offices on the upper floor. The unit, characterized by a metal coating, cantilevers over the ground floor volume, offering the best possible view of the surroundings through the arrangement, combination, and dissolution of prismatic blocks.
楼梯作为立方体相交后消减的一部分,通向位于上层的心理教育学办公室。以金属涂层包裹为特征的单元体块悬挑于底层体块之上,通过棱形体块的排布、组合与消解,为周围的环境提供了最佳的视野。

© Roberta Gewehr
A section of the clinic interfaces with the adjacent plot’s building; on the inner side of this boundary, the circulation and service areas, illuminated by skylights, organize the flow and support the activities.
诊所部分界面与相邻地块的建筑接壤,临近界面内侧是被天窗照亮的流通和服务区,组织了流线并为开展活动提供了支持。
Text description provided by the architect
Translated by Xu Peiyao

© Roberta Gewehr