工业遗产的敏感介入与功能复兴:本项目最核心的亮点在于KO/OK Architektur对受保护的1910年机械厅及附属建筑所采取的审慎而精准的改造策略。设计师并未选择推倒重来,而是通过在历史结构中“嵌入”现代功能(如两个半透明热能单元),实现了历史语境与当代办公需求的和谐共存。这种对既有工业遗产的尊重,体现在对外立面的选择性修缮和内部痕迹的保留上,成功地激活了沉睡的空间,使其成为一个既有厚重历史感又充满现代活力的工作场所。
可逆性设计理念的极致体现:一个杰出的旧建筑改造项目必须回答如何介入而不破坏的问题。该设计将“无损拆除、可逆复原”作为核心原则,确保所有新增结构(特别是嵌入式的热能装置)不对原始历史古迹构成永久性损害。这不仅是技术层面的胜利,更是对文化遗产保护理念的深刻承诺。这种高标准的介入,使得建筑的未来适应性极大增强,体现了建筑师对时间印记和材料文化的深刻敬意。
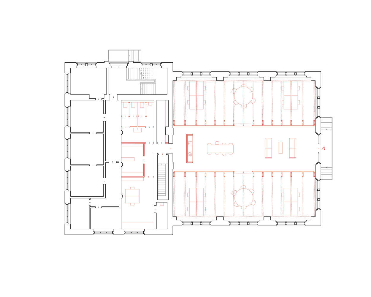
空间序列与流线的巧妙组织:在机械厅内部,设计师通过引入两个独立的热能装置,巧妙地组织了宏大空间内的流线和功能分区。这两个装置不仅承担了关键的供暖任务,更重要的是,它们界定了主要工作区域与中央交流/通道空间。这种“盒中盒”的布局,既清晰界定了新旧元素的边界,又创造了富于层次感和互动性的共享场所,成功地将原本单一的工业空间转化为适应现代协作需求的动态环境。
From the architect. KO/OK Architektur transformed a protected machine hall and its ancillary building in Leipzig's Connewitz district into workshop and office spaces.
来自建筑师。KO/OK Architektur 将莱比锡康尼维茨(Connewitz)社区内的一座受保护机械厅及附属建筑改造为车间与办公空间。

© Sebastian Schels

© Sebastian Schels
The machine hall and the other parts of the building have been converted into workshop and office spaces, while preserving the historical structure, with only selective restoration of the façades.
机械厅及建筑的其他部分均已被改造为车间和办公空间,同时其历史结构得以保留,外立面仅进行了选择性修缮。

© Sebastian Schels

© Sebastian Schels
The building complex is embedded in the surrounding Gründerzeit-era enclosed urban structure. The protected former accumulator factory building, constructed in 1910, stands adjacent to a machine hall behind it, with both connected as one unit.
康尼维茨位于莱比锡南部,这里有一座受保护的前蓄电池厂建筑,建于1910年,其背后紧邻着一座机械厅,二者相连成一体。该建筑群嵌入于周边魏玛时代(Gründerzeit-era)的围合式街区城市结构之中。

Ground floor plan
The interior of the building deliberately retains traces of its original use. The entire renovation process was designed to ensure that the building could operate normally even in winter, and that all structural elements could be dismantled without damage and be reversibly restored without causing any damage to this historical monument.
建筑内部刻意保留了其原有用途的痕迹。整个改造过程的设计旨在确保该建筑在冬季也能正常运营,并保证所有结构元素均可无损拆除、可逆复原,且不会对这座历史古迹造成任何破坏。

© Sebastian Schels

© Sebastian Schels
Within the three spans of the machine hall, two translucent installations were embedded, each representing an independent thermal unit. The space between the two serves not only as a place for communication and meetings but also as a passage and activity area leading to the front section of the adjacent building.
在机械厅三跨的内部空间中,嵌入了两个半透明的装置,它们各自代表独立的热能单元。二者之间的空间不仅作为交流与会面的场所,还作为通往相邻建筑前段的通道和活动场地。

Cross-section
With a cultural approach focused on restoration and materials, treating the existing structure with sensitivity, the former disused machine hall has now been transformed into a vibrant and atmospheric office environment.
秉持着注重修缮与材料的文化理念,即对现有建筑结构采取敏感的处理方式,这座昔日闲置的机械厅现已被打造成为一个充满活力与氛围的办公环境。

© Sebastian Schels

© Sebastian Schels