对文脉的尊重与场所精神的重塑:Nang House 深刻体现了对越南河内郊区快速城市化背景下传统乡村结构的关怀与回应。建筑师通过在现有成熟树木环绕的花园中谨慎地嵌入住宅,成功地将自然元素整合入居住体验的核心。这种对场地原有生态和景观的尊重,不仅是对文脉的延续,更是在现代语境下对传统乡村“家”的场所精神的成功重塑,体现了当代建筑对人与自然和谐共生的承诺。
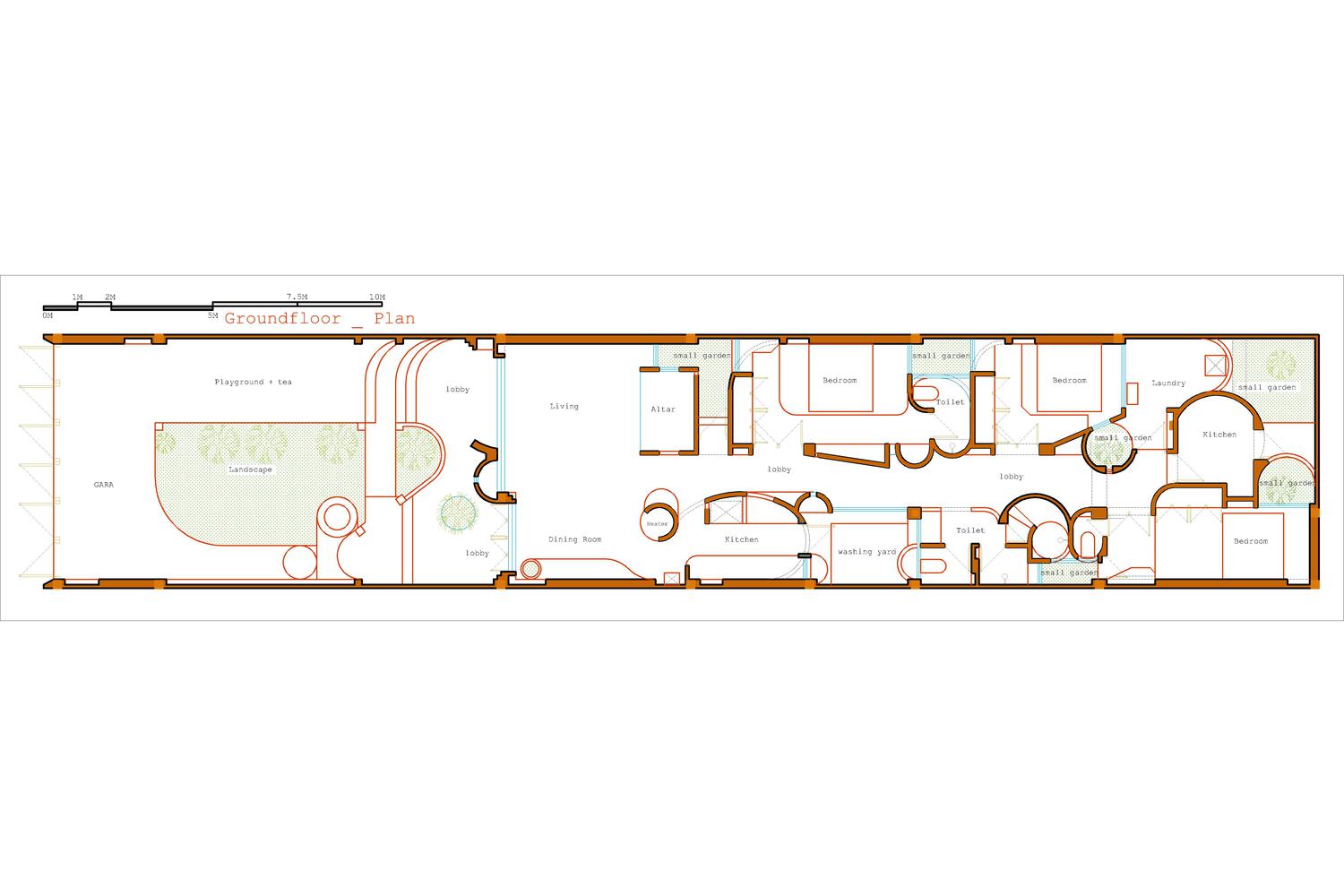
多代同堂的精妙空间组织:项目成功地为一个典型的三代同堂家庭(祖父母、年轻夫妇及孩子)设计了既独立又相互联系的居住环境。空间布局上,通过将主要的公共生活核心(客厅、祭拜室、餐厅)置于地块中央,并将其与后方的卧室区和前方的花园/品茶区有机串联,实现了功能的清晰划分与流线的流畅过渡。这种布局既保证了不同代际在共享空间中的互动,又兼顾了私密性需求,是适应亚洲家庭结构的典范。
前向景观导向的生活轴线:建筑的设计策略性地将主要生活空间后退,为前方的花园、车库和重要的“品茶区”腾出了宝贵的过渡空间。这一设计决策强调了对外部环境的引入和利用。品茶区作为文化和社交的焦点,与花园紧密结合,形成了一条面向自然的、宜人的生活轴线。这种前向退让的设计手法,最大化了采光通风,并提升了居住者与周边环境的连接感,远超一般住宅的简单功能满足。
From the architect. Nang House is a small house located in the peri-urban area of Hanoi, Vietnam, where urbanization is accelerating, gradually eroding traditional rural structures.
来自建筑师。Nang House 是一座小房子,坐落于越南河内城市化进程日益加速的乡村郊区,这一进程正逐渐瓦解传统的乡村结构。

© Trieu Chien

© Trieu Chien

© Trieu Chien

© Trieu Chien

© Trieu Chien

Floor plan

© Trieu Chien

© Trieu Chien

© Trieu Chien
This house is designed for a typical three-generation family in rural Vietnam, including elderly parents, a young couple, and young children. The house is built upon a garden with many existing large trees, and the design preserved all existing trees intact.
这栋房子是为越南乡村一个典型的三代同堂家庭设计的,家庭成员包括年迈的父母、一对年轻夫妇以及年幼的孩子。房子建在一片有许多现存大树的花园之上,设计过程中保留了所有现有树木,使其完好无损。

© Trieu Chien

Section

© Trieu Chien
The main living spaces are set back, leaving space for the garden, garage, and the tea-tasting area in front. The main living spaces include the living room, ancestor worship room, and dining room located in the center of the plot, connected to 4 bedrooms and auxiliary spaces at the rear.
主要生活空间向后退让,为花园、车库以及前方的品茶区留出了空间。主要生活空间包括位于地块中央的客厅、祭拜室和餐厅,后方连接着 4 间卧室和辅助空间。

© Trieu Chien