在地块整合与功能分区的巧妙平衡:该项目成功地在帕尔马北部异质的城市环境中找到了自身的定位。设计师通过对地块(包括一个“L”形角地和一个矩形地块)的精确分析和功能划分,实现了高密度的居住需求与现有城市肌理的和谐共存。特别是通过地上四层和地下一层的体量安排,以及将停车场置于地下和底层,最大化了土地利用效率,同时确保了建筑的体量感与周边环境的适度过渡,展现了对复杂场地条件的深刻理解和务实的解决方案。
以人为本的邻里渗透与空间序列设计:项目在内部空间组织上极具匠心,通过入口大堂导向内部庭院,再经由有顶走道连接各个单元,构建了一个清晰而富有层次感的公共-半私密-私密空间序列。这种布局不仅促进了邻里间的良性互动,更通过双朝向、无走廊的单元设计和中央厨房的视觉联通,提升了居住体验的开放性和效率。此外,西南向的多功能走廊作为缓冲带,巧妙地调节了私密性、采光和通风,体现了对地中海气候精细化的被动式设计策略。
本土材料的循环利用与高性能结构体系:项目最核心的精髓在于其结构和材料的选择——木制楼板与本地生产的BTC(压缩土块)墙体的结合。这不仅是对马略卡岛传统建造技艺的现代致敬,更是一种对可持续性的极致追求。BTC材料的低能耗生产、高热惯性调节、优异的透气性以及对当地经济的扶持,共同构成了一个低碳、健康且具有文化身份认同的建造范式。这种结构体系实现了快速建造,并为建筑赋予了卓越的热工性能和场所精神。
The project site is located in the northern part of Palma, within a heterogeneous area subject to multi-stage urbanization, characterized mainly by low-density housing and agricultural land. The structural system draws inspiration from traditional systems, where the structure itself defines and contains the space, integrating both load-bearing and habitation functions.
该项目地块位于帕尔马市北部,地处一片经多阶段城市化的异质区域,以低密度住宅和农业用地为主。结构方案借鉴了传统体系,由结构本身界定并容纳空间,集承重与居住功能于一体。

© José Hevia

© José Hevia
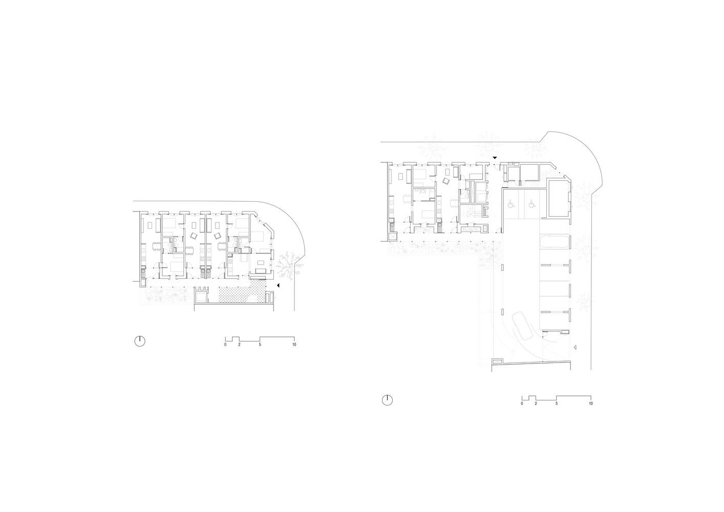
The project focuses on two main aspects: appropriate integration with the urban and natural environment, and functional solutions tailored to project needs. The main building occupies an "L"-shaped corner plot, allowing for a buildable depth of 11.5 meters, including the ground floor and four residential floors; the basement and part of the ground floor are allocated for parking, providing 30 spaces. Another building is located on a rectangular plot, comprising a ground floor and one upper floor, accommodating a total of 8 residential units.
项目聚焦两大方面:一是与城市及自然环境的恰当融合,二是针对项目需求的功能性解决方案。主建筑占据一处 “L” 形转角地块,可建设深度为 11.5 米,包括底层和四层住宅楼层;地下室及部分底层划作停车场,设 30 个车位。另一栋建筑位于矩形地块上,包含底层和一层,共设有 8 套住宅单元。

© José Hevia
The entrance leads through a lobby to an internal courtyard, from which access is distributed to the units via covered corridors. This layout promotes neighborly relations and establishes a gradient of privacy from public to private spaces. The apartments, featuring one to two bedrooms, have a double-orientation and corridor-less layout, with the central kitchen visually connected to the living room. A multipurpose southwest-facing corridor ensures privacy, enhances thermal comfort by capturing winter sunlight, and allows for cross-ventilation in summer.
入口通过一个大堂通向内部庭院,从那里通过有顶走道分配至各个单元。这种布局促进了邻里关系,并从公共空间到私人空间形成了隐私梯度。公寓设有一至两间卧室,采用双朝向和无走廊布局,中央厨房与客厅视觉相连。多功能西南向走廊确保隐私,提升热舒适度,冬季可捕捉阳光,夏季可实现穿堂风。

© José Hevia

Ground floor plan

Sections

Constructive axonometric drawing
The structure combines wooden floor slabs with BTC (Block of Compressed Earth) load-bearing walls. This material is produced locally on Mallorca, reducing transport emissions and supporting the local economy. Since it does not require high-temperature firing, it lowers energy consumption and the carbon footprint. Its porosity allows for breathability, improving indoor air quality and preventing condensation.
结构采用木制楼板与 BTC(压缩土块)承重墙相结合。这种材料在马略卡岛本地生产,减少了运输排放,支持了当地经济。由于无需高温烧制,它降低了能源消耗和碳足迹。其多孔性允许透气,改善了室内空气质量,并防止了冷凝。

© José Hevia
BTC possesses high thermal inertia, regulating indoor temperature and reducing the need for artificial cooling. Its insulation properties lower acoustic and thermal transfer, increasing comfort and reducing the need for other materials. Structurally, it offers high compressive strength, low degradation, fire and pest resistance, and low maintenance costs. Combined with prefabricated wooden slabs, it enables fast, flexible, and sustainable construction.
BTC 具有高热惯性,可调节室内温度,减少人工制冷需求。其隔热性能降低了声热传递,提升了舒适度,并减少了对其他材料的需求。从结构角度看,它具有高抗压强度、低降解性、防火防虫性能,且维护成本低。与预制木制楼板相结合,可实现快速、灵活且可持续的建造。

© José Hevia
The use of BTC continues the building traditions of Mallorca, such as in coastal houses, where local materials defined the structure and adapted to the Mediterranean climate. These systems integrate materials with the environment, providing identity and cultural coherence.
BTC 的使用延续了马略卡岛的建造传统,如沿海房屋,当地材料定义了结构并适应了地中海气候。这些体系将材料与环境融为一体,提供了身份认同和文化连贯性。

© José Hevia
In the context of the climate crisis, utilizing local resources—earth—represents a sustainable choice that reduces the carbon footprint and strengthens the connection between the building, the territory, and the community. This approach addresses current environmental challenges while preserving the island's cultural identity.
在气候危机的背景下,利用本土资源——泥土,代表了一种可持续的选择,它减少了碳足迹,并强化了建筑、地域与社区之间的联系。这种方法在应对当前环境挑战的同时,保留了岛屿的文化身份。