生态共生与场地精神的融合:该项目最精髓之处在于其对“生命形态”的深刻理解与建筑实践的完美契合。建筑设计超越了传统的功能容器,而是致力于模拟和重现自然生态系统,让天空、风、水流与大地实现有机交织。特别是屋顶覆盖的淀川沿岸原生野草,不仅是对场地历史文脉(古代国际交流门户)的呼应,更是对世博会主题“为我们的生活设计未来社会”的积极回应,构建了一个与地理生命体紧密相连的、具有强烈场所精神的动态景观。
形态的流动性与视觉张力:从建筑形态上看,项目通过多条板状区域构成的露天开阔地带与室内活动空间进行渗透融合,创造了高度渗透性的界面。立面设计灵感来源于飘动的云朵和葱郁的植被,赋予了建筑轻盈且富有生命的质感。这种处理手法使得建筑在海滨环境中具有极高的视觉辨识度和吸引力,尤其从海上望去时,其流动性和有机性成为引人注目的焦点,成功地在宏大的世博场地上确立了独特的身份。
顺应自然肌理的空间布局:建筑的布局并非随意放置,而是精准地契合了关西地区的地形肌理。场地狭长地带的倾斜走向与区域性的地形褶皱相吻合,同时兼顾了流入淀川水系的稳定风向。这种对微气候和宏观地理格局的尊重,使得建筑在功能上实现了被动式环境策略(如导风),在美学上实现了与地域的深度对话,展现了高水平的空间叙事能力和可持续设计思维。
This building is a complex of small event spaces designed for the 2025 Osaka Kansai World Expo, housing a theater for ceremonies and performances, an exhibition space for traditional crafts, and a restaurant/lounge. The theme of this Expo is "Designing Future Society for Our Lives," and its architectural design aims to simulate life forms, allowing the sky, clear breeze, running water, and earth to interweave and merge.
这座建筑是为 2025 年大阪关西世博会打造的一组小型活动空间综合体:内设用于举办仪式和表演的剧院、展示传统工艺的展览空间,以及餐厅/休息厅。本届世博会的主题是“为我们的生活设计未来社会”,其建筑设计旨在模拟生命形态,让天空、清风、流水与大地相互交织、融为一体。

© Kenya Chiba

Elevation
立面图

© Kenya Chiba
Here, the event spaces intermingle with an open-air area composed of multiple slab-like zones. The exterior facade evokes images of drifting clouds and lush vegetation, creating a highly striking view when seen from the sea. The building extends towards the sea, recalling a place that was once a gateway for ancient international exchange.
在这里,活动空间与由多条板状区域构成的露天开阔地带相互交融。建筑外立面让人联想到飘动的云朵和葱郁的植被,从海上望去,景色极为引人注目。建筑向海面延伸,勾起人们对一处曾是古代国际交流门户之地的回忆。

© Kenya Chiba

© Kenya Chiba

Plan View
平面图

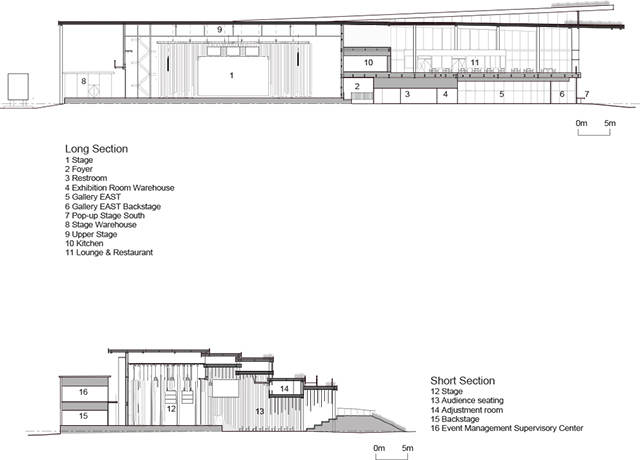
Section View
剖面图

© Kenya Chiba
The orientation of this sloping, elongated strip aligns with the topographical folds running diagonally across the Kansai region and is consistent with the stable wind direction flowing into the Yodo River system.
这片呈倾斜状的狭长地带走向,与贯穿关西地区呈对角线分布的地形褶皱相契合,同时也与流入淀川水系的稳定风向保持一致。

© Kenya Chiba

Detail
细部

© Kenya Chiba
Dense wild grasses, which naturally grow along the Yodo River, sway gently in the sea breeze atop the roof. This building, tightly connected to the earth as a geographical living organism, will become an unforgettable landscape to be shared with those who pioneer the age of life in the future.
屋顶上种植着本就会自然生长于淀川沿岸的茂密野草,它们在海风中轻轻摇曳。这座将此地与地球这一地理生命体紧密相连的建筑,将成为一处令人难忘的景观,与未来开拓生命时代的人们共享。

© Kenya Chiba

© Kenya Chiba