结构创新与材料美学:该项目最精髓之处在于其大胆创新的钢木混合屋顶系统。设计师成功地将结构需求与建筑美学完美融合,利用裸露的大体量木结构(如胶合木梁柱和钉接层压木地板)不仅解决了复杂几何形状的实现和自然采光的需求,更重要的是,赋予了传统冰场空间前所未有的温暖、亲切和诱人的氛围。这种对传统冰球场冰冷、工业化模式的颠覆,体现了以人为本的设计哲学,将高性能体育设施提升为具有高品质人居体验的社区地标。
以人为本的社区与包容性体验:项目在设计中将公众体验置于首位,超越了单纯的体育功能。通过L形冰场布局创造的中心汇聚大厅,极大地改善了人流的流动性和开放性,使空间成为社区的活力核心。此外,多功能空间的设置、温暖且无障碍的观众席,以及对盲文和触觉标识的细致纳入,都彰显了对全社区成员的深刻关怀。设计目标明确地指向了打造一个真正活力、无障碍且具有高度社会包容性的城市基础设施。
光环境与场地策略的精妙平衡:在有限且具有挑战性的场地条件下,项目通过精妙的结构和朝向设计,实现了冰面质量(对自然光敏感)与室内环境品质的优化平衡。通过设置朝北的高侧窗,引入了充足的、不损害冰面性能的自然柔和光线。这种对光线的精准控制,结合透明开放的布局,打破了传统冰场的封闭感,使得建筑不仅服务于冰面上的活动,也向外部社区展现了友好的立面,成功地将一个功能性场馆转化为城市景观中的积极组成部分。
Located in Burnaby, British Columbia, Canada, the Rosemary Brown Recreation Centre creates a rich and dynamic experience for visitors both on and off the ice by integrating best practices for superior ice quality with a warm material palette of wood, abundant natural light, and a transparent, open layout. Designed by the interdisciplinary design firm hcma architecture + design, the centre prioritized the public experience, delivering not just high-performance ice hockey rinks, but also a vibrant, accessible, and inclusive community hub. The $49.5 million, 8,547 square meter (91,999 square foot) facility updates the outdated model of the cold, windowless, steel-trussed, sport-only arena.
位于加拿大不列颠哥伦比亚省本拿比市的 Rosemary Brown 娱乐中心,通过将最佳实践融入卓越的冰面质量,同时运用温暖的木材、自然光和透明开放的布局,为冰上与冰下的访客创造了丰富而动态的体验。该中心由跨学科设计公司 hcma architecture + design 设计,优先考虑公众体验,不仅提供高性能的冰球场,还打造了一个充满活力、无障碍且包容的社区中心。该中心耗资 4950 万加元,占地 8547 平方米(91999 平方英尺),其最先进的设计摒弃了过时、寒冷、无窗、钢桁架且仅供体育使用的冰球场模式。

© Ema Peter

© Ema Peter

© Ema Peter

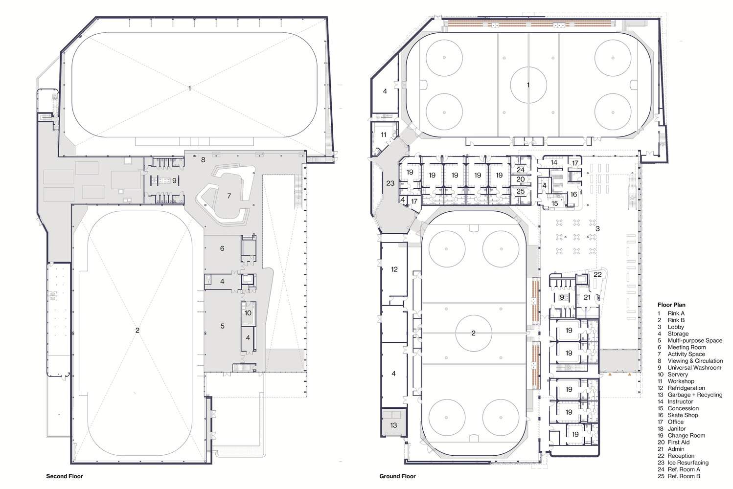
Floor Plans
平面图

© Ema Peter
The unique structural design bathes the ice surface in northward-facing natural light without compromising ice quality, while the exposed, large-volume timber roof creates a warm and inviting space for athletes and spectators alike. This non-traditional approach necessitated a hybrid steel-and-timber roof system, where timber was integral for its geometric flexibility, ease of construction, and warm, inviting aesthetic.
独特的结构设计让冰场沐浴在朝北的自然光中,同时不影响冰面质量,而裸露的大体量木结构屋顶则为运动员和观众创造了一个温暖而诱人的空间。这种非传统的设计方案需要采用钢木混合屋顶系统,木材因其几何灵活性、施工简便以及温暖诱人的美学效果而成为不可或缺的组成部分。

© Ema Peter
Timber plays an integral role in the centre’s character, symbolizing warmth and durability while ensuring fast and efficient assembly on a compact and challenging site. The hybrid steel-timber roof system makes the structure both striking and technically sophisticated. The system’s flexibility allowed for complex geometry to be achieved, enabling the high clerestory windows facing north that bring in ample natural light. Glulam beams and vertical columns support the structure of the main hall, creating a warm and inviting atmosphere inside and out. The floor system in the main hall uses Nail-Laminated Timber (NLT) for excellent acoustic integration, enhancing the overall experience and decor of the space.
木材在中心特色中发挥着不可或缺的作用,象征着温暖与耐用,同时在紧凑且具有挑战性的场地上确保了快速高效的组装。钢木混合屋顶系统使结构既引人注目又技术精湛。该系统的灵活性使得复杂的几何形状得以实现,从而建造出朝北的高侧窗,提供了充足的自然光。胶合木作为横梁和垂直柱,支撑着大厅的结构,并从内外营造出温暖而诱人的氛围。大厅地板系统采用钉接层压木(NLT),实现了卓越的声学整合,提升了空间的整体体验和装饰效果。

© Ema Peter

Section
剖面图

© Ema Peter
On the constrained site within Burnaby’s emerging South Gate neighbourhood, the two NHL-sized rinks are arranged in a non-traditional L-shape, with the central hall situated at their intersection. This layout improves the interface and openness between the hall and the ice surfaces, while also presenting a friendly and lively façade to the street and the wider community.
本拿比新兴的南盖特社区中的这块场地空间有限,因此两个符合 NHL 标准的冰场采用了非传统的 L 形布局,中央大厅位于它们的交汇点。这种布局改善了大厅与冰场之间的接口和开放性,同时也为街道和更广阔的社区带来了友好而生动的立面。

© Ema Peter
The recreation centre offers multi-purpose rooms and spaces in the hall for a wide range of activities beyond ice sports—from pickleball and Pilates to playoff viewing parties. Warm spectator seating on the second floor provides a comfortable and accessible viewing experience, while an area directly behind informal play zones allows for casual, autonomous play for children. Inclusivity extends to all aspects of the facility, with hcma’s communications design team creating Braille and tactile signage to ensure all members of the community feel welcome.
娱乐中心在大厅内提供多功能房间和空间,用于冰上运动以外的各种活动,从匹克球和普拉提到季后赛观赛派对等。二楼的温暖观众席为观众提供了舒适且无障碍的观看体验,而直接位于非正式游乐区后面的区域则允许儿童进行随意、自主的玩耍。包容性设计延伸到设施的各个方面,hcma 的沟通设计团队创建了盲文和触觉标识,确保社区的所有成员都能感受到欢迎。

Diagram
分析图

Rendering
效果图
Named after Rosemary Brown, a pioneering advocate for social justice and equality in Canada, the recreation centre has become an essential gathering place for Burnaby residents to connect, play, and compete. Paul Fast, Principal at hcma architecture + design, stated, “The Rosemary Brown Recreation Centre is more than just an arena; it is a space that fosters community through recreation and high-performance sport.”
该娱乐中心以加拿大社会正义和平等的先驱倡导者 Rosemary Brown 的名字命名,建成后成为本拿比居民聚会、玩耍和比赛的重要场所。hcma architecture + design 的负责人保罗·法斯特表示:“Rosemary Brown 娱乐中心不仅仅是一座竞技场,它是一个通过休闲和高性能运动促进社区发展的空间。”

© Ema Peter