Nha Khoa Nu Cuoi Viet Dental Clinic/BHA studio
Nha Khoa Nu Cuoi Viet 牙科诊所 / BHA studio
颠覆传统的空间设计:该牙科诊所的设计突破了越南传统医疗建筑封闭、分隔的固有模式,展现了大胆的创新。 建筑师巧妙地运用开放空间,以树木和留白作为设计核心元素,营造出与众不同的就医体验。这种设计理念不仅强调了建筑的功能性,更注重了患者的心理感受,创造了一种放松、舒适的氛围。通过打破常规,该项目为医疗建筑设计提供了新的思路,探索了如何通过空间设计来提升医疗服务的质量和体验。
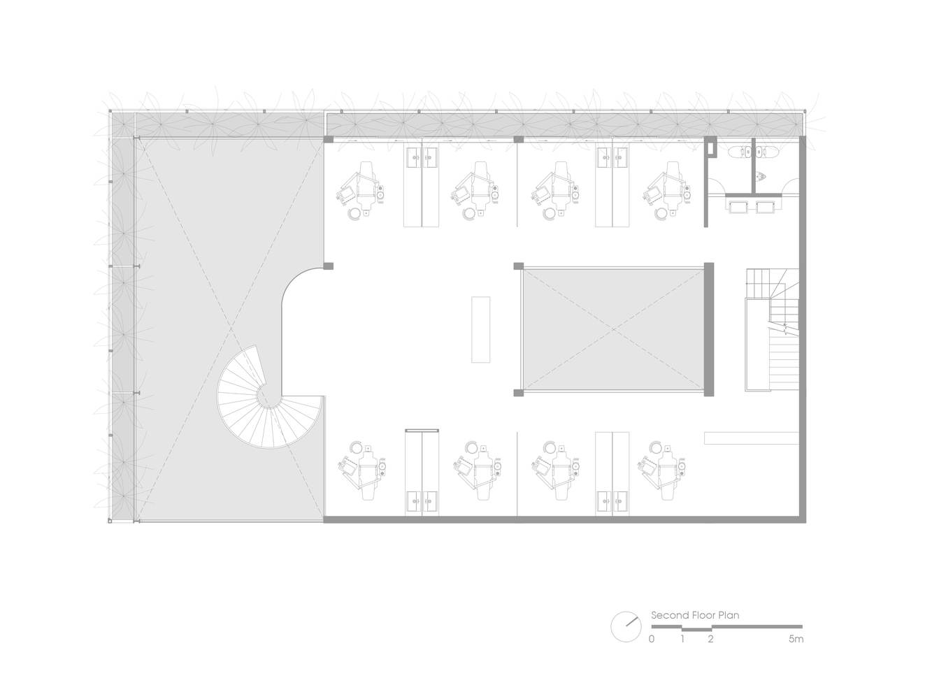
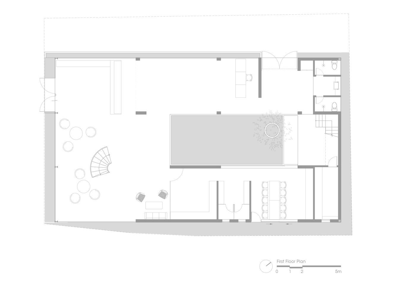
以人为本的细节考量: 项目的核心在于对人的关怀,从顾客、医生到服务人员,都成为了设计的焦点。 诊所的内部空间设计着重于解决患者在不同环节(等候、治疗、互动)的心理需求。中央中庭的设计是点睛之笔,它连接了公共空间和服务区域,提升了建筑的灵活性和实用性。 这种设计理念不仅优化了空间的使用效率,更通过营造舒适的环境,减轻了患者的焦虑感,提升了整体的就医体验,体现了对人的深刻关怀。
可持续的立面设计: 外立面的设计极具特色,钢制幕帘与绿植的组合,赋予了建筑独特的视觉效果。 这种多层次的围护结构不仅美观,更具有实际功能,能够有效过滤空气和光线,调节室内气候。通过这种巧妙的设计,建筑师在越南炎热的气候条件下,创造了一个自然、开放、舒适的室内环境,实现了建筑的可持续性。这种设计理念将美学、功能与可持续性完美结合,为未来的建筑设计提供了宝贵的经验。

© Hoang Le

© Hoang Le
The dental clinic is located in Phu Bai, a small town near Hue, Vietnam. It aims to improve healthcare services for the local community. The project did not follow the typical characteristics of medical buildings in Vietnam, which are enclosed and divided, in its design. On the contrary, the architect created an open space structure: trees and blank spaces are specific elements of the clinic.
牙科诊所位于越南顺化市附近的小镇 Phu Bai。 它旨在为当地社区改善医疗保健服务。 该项目在设计上没有遵循越南目前医疗建筑的典型特征——封闭、划分的性质。 相反,建筑师打造了一个开放空间的结构:树木和空白区是诊所的特定元素。

© Hoang Le

二层平面图

© Hoang Le

首层平面图

© Hoang Le
In addition to trees and lighting, this space aims to address the feelings of customers when sitting, waiting, moving, treating, and interacting with different forms of services. It focuses on a relaxed atmosphere that puts people first, taking into account customers, doctors, and service personnel. The central atrium and surrounding public and service spaces interconnect the building in multiple ways, providing more flexibility for operating and maintaining the internal functions of the area. In addition, the design focuses on the comfort of customers and employees.
除了树木与照明外,该空间旨在解决顾客在坐下、等待、移动、治疗和与不同形式的服务互动时的感受。它专注于以人为本的轻松氛围,考虑到了顾客、医生以及服务人员。中央中庭和周围的公共与服务空间使建筑从多个方面相互连通,为运营和维护区域的内部功能提供了更多的灵活性。此外,设计着重于客户和员工的舒适度。

© Hoang Le
The exterior of the building is covered with a layer of steel curtains, and behind it are green plants that filter air and light for the building. The glass layer divides the internal and external functional attributes. The multi-layered enclosure structure actively regulates the harsh climate, creating a natural, open, and pleasant atmosphere for the building.
建筑的外立面覆盖着一层钢制幕帘,后面则是为建筑过滤空气和光线的绿植,通过玻璃层划分了内外功能属性。 多层围护结构积极调节严酷的气候,使建筑的氛围自然、开放、宜人。
(译者:QI TING YU)