Located by the forest and water, Pistohiekka Resort/Studio Puisto
依林傍水,Pistohiekka 度假村 / Studio Puisto
项目亮点:Pistohiekka度假村/Studio Puisto项目最令人印象深刻的亮点在于其与环境的巧妙融合。建筑师将建筑置于森林与水域之间,利用深色外观与内部温暖的浅色木质形成鲜明对比,成功地将建筑融入到赛马湖的精致景色之中。这种设计策略不仅增强了建筑的美学价值,更重要的是,它创造了一种沉浸式的体验,让游客能够无缝地融入到周围的自然环境中。此外,项目对湖景的利用也堪称典范,通过精心设计的布局,无论是室内还是室外空间,都能最大限度地欣赏到湖光山色,为使用者提供了绝佳的视觉享受。
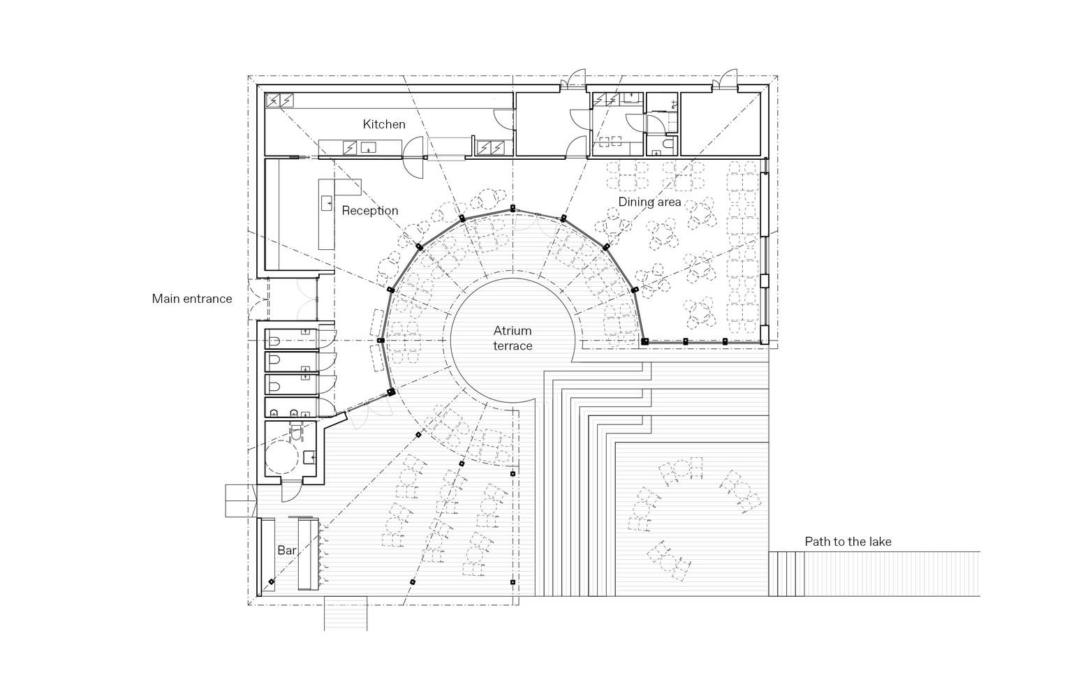
设计精髓:项目的精髓在于其对功能与形式的完美结合。建筑师在设计中充分考虑了桑拿餐厅的功能需求,将餐厅、桑拿室以及开放的户外空间有机地结合在一起。3/4圆的中央开放式户外空间的设计,既提供了观景的绝佳视角,又促进了人与人之间的互动,创造了一种独特的社交氛围。同时,建筑师还利用曲线元素和独特的圆形屋顶开口,将建筑的不同部分连接起来,形成一个统一的整体,在视觉上和主题上都建立了联系。这种设计既满足了功能需求,又赋予了建筑独特的个性和魅力。
项目价值:Pistohiekka度假村/Studio Puisto项目的价值不仅仅在于其建筑本身,更在于其对当地旅游业的推动作用。该项目是重建Pistohiekka度假区的第一步,它以湖畔桑拿及餐厅的形式,为该地区带来了新的活力。建筑师与项目委托方共同打造了一个独特的整体概念,突出了该地区的特殊性,使得度假村成为了一个值得远道而来的旅游胜地。项目的成功也离不开一流的专业团队,他们确保了从设计到施工的顺利进行,最终完美地呈现了最初的概念。这不仅提升了项目的质量,也为当地的旅游业发展提供了宝贵的经验。

© Marc Goodwin

© Marc Goodwin
From the architect. The Pistohiekka sauna restaurant is the first step in rebuilding the Pistohiekka resort, which was once prosperous but gradually declined after the 1980s. This project brings long-awaited services to the area in the form of a lakeside sauna and restaurant. The Pistohiekka sauna restaurant is one of the main development sites designed by the local architectural firm Studio Puisto for the development of tourism and wooden architecture in Pistohiekka. The project concept has a strong design aesthetic: the restaurant and sauna space surround a 3/4 circle central open outdoor space.
来自建筑师。Pistohiekka 桑拿餐厅是重建 Pistohiekka 度假区的第一步,曾风光景气的度假区在 20 世纪 80 年代后逐渐走向萧条。该项目以湖畔桑拿及餐厅的形式为该地区带来人们期待已久的服务。Pistohiekka 桑拿餐厅是当地建筑事务所 Studio Puisto 为发展 Pistohiekka 旅游业与木结构建筑而设计的主要开发地点之一。该项目概念拥有强烈风格的设计美学:餐厅和桑拿空间环绕着一个 3/4 圆的中央开放式户外空间。

© Marc Goodwin
The building is located on a vacant land by the existing forest, with a dark exterior that contrasts sharply with the charming and warm light wood interior, and blends seamlessly with the exquisite scenery of Saimaa Lake. For sauna restaurants, the lakeside scenery and outdoor leisure area on the terrace play an important role. Guests can enjoy summer sunsets while dining at high-quality restaurants and relaxing in the sauna.
建筑坐落在现有树林的湖边空地上,深色外观与迷人而温暖的浅色木内饰形成鲜明对比,并与精致的塞马湖(Saimaa)风景融为一体。对桑拿-餐厅来说,湖畔景色和露台户外休闲区发挥着重要作用。客人可以在高品质的餐厅用餐和在桑拿室悠闲放松之时享受着夏季日落。

© Marc Goodwin

餐厅平面图
The iconic element of Pistohiekka sauna restaurant is its location between a peaceful bay and a rocky area, with magnificent lake views. This group of buildings was designed simultaneously with the overall development of the area, and together with the project client, a unique overall concept was developed to highlight the uniqueness of the region, making the resort a tourist destination worth visiting from afar. The architectural layout carefully considers the different characteristics of the area, incorporating the surrounding scenery into two buildings. Whether it is sunny or misty, the indoor and outdoor spaces always allow you to enjoy the beautiful scenery of Saima Island.
Pistohiekka 桑拿餐厅的标志性元素是它坐落在一个宁静海湾的岩石区之间,并享有壮丽湖景。这组建筑和该地区的整体开发同时设计,并与项目委托方一同完善一个独特的整体概念,突出该地区的特殊性,使度假村成为一个值得远道而来的旅游胜地。建筑布局仔细考虑了该地区的不同特征,将周边风景引入两座建筑中,无论是日丽风和又或是云迷雾罩,室内外空间始终让您欣赏赛马岛的美景。

© Marc Goodwin

© Marc Goodwin
The curved restaurant courtyard provides viewing points both inside and outside the building, while the sauna room with a unique circular opening on the roof establishes a thematic connection between the buildings. A first-class professional team ensures a smooth and rapid process from design to construction and final implementation. Due to the determination of the project owner and the technical level of the contractor, the initial concept was truly and perfectly presented in the final result.
弧形的餐厅内院提供了建筑内外的观景点,而屋顶带有独特圆形开口的桑拿室在建筑之间建立了主题上的联系。一流的专业团队使设计到施工以及最终落地的过程都非常顺利与迅速。由于项目业主的决心和承包商的技术水平,最初概念在最终结果中得到真实完美的呈现。
(译者:QI TING YU)

© Marc Goodwin