Glass bricks enlarge space, Coco Residence/Duy Le Architects
玻璃砖放大空间,Coco 住宅 / Duy Le Architects
空间幻术与视觉延伸:Coco住宅最令人印象深刻的亮点在于其对空间感的巧妙营造。建筑师巧妙地运用玻璃砖这一材料,创造了一种视觉上的“无限”感,有效拓展了狭窄住宅的视野。这种设计手法并非简单的堆砌材料,而是深入研究了材料的特性,利用光线的折射和反射,营造出一种超乎实际的宽敞感。特别是,通过镜面与玻璃砖的结合,设计师构建了一种“空间复制”的错觉,使居住者在有限的空间内体验到更为丰富的空间层次。这种设计理念不仅提升了住宅的美学价值,更在心理层面为居住者带来了开阔舒适的感受。
功能整合与微气候调节:除了空间感的营造,该项目在功能整合和微气候调节方面也展现出卓越的设计智慧。建筑师将业主对种植和养鱼的需求融入到住宅设计中,通过鱼塘和花园的结合,创造了一个共享的、充满生机的居住空间。更重要的是,这些设计不仅仅是为了美观,还具备实际的调节功能,如鱼塘可以调节微气候,降低室内温度。此外,项目中对通风砖的运用也体现了对环境的关注,通过精心设计的通风系统,保证了室内空气的流通,并兼顾了排水功能。这些细节都体现了设计师在满足居住需求的同时,对可持续性设计的思考。
材料语言与设计创新:该项目在材料运用方面也极具特色。玻璃砖的应用不仅限于空间拓展,其波浪图案的设计灵感来源于越南西部的海域,赋予了建筑独特的地域特色。同时,建筑师巧妙地运用“空间借用”的手法,将客厅和厨房融为一体,增加了空间的灵活性和互动性。这种设计不仅提升了住宅的功能性,也体现了建筑师对现代生活方式的理解。此外,散落在玻璃屋顶上的鹅卵石,不仅能起到光线调节的作用,也为室内营造了一种温馨、舒适的氛围。整个项目体现了建筑师对材料的深刻理解和对设计的创新精神,将材料的特性发挥得淋漓尽致。

© Trieu Chien

© Trieu Chien
创作灵感:
This is a method of expanding the indoor spatial sense of narrow row villas. It not only enhances the sense of spatial expansion, but also brings to life the concepts that architects hope to convey in residential buildings.
《可可人生奇遇 CoCo》是皮克斯于 2016 年发行的著名动画电影,以家庭情感为主题,关注于即使不在同一个世界却依旧存在的世代和家庭成员之间的联系。
得益于这一灵感,建筑师希望通过玻璃材料的排列艺术创造一种全新的空间感,以弥合现实与虚拟。因此,材料所表现的效果会产生一种复制的错觉,给住宅以宽敞之感(而实际上这栋房屋的宽度只有 4.6 米)。在某些特定角度,空间的使用者能够看到屋内的无限视野。建筑师同样只设计了一半的房屋细节- 因为其一旦被镜子反射,他们就能够环顾到完整的室内格局(于二楼的阅读空间还能看到窗拱的细节)。
这是一种扩大窄幅联排别墅室内空间感的方法。其既增强了空间的扩展感,也将建筑师希望在住宅中传达的概念变得栩栩如生。

© Trieu Chien

© Trieu Chien

地面层平面图

© Trieu Chien
技术细节:
Integrating fish ponds and gardens into communal living spaces: Architects realized the need to meet the large-scale needs of homeowners for planting and fish farming in narrow spaces, so they integrated these areas to create a communal living space. Fish ponds not only provide landscape elements, but also regulate the microclimate of living spaces.
业主希望有一个具有简约和宽敞风格的大面积区域用于种植,并满足他/她的锦鲤饲养爱好。这栋新住宅既使他/她能够保持日常生活的节奏,如带吊床的休闲区和私人临床服务区,又承担着住宿和商业场所的主要功能。此外,该住宅设计还具有以下特定的技术特征:
将鱼塘和花园融入生活共居空间:建筑师意识到需要在狭窄的空间中满足业主对于种植和养鱼爱好的大面积需求,因此将这些区域进行整合,创造了一个生活共居空间。鱼塘不仅提供了景观元素,还调节了生活空间的小气候。

© Trieu Chien

项目剖面图

© Trieu Chien

© Trieu Chien

一层平面图
材质与配置:
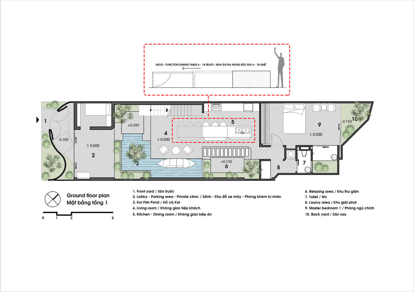
Architects also use the design technique of "space borrowing" to unify the living room and kitchen into a cohesive space. In this way, the kitchen and dining room can achieve adaptive extension by adding a dining table with 6 to 18 seats, thereby meeting the needs of special occasions or a large number of visitors.
住宅设计利用玻璃砖模仿波浪图案,将越南西部水域形象化,并强调了立面的美学曲线。玻璃砖不仅保证了屋内开放空间的私密性,还提供了充足的自然采光。
方案利用通风砖确保室内免受雨天的影响。此外,其还能使空气从立面流通到室内的每个角落和缝隙(详见项目剖面图)。建筑师对通风砖的选择和布局进行了深思熟虑,从美学角度出发,借由不同方向的放置,同时起到了排水和通风的功用。
建筑师还通过“空间借用”的设计手法将客厅和厨房统一为整体空间。这样一来,厨房和餐厅就可以通过添置一张6至18个座位的餐桌实现适应性延展,继而满足特殊场合或大量访客的使用需求。

© Trieu Chien

© Trieu Chien
微气候调节解决方案:
The scattered pebbles on the glass roof can meet the needs of light adjustment. It not only helps to reflect light to the entire living space, but also creates a luminous effect suitable for daily activities.
住宅包含 5 个大小不一的花园,既符合业主的种植爱好,又起到了隔音防尘的作用。
散落在玻璃屋顶上的鹅卵石可实现光线调节的需求。其不仅有助于光线反射到整个生活空间,又可以营造适合日常活动的发光效果。

© Trieu Chien