Sakurai Clinic/CLOUD SYSTEMS
樱井诊所 / CLOUD ARCHITECTS
光之花园:樱井诊所的核心设计理念在于应对疫情期间对安全感和社区感的双重需求。建筑师巧妙地将“光之花园”作为核心元素,营造出充满柔和光线和新鲜空气的开放空间。这不仅为患者提供了生理上的舒适,更重要的是,在心理层面传递出积极、安全的信号,有助于缓解疫情期间的焦虑与不安。花园的设计也促进了人与人之间的互动,打破了传统诊所的封闭感,强调了社区的重要性。这种以人为本的设计理念,充分体现了建筑师对环境和使用者需求的深刻理解。
材料与色彩的运用:建筑师在材料和色彩的选择上,也展现了其独到的设计手法。候诊室采用木结构,两侧面向花园,营造出自然、舒适的氛围,与光之花园的设计理念相呼应。这种材料的选择,不仅提升了空间的质感,也传递出一种温暖、亲和的感受。而在检查室、治疗室和手术室,建筑师则尝试通过色彩来营造基于地方特色的空间,这种设计手法丰富了空间的层次感,也体现了建筑师对当地文化和环境的尊重,以及对不同功能空间差异化的表达。
体量与空间的融合:樱井诊所的设计将建筑体量与开放空间巧妙结合,形成了独特的建筑语言。六个不同功能的房间与三个开放的花园相互穿插,打破了传统诊所的封闭布局,创造出一种“跳脱和杂乱”的视觉效果。这种设计理念并非简单地追求形式上的创新,而是旨在使建筑更好地融入当地环境,如同城市景观随着时间推移而自然生长。这种设计手法赋予了建筑更强的生命力,使其不仅仅是一个医疗场所,更是一个融入社区、服务社区的场所,体现了建筑师对城市肌理和社区关系的深入思考。

© Takumi Ota

© Takumi Ota
The spatial structure built during the COVID-19 epidemic is symbolized by the garden of light in the center - a space full of soft light and fresh air, conveying a sense of security, while accepting people's gathering and promoting a sense of community.
建于新冠疫情期间的空间结构是以中心的光之花园为象征——一个充满柔和光线和新鲜空气、传达出安全感,同时又接纳人们的聚集并促进社区感的空间。

© Takumi Ota

© Takumi Ota

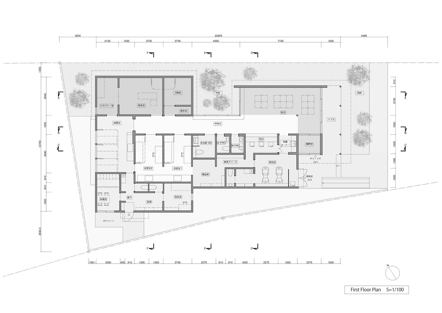
首层平面图

© Takumi Ota
The waiting room is a wooden structure with two sides facing the garden, creating a comfortable space with a natural feel. In the examination room, treatment room, and operating room, we attempted to create a space based on local characteristics by using colors.
候诊室为木结构,两侧面向花园,营造出具有自然感的舒适空间,而在检查室、治疗室和手术室,我们试图通过使用色彩来打造一个基于地方特点的空间。

© Takumi Ota

剖面图 02

© Takumi Ota
The building is composed of six volumes (rooms) with different functional features and three open spaces (gardens). In this way, the building becomes a node in the suburban urban landscape, seemingly formed in a disjointed and chaotic way. I believe it will blend into the town, just like the urban landscape built over time.
该建筑由六个具有不同功能特征的体量(房间)和三个空地(花园)组合而成。这样建筑就成为了郊区城镇景观的一个节点,它似乎是以一种跳脱和杂乱无章的方式形成的,我相信它会融入小镇,就像随着时间建立起来的城镇景观那般。
文字内容来自建筑师。
译者:QI TING YU

© Takumi Ota