TEL Dongdian Electronics Innovation and Research Center/TAISEI Design Planners Architects&Engineers
TEL东电电子创研中心 / TAISEI DESIGN Planners Architects & Engineers
设计理念的开放性与实用性:该项目最显著的亮点在于其设计理念的开放性,充分体现在“开放性创新研究中心”的定位上。建筑师通过大屋顶的设计,象征着开放的工厂精神,并巧妙地与周围环境融为一体。中庭的设计引入自然光,营造出自由、舒适的工作氛围,这对于促进员工之间的交流和激发创造力至关重要。同时,项目的实用性也体现在对当地材料的运用,如南三陆町雪松木和 Inai 石料,以及当地学生艺术作品的装饰,这不仅体现了对当地文化的尊重,也为建筑赋予了独特的地域特色,更突出了建筑在灾后重建中的积极作用。
空间设计的创新与效率:项目在空间设计上展现了极高的创新性。科技创新区域的开放舒适设计,为员工提供了多样化的交流与合作空间。而位于中庭的创意办公室,则通过自然光的引入和通风系统的巧妙运用,营造了宜人的工作环境,促进了员工的思考效率和身心健康。这种对自然能源的充分利用,体现了可持续发展的设计理念。值得称赞的是,建筑外观随时间与天气变化而变化,为员工提供了更加灵活和富有活力的办公体验。这些细节的设计,都体现了建筑师对办公环境的深入思考,以及对员工工作效率和身心健康的关注。
对环境的尊重与可持续发展:该项目在环境保护方面也展现了卓越的实践。通过对建筑施工过程中产生的废土进行重新规划,极大地减少了运输带来的碳排放,体现了建筑师对可持续发展的深刻理解。郁郁葱葱的绿化土堆设计,既与周围景观相呼应,也创造了独特的视觉体验。这种巧妙的设计不仅实现了景观美化,也起到了隔离外部视线的作用,提升了建筑的私密性。总的来说,该项目在设计中兼顾了开放性、创新性、实用性以及对环境的尊重,体现了建筑师对技术研发中心未来发展方向的深刻理解和对社会责任的担当。

© Norihito Yamauchi

© Norihito Yamauchi
这是为开放性创新所做的开放式设计—为半导体制造开拓者东电电子而建的研究与发展机构。

© Norihito Yamauchi

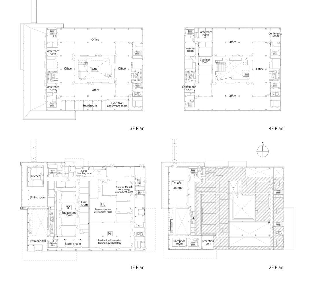
平面图

© Norihito Yamauchi

© Norihito Yamauchi
The newly built facility is an open innovation research center aimed at creating cutting-edge technology and improving production efficiency. Its large roof reflects the spirit of its open factory and conceals the surrounding local community. The courtyard, filled with natural light, creates a free and casual working atmosphere. The construction uses local building materials such as Nansanriku Town cedar wood and Inai stone, and the interior is decorated with art works by local students. The architectural design highlights the client's contribution to the post earthquake recovery of the area, while also creating a comfortable office space. This is a space for learning and gaining inspiration from interdisciplinary interactions, depicting a future of technological prosperity.
新建设施是一个开放性创新研究中心,旨在创造尖端科技并提升生产效率。其大屋顶,是其开放性工厂精神的反映,隐蔽周围的当地社区。而被自然光充盈的中庭营造出自由随性的工作氛围。建造使用诸如南三陆町雪松木和 Inai 石料等本土的建筑材料,室内以当地学生的艺术作品装饰。建筑设计彰显了客户为该区域从大地震的灾后恢复做出贡献,同时打造出舒适的办公空间的意图。这是一处从跨学科的互动中学习与收获灵感的空间,描绘出科技繁荣的未来图景。

© Norihito Yamauchi
The technology innovation area is an open and comfortable space made of warm solid wood. As the "facade" of the building, this area consists of a spacious porch, dining area, and a rest area designed for free and diverse office rhythms. The green plants decorated in front of the building complement the eye-catching hill scenery around the building. This design encourages communication and collaboration between employees and partners, inspiring more creativity in the future.
科技创新区域是一处用温暖的实木打造的开放,舒适的空间。这里作为建筑的“门面”,由敞亮的门廊、就餐区域和为自由多元办公节奏而设的休息区组成。建筑前装点的绿植与建筑周围亮眼的山丘风景相得益彰。这一设计鼓励员工和合作伙伴的交流合作,在未来激发更多创造性。

© Norihito Yamauchi

© Norihito Yamauchi

建筑构成图
The creative office is located in the center of the atrium, bathed in natural light. The design of the office environment here aims to stimulate communication among employees and improve thinking efficiency. The windows on the north and south sides provide a lush landscape view, and are equipped with ventilation systems that can introduce gentle breezes, fully utilizing natural energy to save building energy while ensuring a comfortable office environment. The appearance of the internal space changes with the time of day and weather. This design encourages a casual office environment, and the interior of the building is an ideal working environment that regulates employees' daily work pace and benefits their physical and mental health.
创造性办公室安置在中庭正当中,沐浴自然光。这里办公环境的设计旨在激发员工之间的沟通并提高思考效率。北面与南面的开窗提供了绿意盈盈的风景视野,同时装配有可以引入微风的通风系统,充分利用自然能源以节省建筑能耗,同时保障舒适的办公环境。内部空间外观随一天中的时间与天气改变。这一设计鼓励随性的办公环境,建筑室内是理想的工作环境,规范员工的日常办公节奏并有利于他们的身心健康。

© Norihito Yamauchi

© Norihito Yamauchi
Environmentally friendly landscape design and the treatment of waste soil generated during the construction process will result in extremely high carbon emissions due to the significant consumption of fuel during transportation. The re planning of waste soil within the base greatly reduces the environmental impact of the project. The lush green soil mound is not only a landscape design that echoes the surrounding landscape, but also inadvertently isolates the external view.
环境友好的景观设计,对建造过程中产生的废土的处理将因为运输过程中大量消耗燃料带来极高的碳排放量。将废土在基地内重新规划极大的减少了工程的环境影响。郁郁葱葱的绿化土堆不仅是与周围景观相呼应的景观设计,它还在不经意间隔绝了外部视线。
文字内容来自建筑师
译者:曹瑞瑶

© Norihito Yamauchi