San Yuan Workshop/Opposite Office+Studio Lot+Hanfstingl Architekten
三庭院工坊 / Opposite Office + studio lot + hanfstingl architekten
设计理念的社会价值:项目的核心在于其强烈的社会责任感,专为残障人士打造,且将技术精度与关怀性融为一体。10,000平方米的空间容纳120个工作岗位和完善的支持中心,并非单纯的生产场所,更是一个鼓励社群互动和参与的平台。设计师通过设计,巧妙地将实用功能与人文关怀相结合,打破了传统工作场所的界限,营造出明亮宜人的氛围。项目关注特殊群体的需求,体现了对社会公平和包容性的深刻理解,赋予了建筑设计更深远的社会意义。
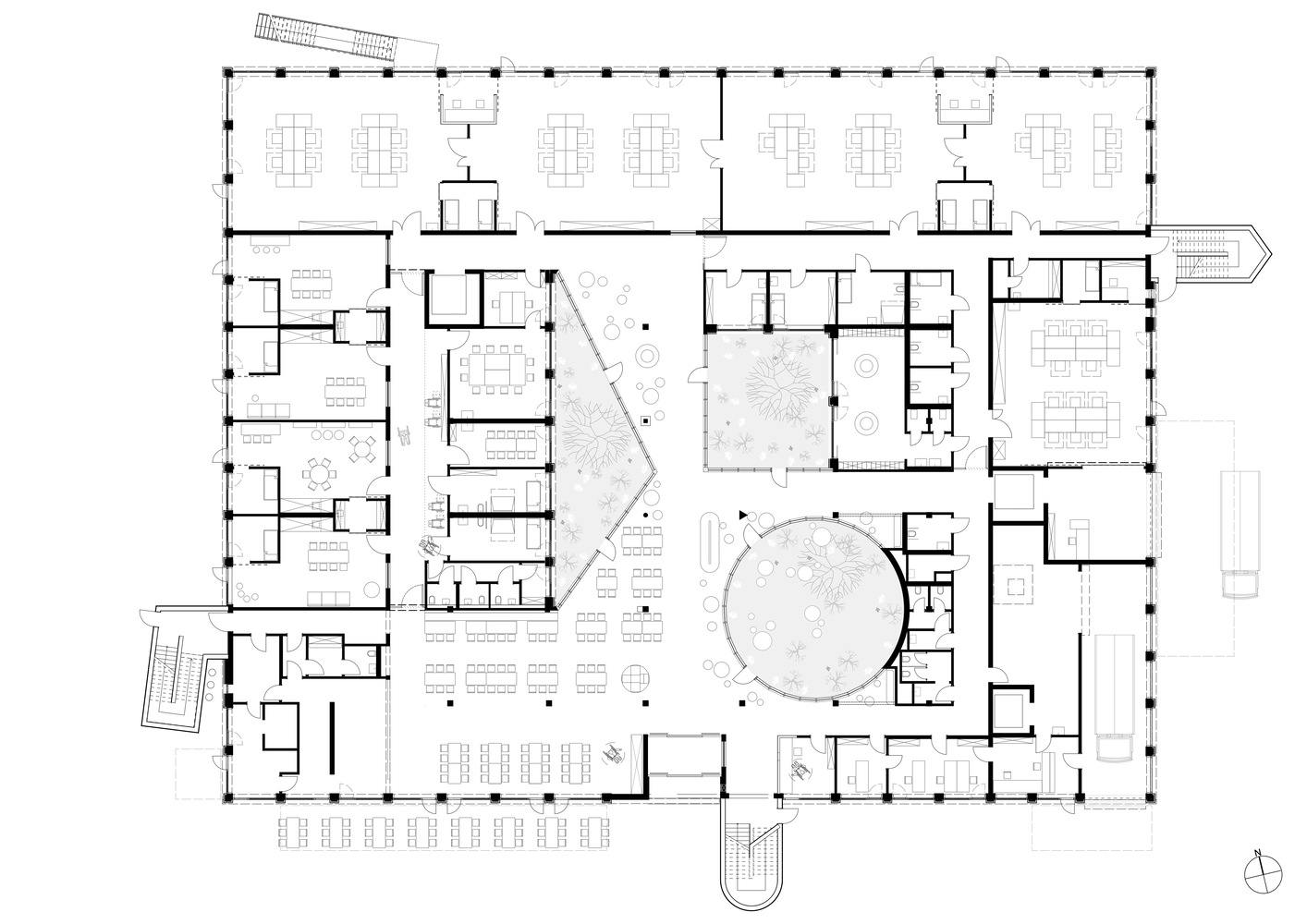
空间设计的创新与巧思:三座形态各异的庭院——三角形、方形与圆形——是该项目的一大亮点。它们不仅是结构框架,引入自然光线,更在50米进深的平面布局中,作为空间定位的参照点,以及人际交流的场所。四座雕塑般的外部楼梯和紧凑的环形动线设计,巧妙地利用空间,在零成本的情况下创造了公共区域,如屋顶露台与庭院之间的连接,强化了社区感。设计师对空间的有效利用和创造性的组织,使建筑兼具实用性和美学价值,为使用者提供了丰富的体验。
材料与可持续的完美结合:项目在材料选择上体现了对耐用性和可持续性的双重考量。钢材、混凝土、木材等坚固材料的使用,保证了建筑的实用性和长久性。同时,为了满足托盘车和叉车的通行需求,设计师选用了钢筋混凝土,实现了无柱空间。更令人赞赏的是,该项目还考虑了可持续性,采用了区域供热系统供暖和屋顶光伏板,体现了对环境保护的责任。这种对材料、结构和可持续发展理念的综合运用,使得建筑在满足功能需求的同时,也展现了对未来的思考。

© Edward Beierle

© Edward Beierle
This new 10000 square meter workshop, designed specifically for people with disabilities, features 120 job positions and a comprehensive support center, perfectly integrating technical precision with social responsibility. The document shredding area, woodworking area, metal processing area, and other high demand activity spaces all create a bright and pleasant atmosphere, encouraging community interaction and participation.
这座专为残障人士打造的全新 10000 平方米工坊,设有 120 个工作岗位及一个综合支持中心,将技术精度与社会责任完美融合。文件碎毁区、木工区、金属加工区及其他高要求活动空间均营造出明亮宜人的氛围,鼓励社群互动与参与。

© Edward Beierle

© Edward Beierle
Three courtyards with different shapes - triangle, square, and circle - form the structural framework of the building, introducing sunlight into a 50 meter deep floor plan layout. They are both reference points for spatial positioning and places for interpersonal communication, while creating a peaceful and introverted outdoor space in the busy Am Oberfeld industrial area between roads and railways.
三座形态各异的庭院——三角形、方形与圆形,构成了建筑的结构框架,将日光引入纵深达 50 米的平面布局之中。它们既是空间定位的参照点,也是人际交流的场所,同时在道路与铁路间繁忙的阿姆奥贝尔费尔德(Am Oberfeld)工业区内,营造出宁静而内敛的户外空间。

轴测图
One major feature of this project is the addition of public areas that were not originally planned through efficient planning. The four sculptural exterior staircases and compact circular flow design enable the central public area between the rooftop terrace and courtyard to be realized at zero cost. These spaces have become the core of the workshop, providing a place for communication and social interaction.
该项目的一大特色在于,通过高效规划增设了原计划未涵盖的公共区域。四座雕塑感十足的外部楼梯与紧凑的环形动线设计,使屋顶露台与庭院间的中央公共区得以零成本实现。这些空间已成为工坊的核心,为交流与社交互动提供了场所。

© Edward Beierle

© Edward Beierle
For the studio lot, opposing office, and Hanfstingl Architekten involved in the design, the challenge is to create an inclusive building while avoiding excessive emphasis on accessibility features in its exterior. Their solution emphasizes openness and transparency: a broad view promotes interaction, and circular windows and portholes on the door allow people to glimpse the work area, enhancing a sense of community belonging.
对于参与设计的 studio lot、对角办公室(Opposite Office)与汉夫斯廷格尔建筑师事务所(Hanfstingl Architekten)而言,挑战在于打造一座包容性建筑,同时避免其外观过度强调无障碍特性。他们的解决方案强调开放性与通透性:开阔的视野促进互动,门上的圆形窗户与舷窗则让人得以窥见工作区域,强化社群归属感。

一层平面图
Sturdy materials such as steel, concrete, wood, and double-layer wall panels endow buildings with durable workshop characteristics. The selection of reinforced concrete aims to achieve column free space and meet the traffic needs of pallet trucks and forklifts. Sustainability is also taken into consideration: the building is heated by a district heating system adjacent to the carpentry workshop, and photovoltaic panels are installed on the roof.
钢材、混凝土、木材与双层墙板等坚固材料赋予建筑耐用的工坊特质。选用钢筋混凝土旨在实现无柱空间,并满足托盘车与叉车的通行需求。可持续性亦被纳入考量:建筑由邻近木工坊的区域供热系统供暖,屋顶则安装了光伏板。

© Edward Beierle
从屋顶露台望去,用户可俯瞰绿植庭院中茁壮成长的树木(夏季将补充照片)。蓝色家具点缀其间,营造出宜人的休憩与交流空间。

© Edward Beierle

© Edward Beierle
This workshop is far more than just a workplace. It is a space that promotes participation, self-determination, and social interaction, aimed at placing the needs of people with disabilities at the core while creating a supportive and enjoyable work environment.
这座工坊远不止于工作场所。它是一个促进参与、自我决定与社交互动的空间,旨在将残障人士的需求置于核心,同时打造一个支持性强且令人愉悦的工作环境。

© Edward Beierle