Heyday Community Center/ASWA
HEYDAY 社区中心 / ASWA

© Soopakorn Srisakul

© Soopakorn Srisakul
From the architect. Heyday Community Center is a brand new community activity hub at Bangkok University in Thailand. It integrates shared office space, food court, and future planned restaurants into one building, becoming the latest popular destination for student groups. The building is adjacent to the campus of Bangkok University and is located between square apartment buildings on both sides of a 1-kilometer-long street.
来自建筑师。HEYDAY 社区中心是泰国曼谷大学的一座全新社区活动枢纽。它将共享办公空间、美食广场及未来规划的餐厅集于一栋建筑之内,成为学生群体的最新热门去处。该建筑毗邻曼谷大学校园,坐落于一条长1公里街道两侧的方块式公寓楼之间。

© Soopakorn Srisakul

© Soopakorn Srisakul
The building consists of three asymmetrical blocks with curved gable roofs, designed to break the monotony of the surrounding block style apartment buildings. This vibrant and unique design aims to attract students and faculty, encouraging them to use this new community center.
该建筑由三个带有弧形山墙屋顶的不对称体块构成,旨在打破周边方块式公寓楼的单调感。这种充满活力且独具特色的造型,意在吸引学生和教职员工,鼓励他们使用这个全新的社区中心。

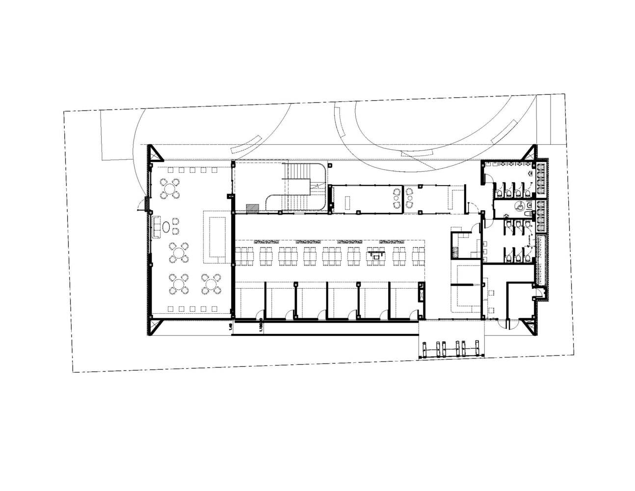
图纸

图纸
A convenient access plan has been developed to promote connectivity between the campus and adjacent apartments. This two-story student activity center has a food court and rental space on the first floor. A blue staircase leads to the shared office area on the second floor, which also has a mezzanine on one side.
为促进校园与相邻公寓之间的连通性,已制定了便利通行的规划方案。这座两层的学生活动中心,首层设有美食广场和租赁空间。一条蓝色楼梯通向二层的共享办公区域,该区域一侧还设有一个夹层。

© Soopakorn Srisakul
The area adopts a wavy curve design internally, which echoes the various blocks in the entire space and continues the external styling design. In addition, there are two large rental spaces on the second floor for future use by restaurants or cafes.
该区域内部采用波浪形曲线设计,与整个空间中的各个体块相互呼应,延续了外部的造型设计。此外,二层还设有两处大型租赁空间,供未来餐厅或咖啡馆使用。

© Soopakorn Srisakul
HEYDAY, with its fun and vibrant architectural design, aims to create a warm and pleasant space where students, faculty, and university staff can often gather, becoming a public activity area for the entire community.
HEYDAY 凭借其充满趣味与活力的建筑设计,旨在打造一个温馨愉悦的空间,让学生、教职员工和大学工作人员能够时常相聚于此,成为整个社区的公共活动区域。

© Soopakorn Srisakul