450 Fitzroy Igor Street/Edition Office+Neometro
菲茨罗伊戈尔街 450 号 / Edition Office + Neometro
设计理念的精妙融合:该项目最引人注目的亮点在于其对设计理念的深度融合。Edition Office 与 Neometro 的合作,将经典与现代、实用与美学完美结合。建筑风格既经典永恒,又通过雕塑般的细节设计展现独特魅力。严谨的形态、清晰的呈现,以及对建筑各元素、不同功能和时代的巧妙整合,都体现了设计师对项目整体性的极致追求。这种融合并非简单的堆砌,而是对建筑本质和居住体验的深刻理解。设计以人为本,关注日常生活的各种场景,无论是用餐、休憩还是社交,都力求创造舒适、愉悦的空间体验,这是项目成功的关键。
空间体量与材料运用的独到之处:项目的精髓之一在于对空间体量的精准把握与材料的巧妙运用。尤其值得称道的是阁楼公寓五米高的天花板设计,赋予了空间开阔感和通透性,极大地提升了居住的舒适度。这种对空间品质的极致追求,是Neometro项目的核心特征,也是该项目的显著亮点。此外,对混凝土等材料的运用,也体现了设计师对材料特性的深刻理解。材料的选择不仅考虑了实用性和耐久性,更重要的是,混凝土所承载的岁月痕迹与菲茨罗伊的历史文化底蕴相得益彰,实现了建筑与环境的对话,为项目增添了独特的韵味。
可持续发展与社区融合的典范:项目在可持续发展方面的努力也令人印象深刻。7.5星的能源评级、碳中和电力供应协议以及全电力服务系统和高效隔热设计,都体现了对环境保护的责任感和对未来居住方式的思考。项目不仅关注建筑本身的设计,还注重与社区环境的融合。开阔的视野,对周边环境的尊重,以及对当地遗产保护规划的响应,都体现了设计师对社区的尊重和对城市文脉的传承。项目不仅为居民提供了舒适的居住空间,也为社区注入了新的活力,成为可持续发展和社区融合的典范,树立了现代建筑的良好形象。

© Pier Carthew

© Pier Carthew
This new limited edition apartment project, jointly created by award-winning architectural firm Edition Office and one of Australia's oldest and most design focused development groups, Neometro, consists of 18 apartments located on the lush streets of Fitzroy, Melbourne. The project is located at 450 Gore Street, quietly hidden between the three busiest avenues of Fitzroy - Gertrude Street, Smith Street, and Brunswick Street.
这处由获奖建筑事务所 Edition Office 与澳大利亚历史最悠久、专注设计的开发集团之一 Neometro 联手打造的新系列限量公寓项目,共包含 18 套公寓,坐落于墨尔本菲茨罗伊郁郁葱葱的街道间。该项目位于戈尔街450号,静谧地隐匿于菲茨罗伊三条最繁华的大道——格特鲁德街(Gertrude Street)、史密斯街(Smith Street)和布伦瑞克街(Brunswick Street)之间。

© Pier Carthew
The architectural style is both classic and timeless, with unique features that stand out through exquisite sculptural detail design. Its form is rigorous and restrained, presented in a clear and precise manner. The design integrates various elements, different parts, and functions of the building, reflecting its era and regional characteristics with a timeless texture.
该建筑风格既经典永恒又独具特色,通过精妙的雕塑化细节设计更显卓尔不群。其形态严谨而克制,以清晰与精准的方式呈现。设计将建筑的各个元素、不同部分及功能融为一体,以一种恒久不变的质感,映照出其所处的时代与地域特色。

© Pier Carthew
Neometro and Edition Office both adhere to the persistent pursuit of ultimate residential design, committed to creating functional and impeccable living spaces. The project covers various combinations of one bedroom, two bedroom, and three bedroom layouts, fully reflecting the evolving trend of apartment design in the context of increasing density.
Neometro 与 Edition Office 均秉持对极致住宅设计的执着追求,致力于打造功能无懈可击的居住空间。项目涵盖一居室、两居室及三居室多种户型组合,充分体现了在密度日益提升的背景下,公寓设计所呈现出的演变趋势。

© Pier Carthew
Although concrete and other materials are beautiful, choosing them is more due to their practicality and long-lasting quality. Concrete carries the traces of time, which is particularly important in suburbs like Fitzroy - where the past and present are always in dialogue with each other. Architecture has a solid and powerful structural language, but the internal space is soft and delicate, fitting our way of life.
混凝土等材料虽美,但选择它们更是因为其实用性和持久品质。混凝土承载着岁月的痕迹,这在像菲茨罗伊这样的郊区尤为重要 —— 在这里,过去与现在始终在相互对话。建筑拥有坚实有力的结构语言,但内部空间却柔和细腻,贴合我们的生活方式。

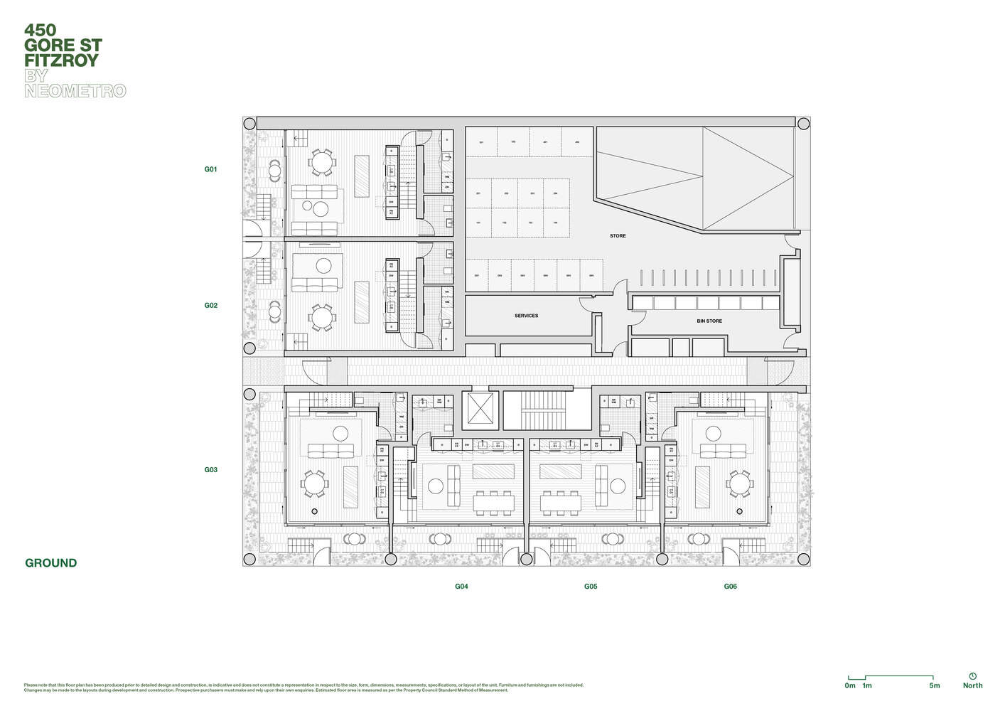
一层平面图

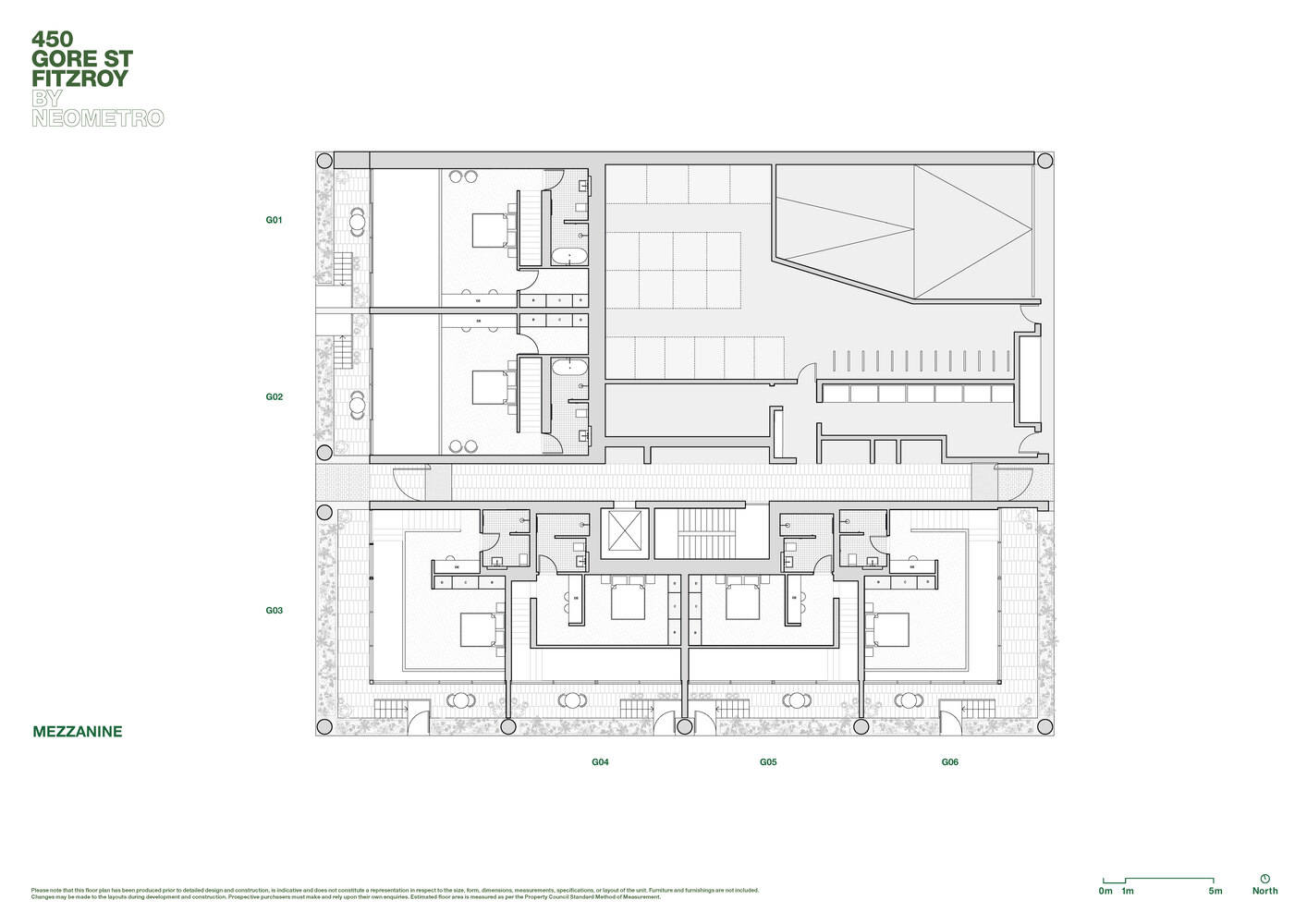
夹层平面图
The design of this project praises the essence of human nature, injects vitality into residents, and enriches daily life. The architect envisioned various scenes of daily life in these apartments, whether it be dining, resting, or bathing. Design creates a rich atmosphere and unique experiential texture, bringing a sense of pleasure to the space. The apartment design emphasizes the integration of cooking and social entertainment functions. The ratio of kitchen, dining room, and living space has been carefully considered to ensure that residents can cook delicious food and entertain guests in the ultimate comfort.
该项目的设计赞颂人性本质,为居住者注入活力,丰富日常生活。建筑师设想了在这些公寓中日常生活的种种场景,无论是用餐、休憩还是沐浴。设计营造出浓郁的氛围与独特的体验质感,带来空间愉悦感。公寓设计注重烹饪与社交娱乐功能的融合,厨房、餐厅与起居空间的比例经过精心考量,确保住户能够以极致舒适的状态烹饪美食、款待宾朋。

© Pier Carthew

© Pier Carthew
The spatial volume is a key consideration throughout the entire design, among which the five meter high ceiling of the attic apartment adds a sense of openness, atmosphere, and comfort to the living space. This emphasis on spatial volume and quality is a core element of every Neometro project and has become a signature feature of the group's design.
空间体量是贯穿整个设计的关键考量因素,其中,阁楼公寓五米高的天花板为居住空间增添了开阔大气与舒适惬意之感。这种对空间体量与品质的强调,是每个 Neometro 经手项目的核心要素,也已成为该集团设计的标志性特色。

© Pier Carthew

© Pier Carthew
Fitzroy is renowned for its cultural atmosphere, hospitality, and retail format, but the green lined back streets and alleys in the area are one of its most beloved yet lesser known features. All residences enjoy a wide view, overlooking tree lined streets, adjacent neighborhoods, or the Central Business District (CBD), and many apartments have two-way views. The heritage conservation plan of the local city hall covers the area, providing lasting protection for this important landscape resource.
菲茨罗伊以其文化氛围、热情好客和零售业态闻名遐迩,但该区域绿树成荫的后街小巷,却是其最令人喜爱却鲜为人知的特色之一。所有住宅均享有开阔视野,可眺望绿树成荫的街道、邻近街区或中央商务区(CBD),许多公寓更是拥有双向景观。当地市政厅的遗产保护规划覆盖该区域,为这一重要景观资源提供了持久保护。

© Pier Carthew
The 450 Gore Street project aims to achieve a 7.5 star energy rating under the Australian National Housing Energy Rating Scheme (NatHERS) and has signed a 10-year carbon neutral electricity supply agreement. The project adopts a fully electric service system and efficient insulation design, which can achieve a comfortable living experience throughout the year without relying on natural gas.
戈尔街 450 号项目目标达成澳大利亚国家房屋能源评级方案(NatHERS)7.5 星能源评级,并签署了为期 10 年的碳中和电力供应协议。项目采用全电力服务系统及高效隔热设计,无需依赖天然气即可实现全年舒适居住体验。

© Pier Carthew