KM Cottage/Grupo Lateral Arquitectura y Construcci ó n
KM 小屋 / Grupo Lateral Arquitectura y Construcción
自然融合与材料运用:该项目最令人印象深刻之处在于其与周围自然环境的无缝融合,以及对材料的巧妙运用。建筑师精心挑选了木材、石材、混凝土和夯土等优质材料,并将它们有机地结合在一起。尤其是夯土墙的运用,不仅体现了对当地材料的尊重,也赋予了建筑独特的质感和视觉语言。这些材料的质感与色彩,在光线的映照下,呈现出丰富而细腻的层次,营造出一种与自然对话的氛围。这种对材料的深刻理解和运用,使得建筑在视觉上与周围环境融为一体。
光影的诗意与空间序列:该项目的核心设计理念之一在于对光影的巧妙捕捉和运用。建筑师通过梁柱的重复排列、彩色混凝土板的过滤,以及墙体开窗的设计,营造出变幻莫测的光影效果。这些光影在一天之中不断变化,为室内空间赋予了动态的生命力。同时,项目在空间布局上也展现出独特的韵律感。两条轴线的设置,公共与私密空间的划分,以及由彩色混凝土板构成的连接走廊,都构成了一个富有节奏感和序列感的空间体验。这种空间设计,引导着使用者在建筑中漫步,感受光影的变化和空间的流动。
热工策略与环境回应:除了视觉上的美学追求,该项目还展现了对环境的深刻思考和回应。建筑师巧妙地利用夯土墙的特性,结合建筑的朝向,优化了室内热舒适度。夯土墙在白天阻挡阳光直射,保持室内凉爽;夜晚释放热量,提供自然温暖。这种设计策略不仅体现了可持续设计的理念,也提升了建筑的使用舒适度。此外,项目通过朝向水景和景观区域的视觉端点,将室内空间与室外环境紧密连接,营造出一种静谧、沉思的氛围,鼓励人们与自然进行更深层次的互动和交流,最终实现了建筑与环境的和谐共生。

© Camila Cossio

© Camila Cossio
This house is characterized by its close connection with the natural environment, cleverly blending high-quality materials such as wood, stone, concrete, and rammed earth. Its design aims to highlight the effects of light and shadow, creating a constantly changing visual feast through the rhythmic repetition of beams and columns throughout the day.
这所房屋以其与自然环境的紧密联系为显著特征,巧妙融合了木材、石材、混凝土和夯土等优质材料。其设计旨在凸显光影效果,通过梁柱有节奏的重复排列,在一天之中营造出变幻莫测的视觉盛宴。

© Camila Cossio

© Camila Cossio
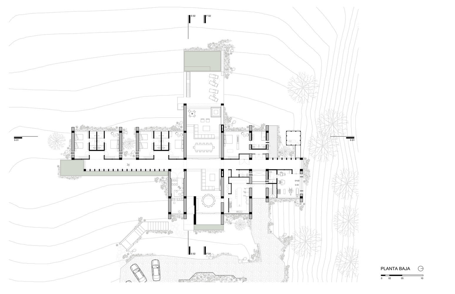
The layout of the house consists of two axes: the main axis is where the public area is located, and the secondary axis is used to arrange private spaces. The two are connected by a corridor lined with colored concrete slabs, which filter light and project a series of light and shadow on the broken slate style stone floor.
房屋布局由两条轴线构成:主轴线为公共区域所在,次轴线则用于布置私密空间,两者通过一条由色素混凝土板镶边的走廊相连,这些混凝土板过滤光线,在破碎板岩风格的石质地面上投射出一系列光影。

© Camila Cossio

© Camila Cossio
The repetition and contrast of patterns endow the entire indoor space with continuity and depth, and interact with the outdoor space through visual endpoints facing water features and landscape areas, creating a quiet and contemplative spatial atmosphere.
图案的重复与对比为整个室内空间赋予了连续性与深度感,并通过朝向水景和景观区域的视觉端点,与室外空间产生互动,营造出静谧沉思的空间氛围。

© Camila Cossio

© Camila Cossio
The orientation of the house is crucial for optimizing indoor thermal comfort. Its rammed earth walls are arranged perpendicular to the south, reducing direct sunlight during the day and keeping the interior cool; At night, it releases accumulated heat and provides natural warmth.
房屋的朝向对于优化室内热舒适度至关重要,其夯土墙垂直于南向排列,白天减少阳光直射,保持室内凉爽;夜晚则释放积蓄的热量,提供自然暖意。

一层平面图
该项目在材质、光线与景观之间实现了和谐平衡,营造出一种邀请人们静心沉思的空间体验,同时敏感地适应了周边的自然环境。

© Camila Cossio