Bofumil Sendagaya Coffee Shop/Jo Nagasaka+Schema Architects
bofumil sendagaya 咖啡店 / Jo Nagasaka + Schemata Architects
空间利用的创新与实验性:该项目最引人注目的特点在于其对现有空间的巧妙利用和改造。将位于东京长坂常建筑事务所办公室一角的旧仓库,改造成咖啡馆,这本身就体现了设计团队对空间的高效利用和对可持续设计的实践。通过对3.3平方米停车位的改造,以及对咖啡馆功能的植入,项目展现了在有限空间内实现多功能融合的可能性。更重要的是,这不仅仅是一个改造项目,而是一个持续的实验,一个在现有空间中探索小型、可持续咖啡馆形态的“研究场所”。这种实验精神是该项目最核心的亮点之一。
设计理念与实践的融合: 项目的设计理念体现了对“临时性”的深刻理解和巧妙运用。由于是为解决咖啡馆在首尔重建期间的临时需求,设计团队将Bohumil Coffee的运营看作一个动态的、持续试验的过程。这种理念体现在1:1的现场布局研究中,设计师对家具、植物和标识的布局进行反复试验和修正,从而为最终在首尔重建的旗舰店积累经验。这种设计理念与实践的紧密结合,不仅使项目具有实用价值,更赋予了其探索性和创新性,探索了“小型可持续咖啡馆”的可能性。这种将设计与运营相结合的方式是项目成功的关键。
跨文化合作与可持续性: 该项目不仅是一个空间设计,更是一次跨越国界的合作。韩国咖啡馆品牌在东京建筑事务所的办公室运营,这本身就代表着文化的交流与融合。项目对原有仓库的再利用,以及对临时空间的巧妙改造,都体现了对可持续设计的关注。这种可持续性不仅体现在材料的选择和空间利用上,更体现在对现有资源的尊重和对环境影响的最小化上。项目在运营过程中不断调整和完善,这种动态的、开放的设计理念,也让该项目更具有生命力,从而使这个“临时”咖啡馆成为一个充满活力和创新精神的场所。

© Takeshi Abe

© Takeshi Abe
Starting from the summer of 2024, Bohumil Coffee will operate under the name Bohumil Sendagaya in a corner of the office of Nagasaka Chang Architectural Firm in Tokyo.
自 2024 年夏起,Bohumil Coffee 在东京长坂常建筑事务所的办公室的一角以 Bohumil sendagaya 的名义运营。

© Takeshi Abe

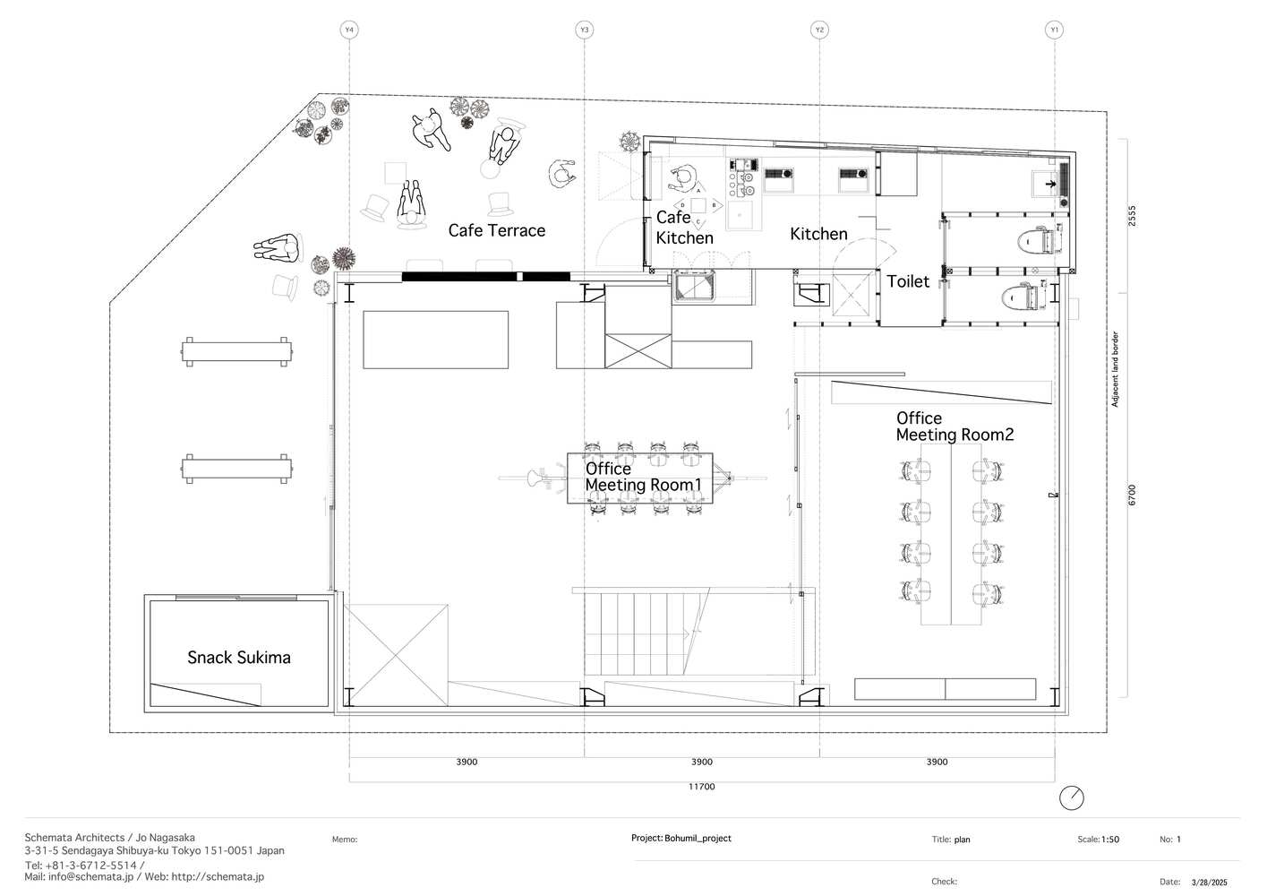
平面图

© Takeshi Abe

© Takeshi Abe
Bohumil Coffee opened in May 2023 in an old reinforced concrete building located in Seongdong gu, Seoul, South Korea. Due to the original plan to demolish and rebuild the building, Mr. Kim, the shop owner, has been searching for a temporary location during the reconstruction period. In the end, he turned his attention to the office of Nagasaka Chang Architectural Firm in Japan, responsible for designing new buildings in the eastern part of the city.
Bohumil Coffee 于 2023 年 5 月在韩国首尔位于城东区的一座旧钢筋混凝土建筑内开业。由于该建筑原计划拆除重建,店主金先生(Mr. Kim)在重建期间一直在寻找临时店铺的地点。最终他将目光投向了负责设计城东区新建筑的长坂常建筑事务所位于日本的办公室。

© Takeshi Abe

© Takeshi Abe
The office of Changsaka Chang Architectural Firm located on the street corner used to be a warehouse for a stationery wholesaler. It has a parking space of approximately 3.3 square meters and is planned to be transformed into a caf é, including a kitchen facing the parking space. Bohumil Coffee store and its employees have moved across the ocean to this location.
长坂常建筑事务所位于街角的办公室曾是一家文具批发商的仓库。它拥有一个约 3.3 平方米的停车位,计划将其改造成咖啡馆,包括面向停车位的厨房。Bohumil Coffee 店铺及其员工跨越重洋,搬迁至此。

剖面图

© Takeshi Abe

立面图
Bohumil Sendagaya is like a simulated caf é or research facility set up for this purpose, constantly being recreated while operating. The design team conducted on-site research on the layout of furniture, plants, and signage in a 1:1 ratio, conducting repeated experiments and revisions for the Bohumil flagship store that will ultimately be rebuilt in a new building in Seoul. The design team will continue to conduct this experiment here, integrating a small and secretive shop into the existing space to explore what a small and sustainable coffee shop will look like. This experiment will continue for some time.
Bohumil sendagaya 就像是一个模拟咖啡馆或为此目的而设立的研究场所,它在营业的同时不断被重新创造。设计团队在现场以 1:1 的比例研究家具、植物和标识的布局,为最终将在首尔一座新建筑中重建的 Bohumil 旗舰店进行反复试验和修正。设计团队将继续在这里进行这项实验,将一家小巧而隐秘的店铺融入现有空间,以探索小型且可持续的咖啡馆将呈现何种面貌,这一实验还将持续一段时间。

© Takeshi Abe